Snagov 11 camere 464.2 mp S + P + 1 4000 mp

SVN Romania va prezinta o vila impresionanta situata in Ghermanesti, in imediata apropiere de lacul Snagov. Aceasta proprietate ofera un teren generos de 4000 mp cu trei cladiri, o piscina si sauna, creand o oaza privata de relaxare si confort.

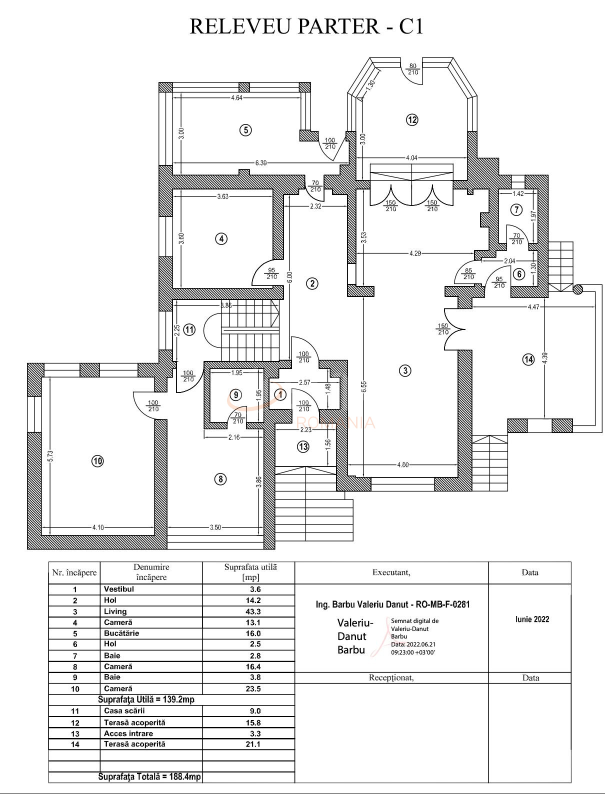
Locuinta principala este o vila spatioasa cu un subsol, parter si etaj, cu o suprafata utila de 329 mp.
Aici veti gasi 9 camere generoase, 5 bai, 3 terase si 3 balcoane, oferindu-va spatiu suficient pentru a va bucura de fiecare colt al acestei case.

O anexa cu o suprafata utila de 85,8 metri patrati completeaza proprietatea, care include o camera, o sauna, o bucatarie si 3 grupuri sanitare, oferindu-va toate facilitatile necesare pentru relaxare si divertisment.

De asemenea, exista o alta anexa cu o suprafata de 49,4 mp in care include o camera, baie si bucatarie si un spatiu de depozitare care poate servi laq diferite scopuri in functie de preferintele dvs.

Piscina este o caracteristica exceptionala a acestei proprietati, este locul perfect pentru a va racori in zilele calduroase de vara sau pentru a va relaxa langa apa.

Este important de mentionat ca proprietatea necesita renovari pentru a o aduce la nivelul pe care vi-l doriti . Cu putina creativitate si efort, aceasta vila poate deveni o oaza de vis in inima naturii, oferindu-va un stil de viata unic intr-o locatie idilica.

Cladirea C3 din schita terenului a fost demolata.

In suprafata utila listata este adaugata si suprafetele utile ale anexelor.

Casa are deschidere de 18 ml la un brat al lacului Snagov. Malul se poate amenaja astfel incat sa exista intrare de barca direct in curte/ garaj. Bratul necesita dragare si poate ajunge la adancime suficienta si la o latime de 8 ml. Bratul iese direct in deschiderea mare a lacului.

Contactati-ne acum pentru mai multe detalii si pentru a programa o vizionare a acestei proprietati atractive.

An constructie 1993

Suprafata construita 705 mp

Suprafata utila 464.2 mp

Regim Inaltime S + P + 1

Etaj S + P + 1

Nr. camere 11 camere

Nr. bai 6

Nr. balcoane 3 balcoane

Tip constructie Vila

Status constructie Nefinalizat

Amprenta la sol 441

Teren suprafata 4000 mp

Curte Individuala Da

Disponibila incepand cu 2026-03-02

Judet Ilfov

Oras/ Sector Nord

Zona Snagov

Gps lat 44.686949

Gps lng 26.134965

Nr. terase 3

Anexa

Geamuri termopan

Acoperis tigla

Apa

Gresie

Gaz

WC serviciu

Spatiu de depozitare

Curent electric

Gradina

Piscina exterioara

Valoare proprietate (€)

Perioada (ani)

Procent avans (89.250 €)


Suma creditata 505.750

Dobanda 4.9%

Rata lunara 12.504 lei

Broker Imobiliar

Raluca Dobrisan , Consultant imobiliar Vezi toate proprietatile

0317100200

Vila in Ghermanesti cu teren I Piscina I Sauna

Pret vanzare + TVA
595.000 €

Telefon Consultant imobiliar
0317100200

Cod: REV2003072
Case 11 camere vandute in Nord, Ilfov Case 11 camere de vanzare in Nord, Ilfov

Afla primul de cele mai bune oferte
inainte sa ajunga pe piata

Aboneaza-te la newsletter

Aboneaza-te la notificari