Snagov 5 camere 177 mp P + 1 450 mp

SVN Romania va propune spre vanzare o vila Tip 4 din Marina Snagov care imbina eleganta arhitecturala cu eficienta energetica si durabilitatea, intr-un cadru natural de exceptie, pe malul lacului Snagov.

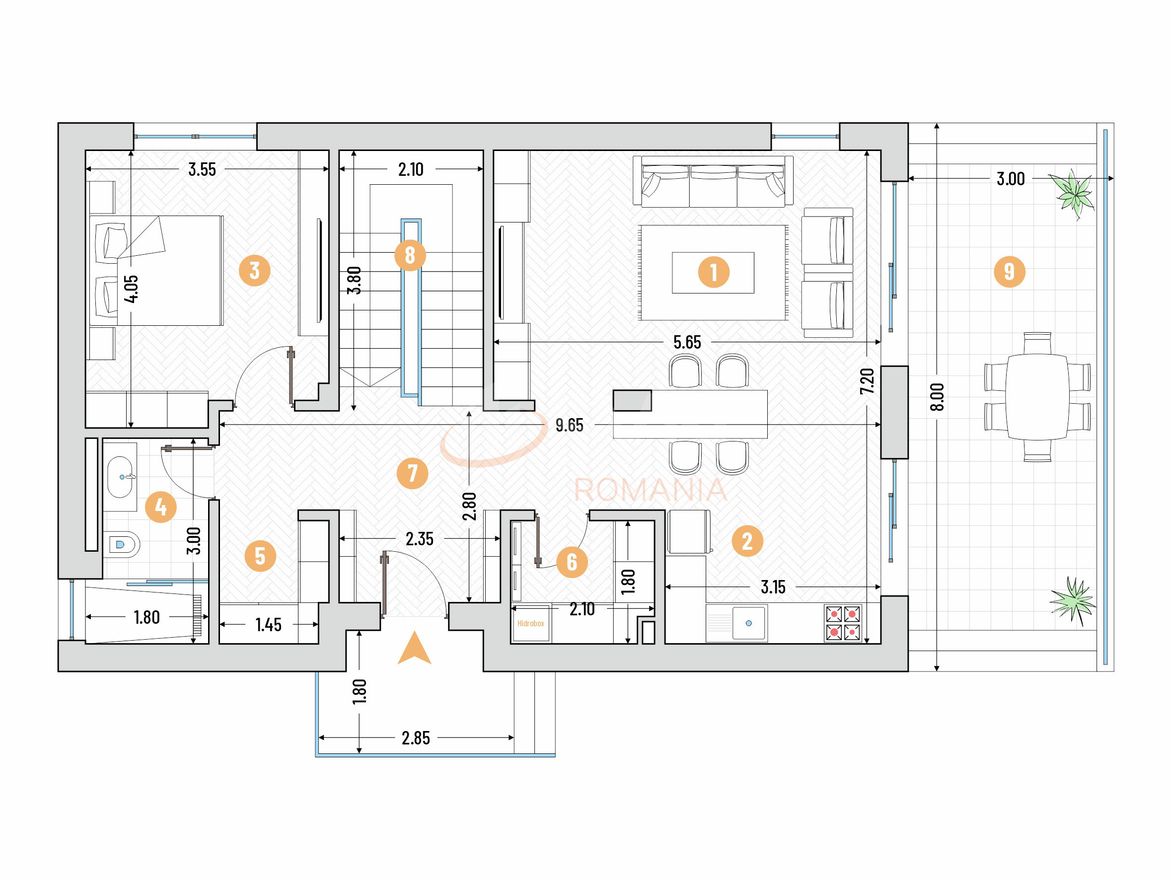
Cu o suprafata utila de 177 mp si terenuri intre 450 si 494 mp, vila este compartimentata inteligent: living generos, bucatarie inchisa, dormitor la parter, 3 dormitoare la etaj, 3 bai, dressinguri, terasa si balcon cu vedere catre lac. Proprietatea include doua locuri de parcare si dotari moderne precum incalzire in pardoseala, pompa de caldura si panouri fotovoltaice.

In premiera in Romania, vila este echipata cu tamplarie AluConnect – o solutie revolutionara dezvoltata de VEKA AG Germania, care imbina durabilitatea aluminiului cu eficienta energetica a PVC-ului. Aceste ferestre se remarca prin performanta termica superioara, stabilitate structurala ridicata si posibilitatea de sudura – o premiera pentru aluminiu.
Structura de rezistenta solida include placi si grinzi din beton armat, zidarie de caramida de 30 cm la exterior si izolatie din vata bazaltica de 10 cm. Finisajele exterioare includ tencuiala decorativa si caramida aparenta MELDORFER, balcoane si terase cu placi ceramice antiderapante si balustrade din sticla laminata.

Cartier finalizat complet cu mutare imediata.

Marina Snagov este un concept rezidential premium ce ofera acces la ponton privat, lounge pe malul lacului si zona de joaca pentru copii – un stil de viata complet si echilibrat, creat pentru familii moderne care apreciaza calitatea si confortul.
Pentru mai multe detalii, contactati-ne!

An constructie 2024

Suprafata construita 231 mp

Suprafata utila 177 mp

Regim Inaltime P + 1

Etaj P + 1

Nr. camere 5 camere

Nr. bai 3

Nr. balcoane 1 balcon

Tip constructie Vila

Status constructie Finalizat

Amprenta la sol 115.58 mp

Teren suprafata 450 mp

Curte Individuala Da

Disponibila incepand cu 2026-01-14

Judet Ilfov

Oras/ Sector Nord

Zona Snagov

Gps lat 44.675950

Gps lng 26.077125

Nr. terase 1

Telefon

Parchet

Apa

Gresie

Gaz

Faianta

Canalizare

Incalzire prin pardoseala

Aer conditionat

WC serviciu

Sistem de alarma

Detector de gaze

Internet Wireless

Cablu TV

Pompe de caldură

Valoare proprietate (€)

Perioada (ani)

Procent avans (79.350 €)


Suma creditata 449.650

Dobanda 4.9%

Rata lunara 11.117 lei

Broker Imobiliar

Raluca Dobrisan , Consultant imobiliar Vezi toate proprietatile

0317100200

Vila exclusivista Tip 4 I Marina Snagov.

Pret vanzare + TVA
529.000 €

Telefon Consultant imobiliar
0317100200

Cod: REV2004793

Proprietati similare

Ilfov, Nord, Snagov

Casa, 5 camere

170.07 mp P + 1 + M 2022

550.000 EUR

Detalii

Ilfov, Nord, Corbeanca

Casa, 5 camere

182.95 mp P + 1 2025

530.000 EUR

Detalii

Ilfov, Nord, Corbeanca

Casa, 5 camere

230 mp P + 1 2024

550.000 EUR

Detalii

Ilfov, Nord, Corbeanca

Casa, 5 camere

206.6 mp P + 1 + M 2015

489.000 EUR

Detalii

Ilfov, Nord, Tunari

Casa, 5 camere

329 mp P + 2 2024

572.000 EUR

Detalii

Ilfov, Est, Voluntari

Casa, 5 camere

220 mp P + 1 2023

530.000 EUR

Detalii

Ilfov, Est, Voluntari

Casa, 5 camere

218 mp P + 2 2024

570.000 EUR

Detalii

Ilfov, Est, Voluntari

Casa, 5 camere

220 mp P + 2 2025

580.000 EUR

Detalii
Case 5 camere vandute in Nord, Ilfov Case 5 camere de vanzare in Nord, Ilfov

Afla primul de cele mai bune oferte
inainte sa ajunga pe piata

Aboneaza-te la newsletter

Aboneaza-te la notificari