Tunari 4 camere 144.29 mp P + 1 425 mp

SVN Romania va propune spre vanzare o casa P+1 cu 4 camere in comuna Tunari.

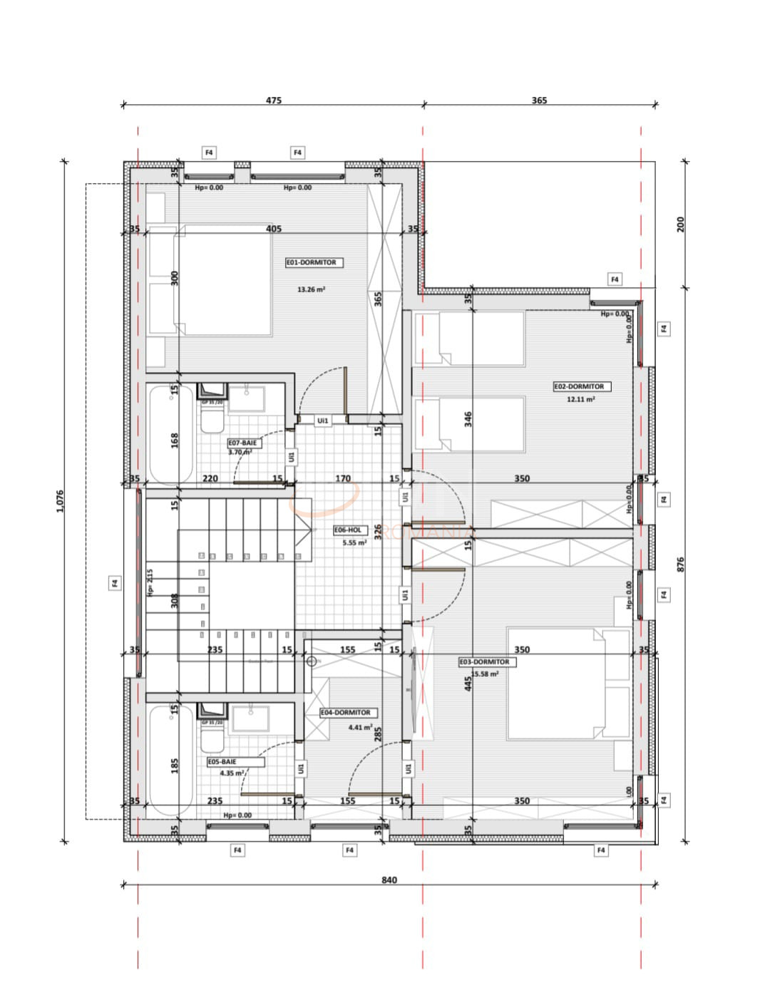
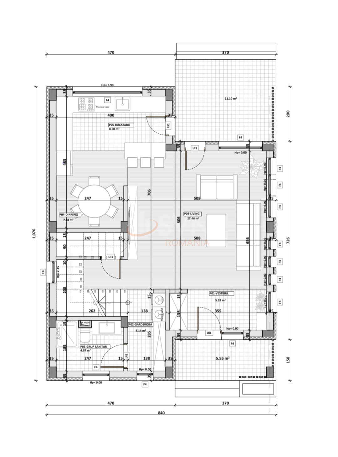
Imobilul este edificat pe o suprafata de teren de 425mp. , avand o suprafata utila totala de 144 mp. Structura constructiva este din beton. Imobilul are urmatoarea impartire :
- parter: living cu dinning si bucatarie open space, o baie, un spatiu de depozitare,
-etaj: un dormitor matrimonial cu dressing si baie proprie, doua dormitoare, o baie.
In partea din spatele casei avem o terasa de 11,10mp iar in partea din fata o terasa de 5,55mp,
Casa dispune de incalzire proprie prin pardoseala, tamplarie salamander, tabla Blitz, geam Tripan si alte finsaje premium.

Casa se preda la cheie avand posibilitatea de alegere a finisajelor astfel incat sa o puteti personaliza cum doriti.

Pentru alte detalii si vizionari, va stam la dispozitie.

An constructie 2021

Suprafata construita 160.54 mp

Suprafata utila 144.29 mp

Regim Inaltime P + 1

Etaj P + 1

Nr. camere 4 camere

Nr. bai 2

Nr. balcoane 1 balcon

Tip constructie Vila

Status constructie Nefinalizat

Amprenta la sol 78.33

Teren suprafata 425 mp

Curte Individuala Da

Disponibila incepand cu 2023-03-25

Judet Ilfov

Oras/ Sector Nord

Zona Tunari

Gps lat 44.558459

Gps lng 26.152195

Nr. terase 1

Geamuri termopan

Apa

Acoperis tabla

Gaz

Canalizare

Plansee beton

Parcare in curte

Incalzire centrala termica

Spatiu de depozitare

Termoizolatie

Curent electric

Gradina

Casa 4 camere PIPERA - TUNARI

Proprietate vanduta

Ai o proprietate similara? Vinde-o cu noi.
Vinde apartament

Cod: REV2002096

Proprietati similare

Ilfov, Nord, Tunari

Casa, 4 camere

100.07 mp P + 1 2025

199.000 EUR

Detalii

Ilfov, Nord, Stefanesti

Casa, 4 camere

100 mp P + 1 2025

199.000 EUR

Detalii

Ilfov, Nord, Tunari

Casa, 4 camere

147.5 mp P + 1 2025

200.000 EUR

Detalii

Ilfov, Nord, Otopeni

Casa, 4 camere

100 mp P + 1 2023

223.500 EUR

Detalii

Ilfov, Nord, Corbeanca

Casa, 4 camere

150 mp P + 1 2023

210.000 EUR

Detalii

Ilfov, Nord, Otopeni

Casa, 4 camere

120 mp P + 1 2023

190.000 EUR

Detalii

Ilfov, Nord, Otopeni

Casa, 4 camere

136 mp P + 2 2027

195.000 EUR

Detalii

Ilfov, Nord, Corbeanca

Casa, 4 camere

144.01 mp P + 1 2025

230.000 EUR

Detalii
Case 4 camere vandute in Nord, Ilfov Case 4 camere de vanzare in Nord, Ilfov

Afla primul de cele mai bune oferte
inainte sa ajunga pe piata

Aboneaza-te la newsletter

Aboneaza-te la notificari