Tunari 4 camere 141 mp P + 1 300 mp

SVN Pipera va ofera spre vanzare o vila individuala, nou construita, situata in Tunari, ce ofera un confort modern si un stil de viata linistit. Proprietatea dispune de 141 mp utili, amplasati pe un lot generos de 300 mp, cu gradina amenajata.

Construita pe regim P+1, vila beneficiaza de compartimentare practica si finisaje de calitate, alese cu atentie pentru a satisface cele mai exigente gusturi. Spatiile sunt luminoase si bine proportionate, oferind un cadru ideal pentru o familie.
Centrala proprie cu incalzire in pardoseala!

Proprietatea se vinde la pret fara TVA, reprezentand o oportunitate excelenta pentru cei care isi doresc o casa noua, intr-o zona in plina dezvoltare.

Pentru mai multe informatii sau pentru a stabili o vizionare, asteptam sa ne contactati.

An constructie 2025

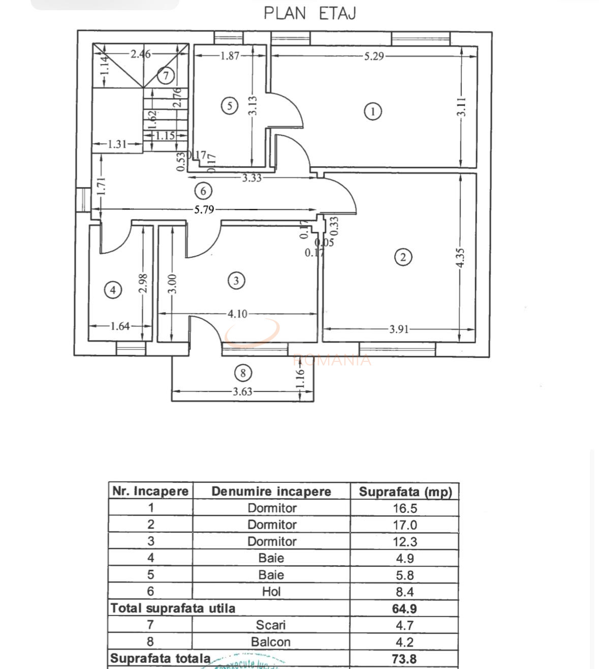
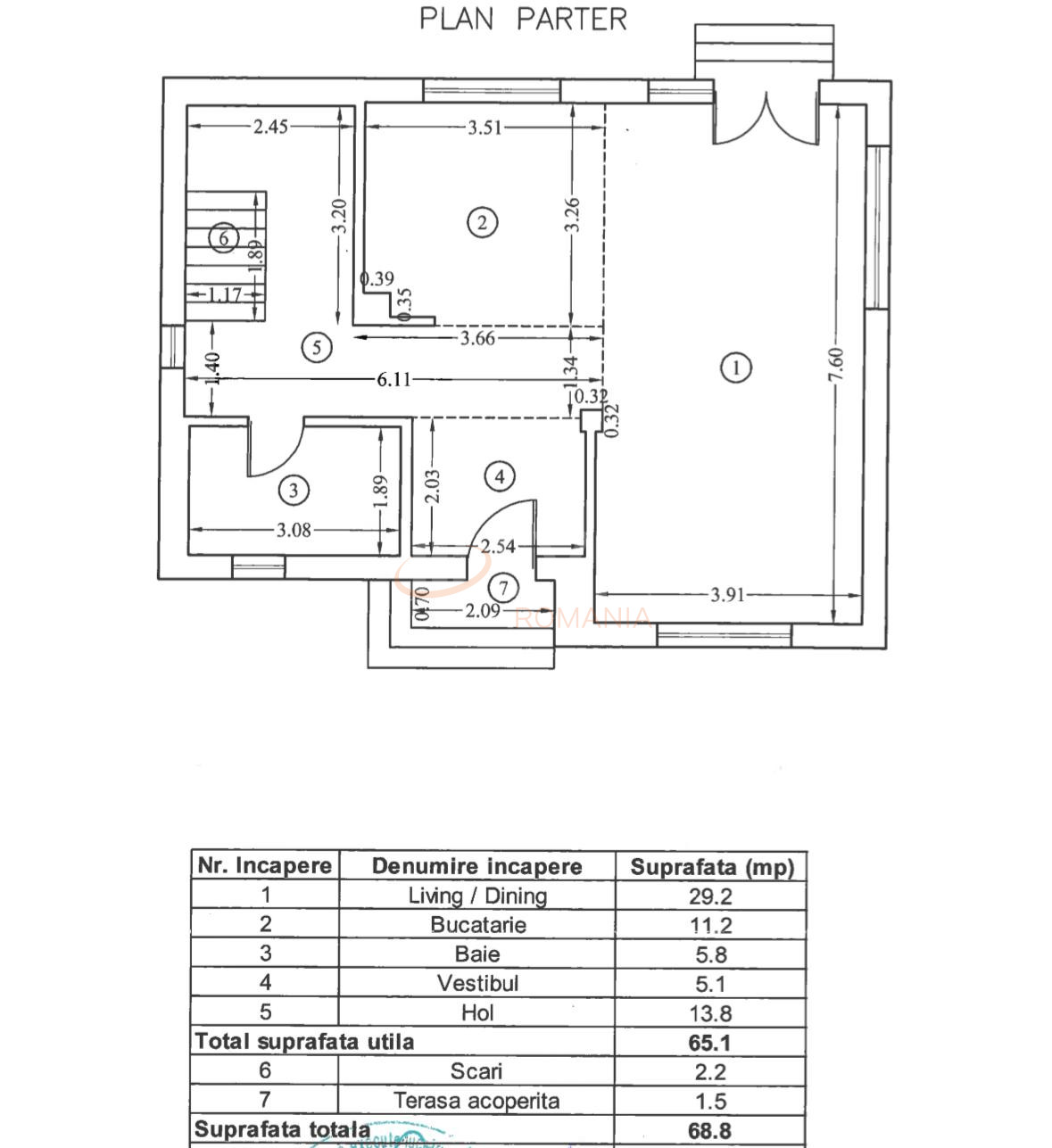
Suprafata construita 160 mp

Suprafata utila 141 mp

Regim Inaltime P + 1

Etaj P + 1

Nr. camere 4 camere

Nr. bai 3

Nr. balcoane 1 balcon

Tip constructie Vila

Status constructie Finalizat

Amprenta la sol 75

Teren suprafata 300 mp

Deschidere stradala 15 m

Curte Individuala Da

Disponibila incepand cu 2025-09-02

Judet Ilfov

Oras/ Sector Nord

Zona Tunari

Gps lat 44.555395

Gps lng 26.151885

Nr. terase 1

Acoperis mansardat

Geamuri termopan

Acoperis tigla

Parchet

Apa

Gresie

Gaz

Canalizare

Incalzire prin pardoseala

Plansee beton

Parcare in curte

Incalzire centrala termica

WC serviciu

Termoizolatie

Curent electric

Gradina

Valoare proprietate (€)

Perioada (ani)

Procent avans (42.750 €)


Suma creditata 242.250

Dobanda 4.9%

Rata lunara 5.990 lei

Broker Imobiliar

Gianni Constantin , Consultant imobiliar Vezi toate proprietatile

0317100200

Vila individuala I Tunari I 140 mpU

Pret vanzare
285.000 €

Telefon Consultant imobiliar
0317100200

Cod: REV2005087

Proprietati similare

Ilfov, Nord, Tunari

Casa, 4 camere

103.8 mp P + 1 + M 2023

275.000 EUR

Detalii

Ilfov, Nord, Tunari

Casa, 4 camere

99.8 mp P + 1 + M 2023

270.000 EUR

Detalii

Ilfov, Nord, Tunari

Casa, 4 camere

120 mp P + 1 2023

280.000 EUR

Detalii

Ilfov, Nord, Tunari

Casa, 4 camere

155 mp P + 1 2025

265.000 EUR

Detalii

Ilfov, Nord, Tunari

Casa, 4 camere

208 mp P + 1 + M 2026

270.000 EUR

Detalii

Ilfov, Nord, Tunari

Casa, 4 camere

135 mp P + 1 2025

260.000 EUR

Detalii

Ilfov, Nord, Tunari

Casa, 4 camere

146 mp P + 1 2019

295.000 EUR

Detalii

Ilfov, Nord, Otopeni

Casa, 4 camere

120 mp P + 1 + M 2022

299.000 EUR

Detalii
Case 4 camere vandute in Nord, Ilfov Case 4 camere de vanzare in Nord, Ilfov

Afla primul de cele mai bune oferte
inainte sa ajunga pe piata

Aboneaza-te la newsletter

Aboneaza-te la notificari