Tunari 5 camere 127 mp P + 1 306 mp

SVN Romania va propune spre vanzare doua vile de 5 camere in Tunari, in curs de finalizare, cu o suprafata utila de 127 mp.

Vilele sunt structurate P + 1E, cea din fata avand teren de 306 mp, cea din spate beneficiaza de un teren de 440 mp.

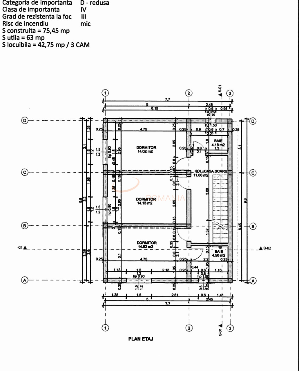
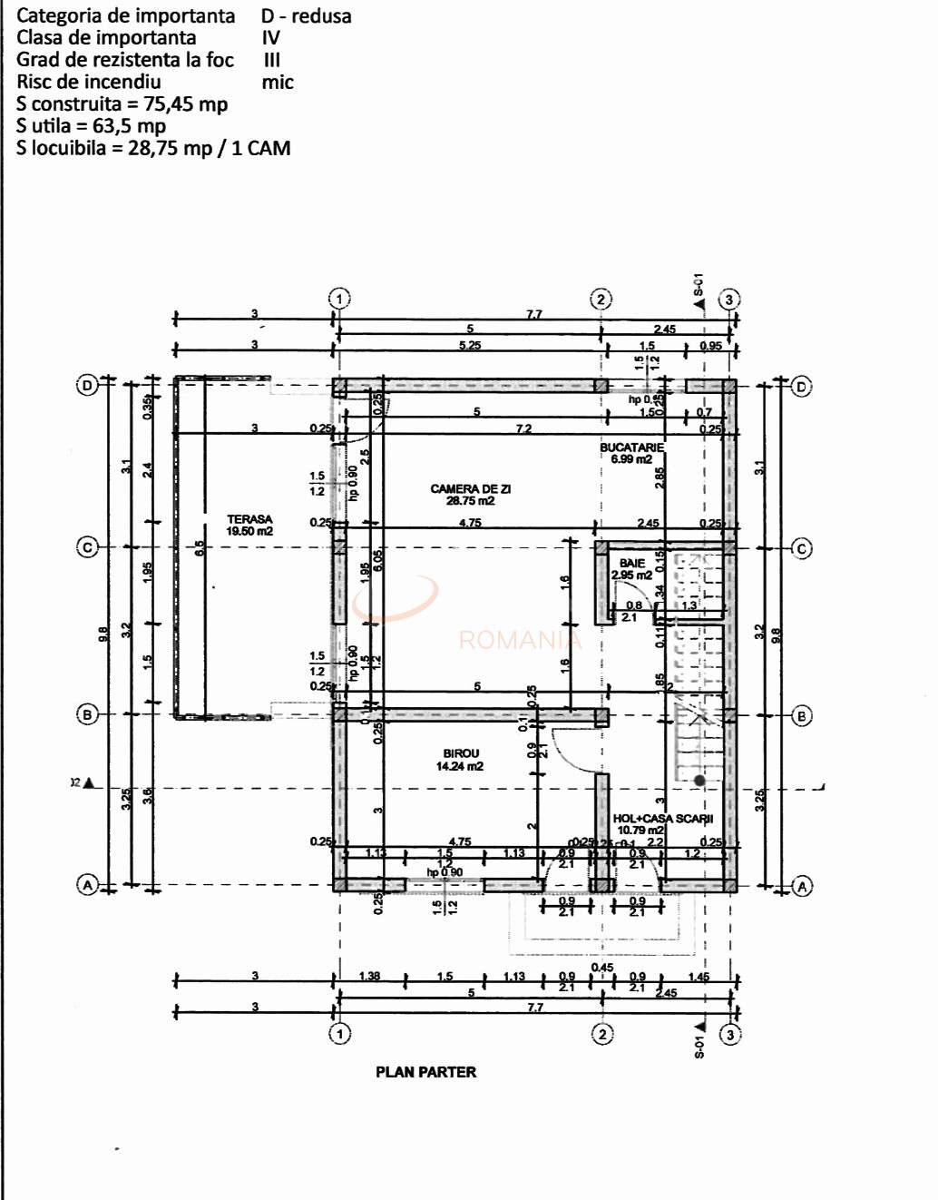
Dupa cum se poate observa si in schitele atasate, la parter este livingul cu bucatarie open-space (36 mp), baie (2,95 mp), camera/birou (14,24 mp), hol ( 10,79 mp) si o terasa de 19,5 mp, in timp ce la etaj sunt trei dormitoare (14,02; 14,13 respectiv 14, 82 mp), doua bai (4,18 si 4,5 mp) si un hol de 11,86 mp.

In curtea fiecarei case este si un loc de parcare pentru masina.

Vilele beneficiaza de toate utilitatile necesare (apa, curent, gaz, canalizare), intruat sunt situate intr-o zona linistita de case, si se pot finisa dupa preferintele si nevoile viitorilor cumparatori.

Pentru mai multe detalii sau vizionari nu ezitati sa ma contactati.

An constructie 2023

Suprafata construita 150 mp

Suprafata utila 127 mp

Regim Inaltime P + 1

Etaj P + 1

Nr. camere 5 camere

Nr. bai 3

Nr. balcoane 0 balcoane

Tip constructie Vila

Status constructie Finalizat

Amprenta la sol 100

Teren suprafata 306 mp

Deschidere stradala 18 m

Curte Individuala Da

Disponibila incepand cu 2023-04-24

Judet Ilfov

Oras/ Sector Nord

Zona Tunari

Gps lat 44.551428

Gps lng 26.120935

Nr. terase 1

Apa

Gaz

Canalizare

Incalzire prin pardoseala

Parcare in curte

Incalzire centrala termica

Fara amenajari

Curent electric

Cablu TV

Gradina

Vila Tunari 5 camere

Proprietate vanduta

Ai o proprietate similara? Vinde-o cu noi.
Vinde apartament

Cod: REV2002479

Proprietati similare

Ilfov, Nord, Tunari

Casa, 5 camere

130 mp P + 1 2025

205.000 EUR

Detalii

Ilfov, Nord, Corbeanca

Casa, 5 camere

143.6 mp P + 1 2021

207.000 EUR

Detalii

Ilfov, Nord, Balotesti

Casa, 5 camere

130 mp P + 1 2023

185.000 EUR

Detalii

Ilfov, Est, Afumati

Casa, 5 camere

127 mp P + 1 + M 2023

179.000 EUR

Detalii

Ilfov, Nord, Buftea

Casa, 5 camere

202.79 mp P + M 2010

195.000 EUR

Detalii

Ilfov, Nord, Buftea

Casa, 5 camere

132 mp P + 1 2022

195.000 EUR

Detalii

Ilfov, Nord, Snagov

Casa, 5 camere

154.12 mp P + 1 2000

199.900 EUR

Detalii

Ilfov, Sud, Berceni

Casa, 5 camere

155 mp P + 1 + M 2020

199.990 EUR

Detalii
Case 5 camere vandute in Nord, Ilfov Case 5 camere de vanzare in Nord, Ilfov

Afla primul de cele mai bune oferte
inainte sa ajunga pe piata

Aboneaza-te la newsletter

Aboneaza-te la notificari