Tunari 5 camere 202 mp P + 1 423 mp

SVN Residentialist Pipera va propune spre vanzare o vila moderna, aflata in stadiu de constructie, disponibila pentru achizitie in faza de proiect.

Pret: 320.000 € (persoana fizica, include pompa de caldura)

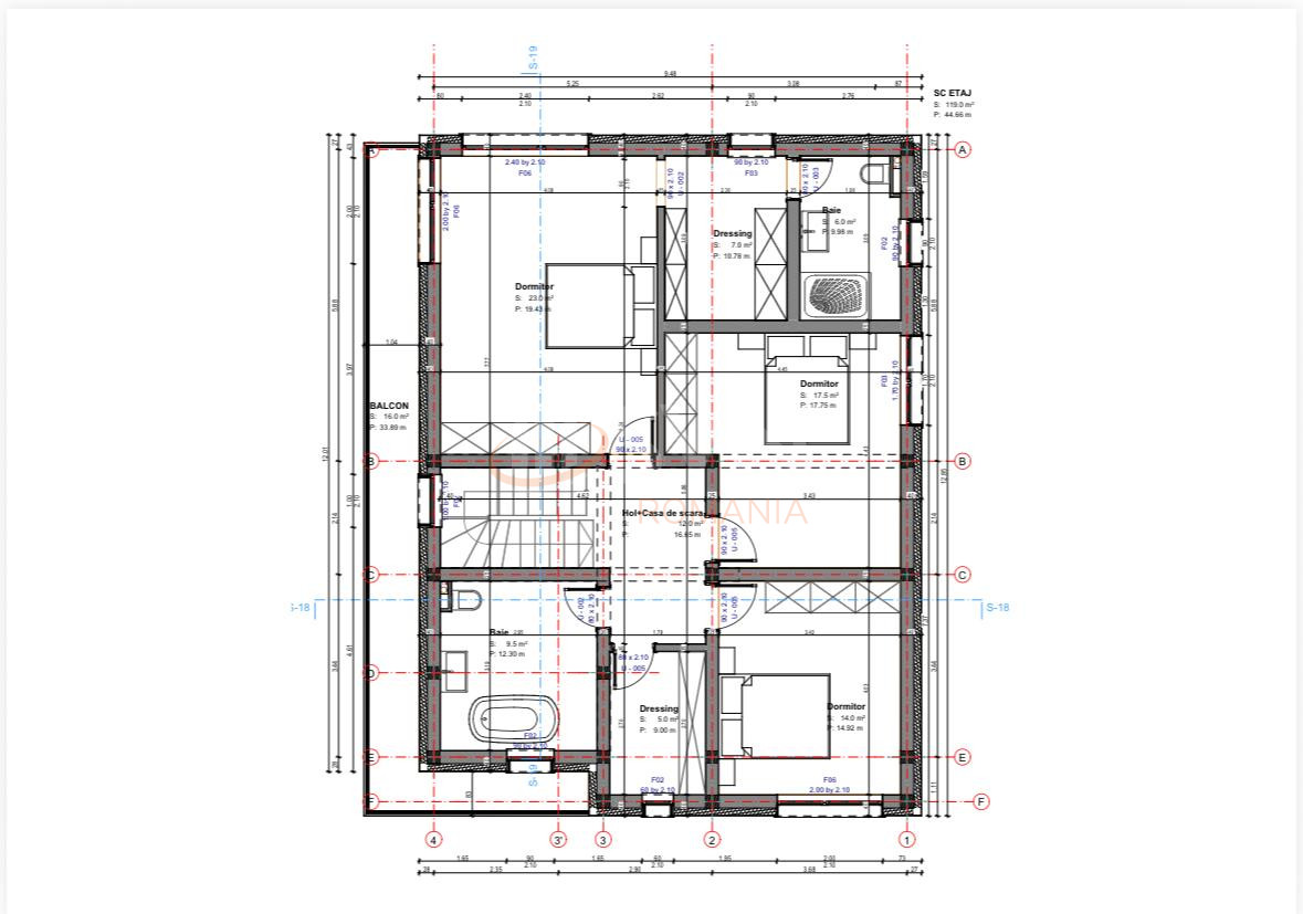
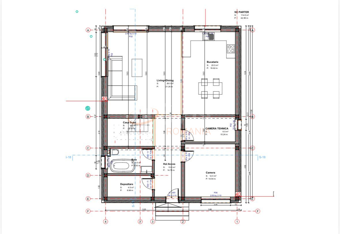
Detalii proprietate:
•Suprafata utila: 202 mp
•Suprafata construita: 249 mp
•Suprafata teren: 423 mp

Constructia este realizata cu materiale de calitate si respecta standarde ridicate de executie:
•Fundatie la 1,5 m adancime si 1 m latime
•Grinzi fundatie armate cu fier de 14 mm si etrieri de 8 mm si 10 mm
•Structura solida cu grinzi realizate din 10 bare de fier de 14 mm
•Placa in zona living intarita cu 8 grinzi din fier de 16 mm, etrieri de 10 mm, dispusi din 10 in 10 cm

Posibilitate de personalizare in functie de preferinte (in functie de stadiul lucrarii)
Se pot pune la dispozitie la cerere toate planurile: arhitectura, instalatii electrice si sanitare, detalii tehnice
Sistem de incalzire eficient – pompa de caldura inclusa

Casa este in stadiu de constructie, termenul de finalizare este 15.06.2026.
Pozele sunt cu titlu de prezentare.

Pentru mai multe detalii sau stabilirea unei vizionari, va stam la dispozitie.

An constructie 2026

Suprafata construita 249 mp

Suprafata utila 202 mp

Regim Inaltime P + 1

Etaj P + 1

Nr. camere 5 camere

Nr. bai 3

Nr. balcoane 0 balcoane

Tip constructie Vila

Status constructie Nefinalizat

Teren suprafata 423 mp

Curte Individuala Da

Disponibila incepand cu 2026-04-01

Judet Ilfov

Oras/ Sector Nord

Zona Tunari

Gps lat 44.538633

Gps lng 26.148302

Geamuri termopan

Parchet

Apa

Gresie

Faianta

Canalizare

Incalzire prin pardoseala

Plansee beton

Curent electric

Gradina

Valoare proprietate (€)

Perioada (ani)

Procent avans (48.000 €)


Suma creditata 272.000

Dobanda 4.9%

Rata lunara 6.725 lei

Broker Imobiliar

Alexandra Crainiceanu , Consultant imobiliar Vezi toate proprietatile

0317100200

Casa 5 camere Pipera Tunari

Pret vanzare
320.000 €

Telefon Consultant imobiliar
0317100200

Cod: REV2005655

Proprietati similare

Ilfov, Nord, Tunari

Casa, 5 camere

154 mp P + 1 2025

320.000 EUR

Detalii

Ilfov, Nord, Tunari

Casa, 5 camere

285 mp P + 1 2025

320.000 EUR

Detalii

Ilfov, Nord, Tunari

Casa, 5 camere

135 mp P + 1 2024

350.000 EUR

Detalii

Ilfov, Nord, Tunari

Casa, 5 camere

170 mp P + 1 + M 2024

320.000 EUR

Detalii
Exclusiv Discount

Ilfov, Est, Voluntari

Casa, 5 camere

113 mp P + 1 + M 2022

339.000 EUR

Detalii

Ilfov, Nord, Tunari

Casa, 5 camere

150 mp P + 1 + M 2025

320.000 EUR

Detalii
Exclusiv Discount

Ilfov, Nord, Tunari

Casa, 5 camere

282 mp P + 1 2025

299.000 EUR

Detalii
Exclusiv Discount

Ilfov, Est, Voluntari

Casa, 5 camere

143 mp P + 1 + M 2024

320.000 EUR

Detalii
Case 5 camere vandute in Nord, Ilfov Case 5 camere de vanzare in Nord, Ilfov

Afla primul de cele mai bune oferte
inainte sa ajunga pe piata

Aboneaza-te la newsletter

Aboneaza-te la notificari