Tunari 6 camere 265 mp P + 1 + M 350 mp

SVN Residentialist va propune spre vanzare un ansamblu de 4 case identice fiecare cu un lot de teren de 340 mp si o suprafata utila de 256 mp dispusi pe parter etaj 1 si etaj 2 retras in Tunari.

Casele beneficiaza de toate utilitatile curent, apa, gaz, canalizare, strazi asfaltate , intr-o zona linistita in Tunari in continua dezvoltare si aproape de mijloace de transport in comun, magazine, restaurante si farmacii.

Casele au prevazute 2 locuri de parcare in fata casei si o curte libera de aproximativ 180 mp.

Casele sunt dispuse astfel:

- la parter un living generos de 42 mp cu bucatarie si zona de dining , baie si un birou/ dormitor de 15mp.

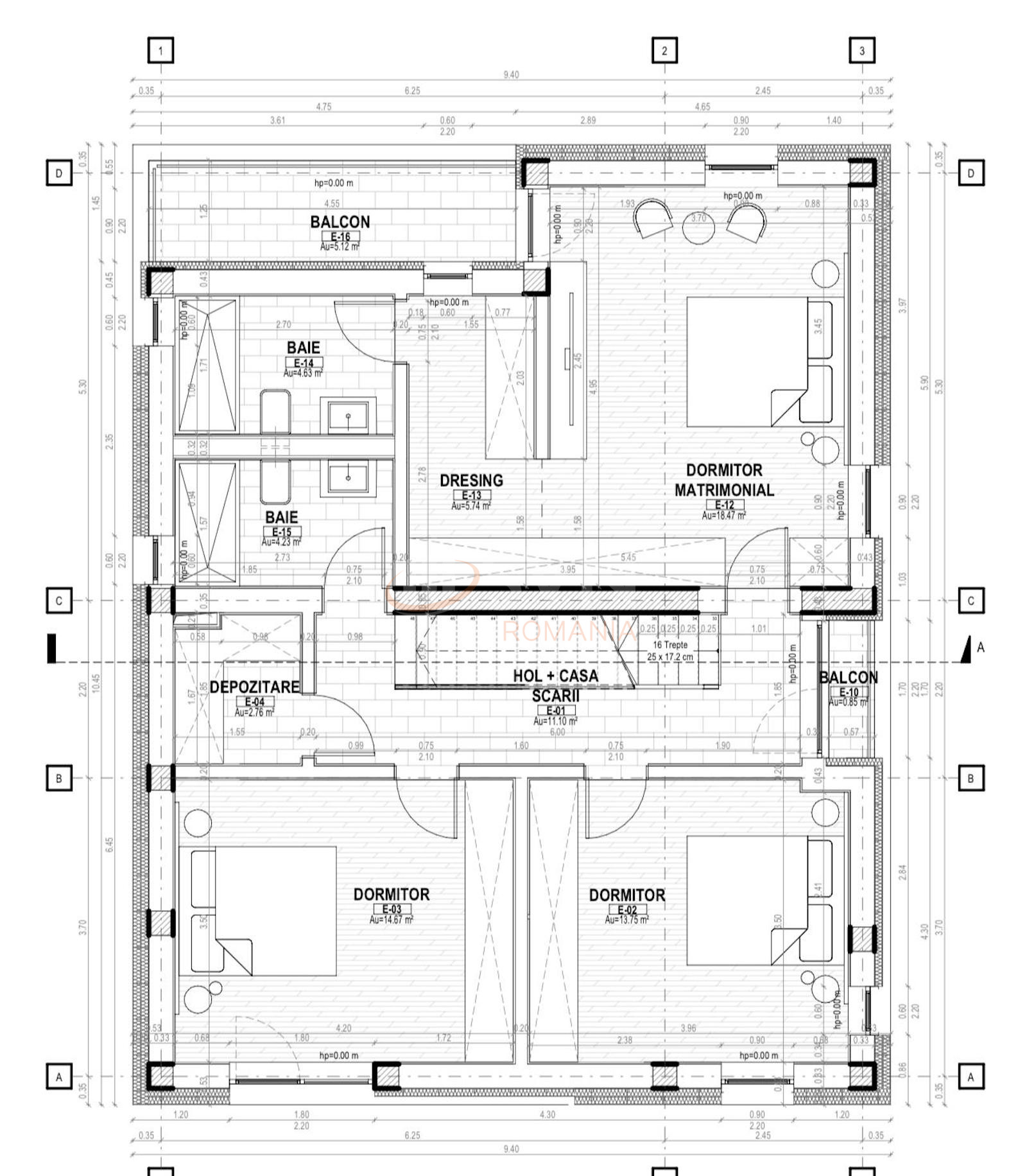
- La etaj avem dormitor matrimonial de 19 mp din care se iese in balcon la care se adauga un dressing de 6 mp si o baie, 2 dormitoare secundare de 14 mp deservite de o baie.

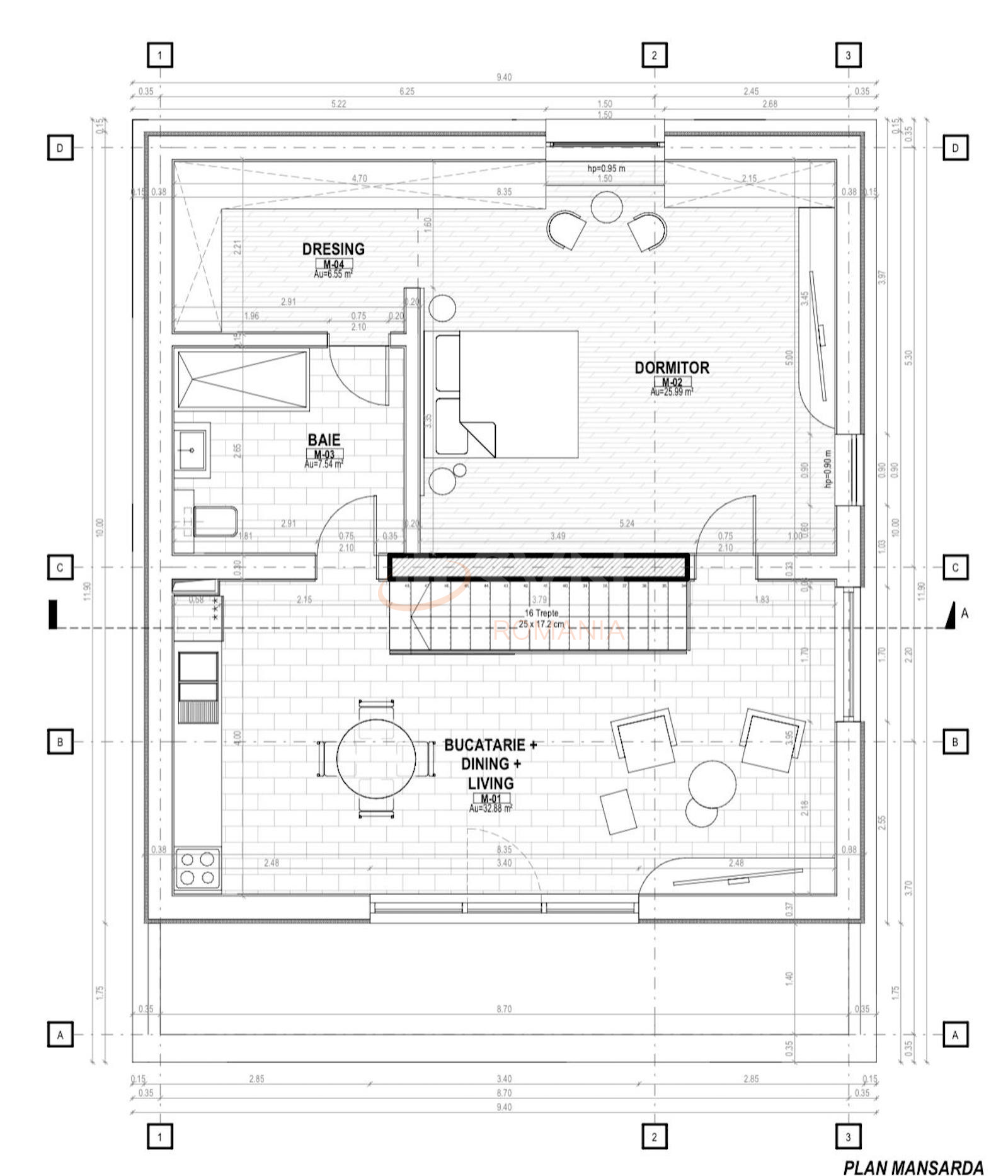
- la etaj 2 un dormitor de 32 mp cu dressing si baie si zona de relaxare de 33 mp la care se adauga un balcon generos.

Amprenta la sol este de 105 mp, terasa de 25 mp si o curte de 200 mp

Casele sunt construite din cele mai bune materiale , caramida poroterm de 12 cm inclusiv compartimentarea interioara, spatii vitrate mari tripan cu profil din aluminiu si se vand complet finisate.

Pentru mai multe detalii si vizionari va rog sa ma contactati.

An constructie 2023

Suprafata construita 300 mp

Suprafata utila 265 mp

Regim Inaltime P + 1 + M

Etaj P + 1 + M

Nr. camere 6 camere

Nr. bai 3

Nr. balcoane 3 balcoane

Tip constructie Vila

Status constructie Finalizat

Amprenta la sol 105 mp

Teren suprafata 350 mp

Curte Individuala Da

Disponibila incepand cu 2023-10-13

Judet Ilfov

Oras/ Sector Nord

Zona Tunari

Gps lat 44.551761

Gps lng 26.123712

Nr. terase 1

Spatiu de joaca

Geamuri termopan

Acoperis tigla

Parchet

Apa

Gresie

Gaz

Faianta

Canalizare

Incalzire prin pardoseala

Parcare in curte

Incalzire centrala termica

Aer conditionat

WC serviciu

Detector de gaze

Spatiu de depozitare

Termoizolatie

Internet prin fibra optica

Curent electric

Gradina

Valoare proprietate (€)

Perioada (ani)

Procent avans (49.485 €)


Suma creditata 280.415

Dobanda 4.9%

Rata lunara 6.933 lei

Broker Imobiliar

Alexandra Duma , Consultant imobiliar Vezi toate proprietatile

0317100200

Casa superba 6 camere cu teren 350 mp

Pret vanzare + TVA
329.900 €

Telefon Consultant imobiliar
0317100200

Cod: REV2002487

Proprietati similare

Ilfov, Nord, Otopeni

Casa, 6 camere

272 mp P + 1 + M 2017

320.000 EUR

Detalii

Ilfov, Nord, Corbeanca

Casa, 6 camere

300 mp P + 1 + M 2008

315.000 EUR

Detalii

Ilfov, Nord, Balotesti

Casa, 6 camere

460 mp D + P + 1 + M 2005

340.000 EUR

Detalii

Ilfov, Nord, Corbeanca

Casa, 6 camere

220 mp P + 1 2023

320.000 EUR

Detalii

Ilfov, Nord, Mogosoaia

Casa, 6 camere

240 mp P + 1 2023

315.000 EUR

Detalii

Ilfov, Est, Dobroesti

Casa, 6 camere

195 mp P + 2 2019

330.000 EUR

Detalii
Case 6 camere vandute in Nord, Ilfov Case 6 camere de vanzare in Nord, Ilfov

Afla primul de cele mai bune oferte
inainte sa ajunga pe piata

Aboneaza-te la newsletter

Aboneaza-te la notificari