1 Mai 9 camere 194.23 mp P + M 400 mp

SVN Romania va prezinta spre achizitionare un ansamblu de doua case individuale in zona 1 Mai, situate pe acelasi teren in suprafata totala de 400mp in zona Ion Mihalache.Pretul de listare este pentru achizitionare ambelor imobile complet mobilate si utilate.Aceste nu se vand separat.

Una dintre case este destinata pentru locuit, iar cealalta este utilizata in prezent ca si spatiu comercial, dar poate fi adaptata si pentru locuit. Aceste proprietati ofera multiple posibilitati, fie ca doriti sa aveti locuinta si afacerea in acelasi loc, fie ca doriti sa aveti spatiu suplimentar pentru diverse activitati.


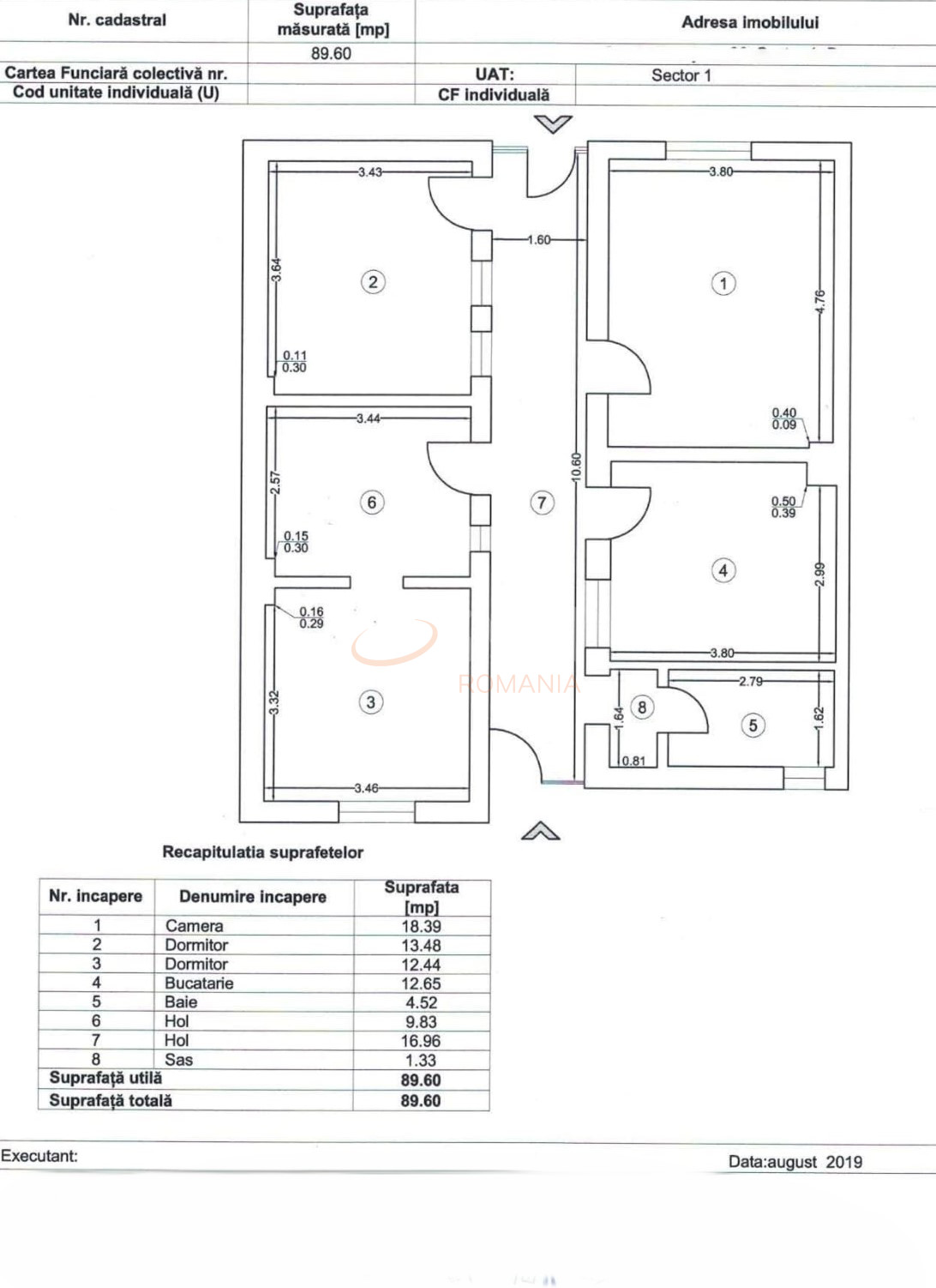
Corpul A, construita in anul 1975 are o suprafata de 90.60mp utili si este complet decomandata. Aceasta este compusa dintr-un living generos si luminos cu o suprafata de 18.39mp , 2 dormitoare de 13.48mp respectiv 12.44mp ,o camera de 9,83 mp ce se poate folosi ca si dressing sau camera de joaca pentru copii, bucatarie de 12.65mp si o baie de 4.52mp. Accesul in fiecare camera se face printr-un hol spatios de 16.96mp.

Corpul B in prezent utilzat ca si spatiu comercial a fost construit in anul 1995, si are o suprafata utila de 104mp. Acesta este construit pe parter si mansarda si este compartimentat dupa cum urmeaza:

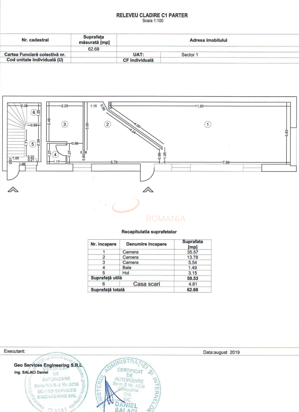
Parter: In prezent acest spatiu estee destinat pentru firma de catering si are urmatoarea compartimentare : 3 camere: 35.57 mp, 13.78 mp, respectiv 5.34 mp - potrivite pentru diverse activitati, baie si hol de acces.

La mansarda regasim un salon de manichiura/pedichiura compartimentat astfel:2 camere de 20.68mp respectiv 19.28mp, baie si hol de acces.

Ambele case se vand complet mobilate si utilate cum sunt prezentate in poze.

Ambele corpuri sunt independente din punct de vedere enegetic , amandoua avand centrala proprie. Corpul B este dotat cu panouri solare .
Curte libera: 198 mp impartita in doua, oferind spatiu verde si loc pentru diverse activitati in aer liber.


Localizare si accesibilitate:
Metrou 1 Mai: 5 minute distanta de mers pe jos
Autobuze 476, 86, 97: 3 minute distanta
Autobuz 381: 10 minute distanta
Tramvaie 24, 45: 3 minute distanta
Supermarketuri: Lidl la 10 minute distanta de mers pe jos, Mega Image la 5 minute distanta
Parcul Herastrau: 10 minute de mers cu masina


Aceasta proprietate este ideala pentru cei care doresc sa imbine locuinta cu activitatile comerciale sau pentru cei care au nevoie de spatiu suplimentar pentru diverse activitati. Cu dotari moderne si o compartimentare eficienta, aceasta oferta este unica pe piata imobiliara din zona Ion Mihalache .

Pentru mai multe detalii si vizionari nu ezitati sa ne contactati.

An constructie 1975

Suprafata construita 256 mp

Suprafata utila 194.23 mp

Regim Inaltime P + M

Etaj P + M

Nr. camere 9 camere

Nr. bai 1

Nr. balcoane 0 balcoane

Tip constructie Vila

Status constructie Finalizat

Amprenta la sol 197

Teren suprafata 400 mp

Deschidere stradala 10 m

Curte Individuala Da

Disponibila incepand cu 2024-10-21

Judet Bucuresti

Oras/ Sector Sector 1

Zona 1 Mai

Gps lat 44.473934

Gps lng 26.052561

Spatiu de joaca

Geamuri termopan

Parchet

Apa

Gresie

Gaz

Faianta

Canalizare

Calorifere

Parcare in curte

Incalzire centrala termica

Consolidata

Aer conditionat

Renovat recent

Termoizolatie

Internet Wireless

Internet prin fibra optica

Internet prin cablu

Curent electric

Detector de incendiu

Pod

Beci

Panouri solare

Casa 1 Mai l Teren 400mp l Panouri Fotovoltaice

Proprietate vanduta

Ai o proprietate similara? Vinde-o cu noi.
Vinde apartament

Cod: REV2004107

Proprietati similare

Bucuresti, Baneasa

Casa, 9 camere

264 mp P + M 1988

385.000 EUR

Detalii

Bucuresti, Mosilor

Casa, 9 camere

320 mp D + P + 1 + M 1950

360.000 EUR

Detalii
Case 9 camere vandute in 1 Mai, Bucuresti Case 9 camere de vanzare in 1 Mai, Bucuresti

Afla primul de cele mai bune oferte
inainte sa ajunga pe piata

Aboneaza-te la newsletter

Aboneaza-te la notificari