Baneasa 6 camere 470 mp D + P + 2 600 mp

SVN Romania va propune spre vanzare o vila situata in zona Baneasa, intr-un complex rezidential cu circuit inchis, cu deschidere la lacul Grivita.

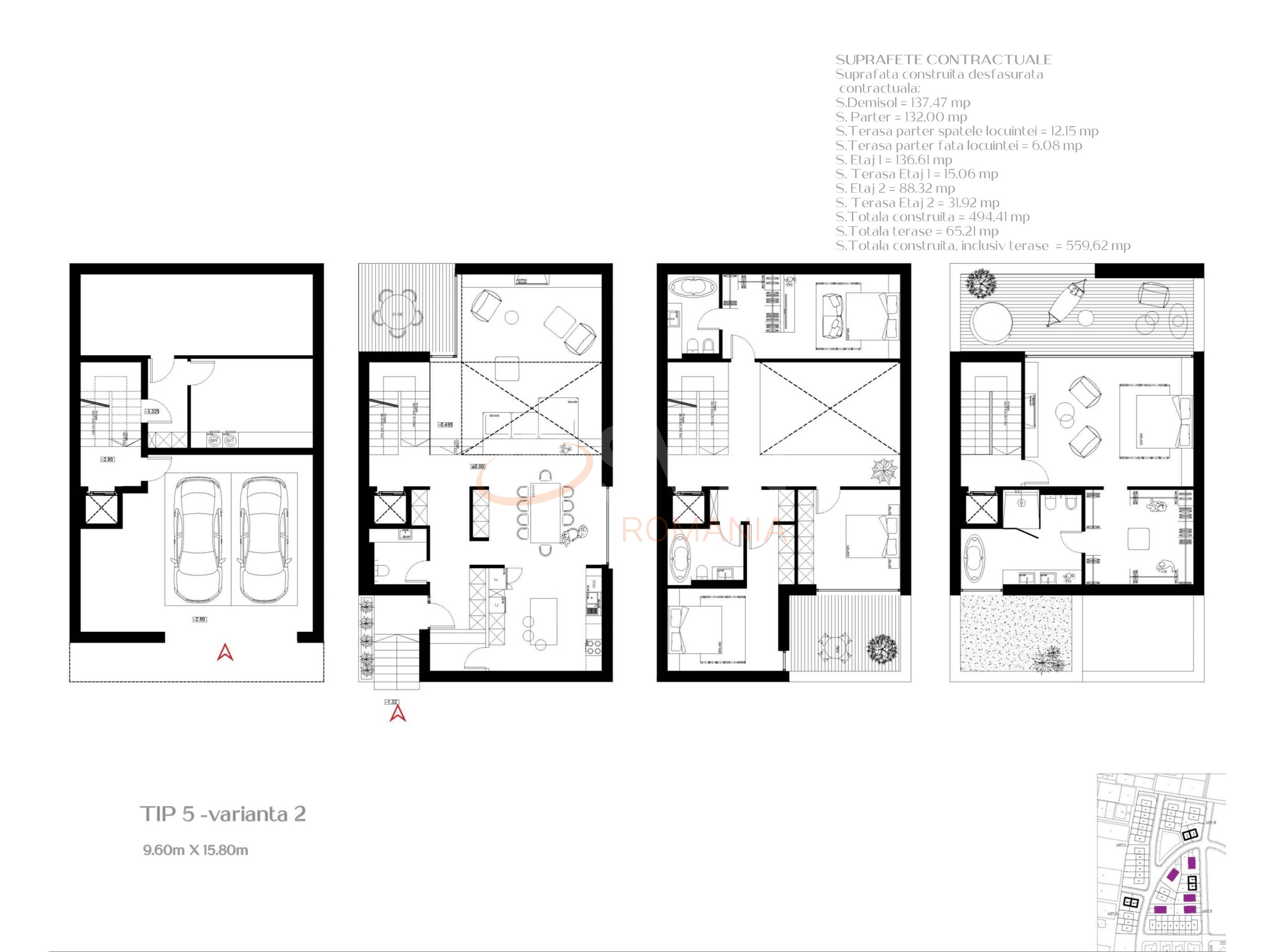
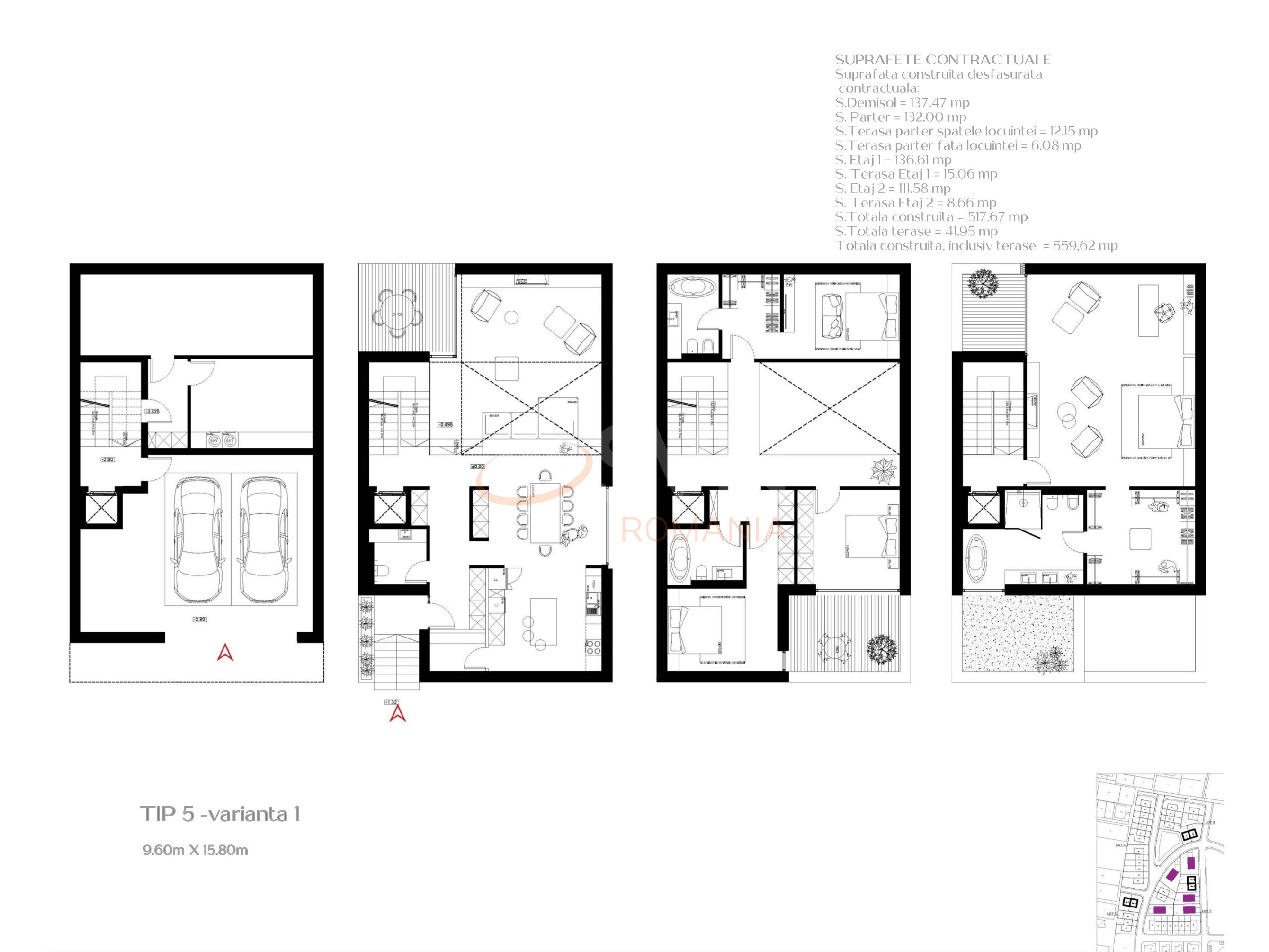
Vila TIP 5 este compusa din D+P+E1+E2 si are in compunnenta 6 camere dispuse astfel:
Demisol: garaj pentru 2 masini, camera de depozitare, camera tehnica, hol
Parter: living, dinning, bucatarie, baie, spatiu depozitare, hol, terasa
Etaj 1: dormitor master cu dressing si baie, 2 dormitoare, baie, terasa, hol
Etaj 2: dormitor master cu dressing si baie, 2 terase, hol.

Complexul este in faza de executie, primele vile urmand sa fie predate la sfarstul anului 2023. Predarea se va face la stadiul de alb, adica executat integral pe exterior, cu instalatiile de incalzire in pardoseala si racire prin ventiloconvectoare instalate, cu pereti interior vopsiti alb, dar fara gresie, faianta, grupuri sanitare, usi interior sau parchet.

Casele ,,smart sunt proiectate pentru a indeplini noile cerinte ale pietei si provocarilor legate de asigurarea confortului, cu un cost echilibrat. Astfel, noile locuinte vor beneficia de pompe de caldura moderne ce vor functiona cu energie electrica si care vor asigura atat incalzirea cat si racirea casei. Pentru a asigura un consum de utilitati cat mai redus, casele vor fi izolate termic la cele mai inalte standarde si vor beneficia de pregatiri de sisteme care sa permita utilizarea inteligenta a resurselor, programarea si controlul de la distanta. Dotarea standard vine cu panouri solare precum si pregatirea pentru instalarea de panouri fotovoltaice, care pot reduce semnificativ impactul financiar al consumului de energie electrica.

Complexul este format din vile si blocuri cu regim mic de inaltime si este dotat cu spatii de joaca pentru copii, alei pietonale largi, gradinita, paza 24/24, supraveghere video. Toate casele vor beneficia de curti generoase, cu suprafete de teren care pot varia intre 525 si 775 de metri patrati, fiecare vila beneficiind de minim doua locuri de parcare.

Pentru mai multe informatii nu ezitati sa ne contactati.

An constructie 2023

Suprafata construita 518 mp

Suprafata utila 470 mp

Regim Inaltime D + P + 2

Etaj D + P + 2

Nr. camere 6 camere

Nr. bai 4

Nr. balcoane 2 balcoane

Tip constructie Vila

Status constructie Nefinalizat

Amprenta la sol 140

Teren suprafata 600 mp

Deschidere stradala 14 m

Curte Individuala Da

Disponibila incepand cu 2025-05-09

Judet Bucuresti

Oras/ Sector Sector 1

Zona Baneasa

Gps lat 44.499060

Gps lng 26.059708

Nr. terase 2

Spatiu de joaca

Geamuri termopan

Telefon

Apa

Gaz

Canalizare

Garaj

Plansee beton

Parcare in curte

Incalzire centrala termica

WC serviciu

Fara amenajari

Detector de gaze

Spatiu de depozitare

Termoizolatie

Interfon

Internet Wireless

Internet prin fibra optica

Internet prin cablu

Curent electric

Cablu TV

Detector de incendiu

Supraveghere video

Gradina

Valoare proprietate (€)

Perioada (ani)

Procent avans (211.050 €)


Suma creditata 1.195.950

Dobanda 4.9%

Rata lunara 29.568 lei

Broker Imobiliar

Andrei Haiduc , Consultant imobiliar Vezi toate proprietatile

0317100200

Baneasa - Vila smart in complex rezidential

Pret vanzare + TVA
1.407.000 €

Telefon Consultant imobiliar
0317100200

Cod: REV2002134

Proprietati similare

Bucuresti, Dorobanti, Capitale

Casa, 6 camere

217 mp P + 1 + M 2000

1.300.000 EUR

Detalii

Bucuresti, Calea Calarasilor

Casa, 6 camere

275 mp S + P + 1 + M 1933

1.320.000 EUR

Detalii
Case 6 camere vandute in Baneasa, Bucuresti Case 6 camere de vanzare in Baneasa, Bucuresti

Afla primul de cele mai bune oferte
inainte sa ajunga pe piata

Aboneaza-te la newsletter

Aboneaza-te la notificari