Iancu Nicolae 6 camere 250 mp P + 2 225 mp

SVN Romania va propune spre vanzare aceasta vila tip Duplex (perete dublu din caramida, cu izolatie intre cei doi pereti) situata in zona Iancu Nicolae.


Sunt incluse:
Toate instalatiile (sanitare, electrice)
Incalzirea in pardoseala controlabila pe zone.
Centrala proprie
Trasee aer conditionat multi split
Usa de intrare din alumimiu
Corpuri de iluminat de exterior
Gard finalizat din beton, aluminiu
Dale/gresie exterior in curte
Scari exterioare finisate complet din granit
Pereti interiori complet finisati la alb
Tamplarie premium din aluminiu cu geam tripan, profil Alumil


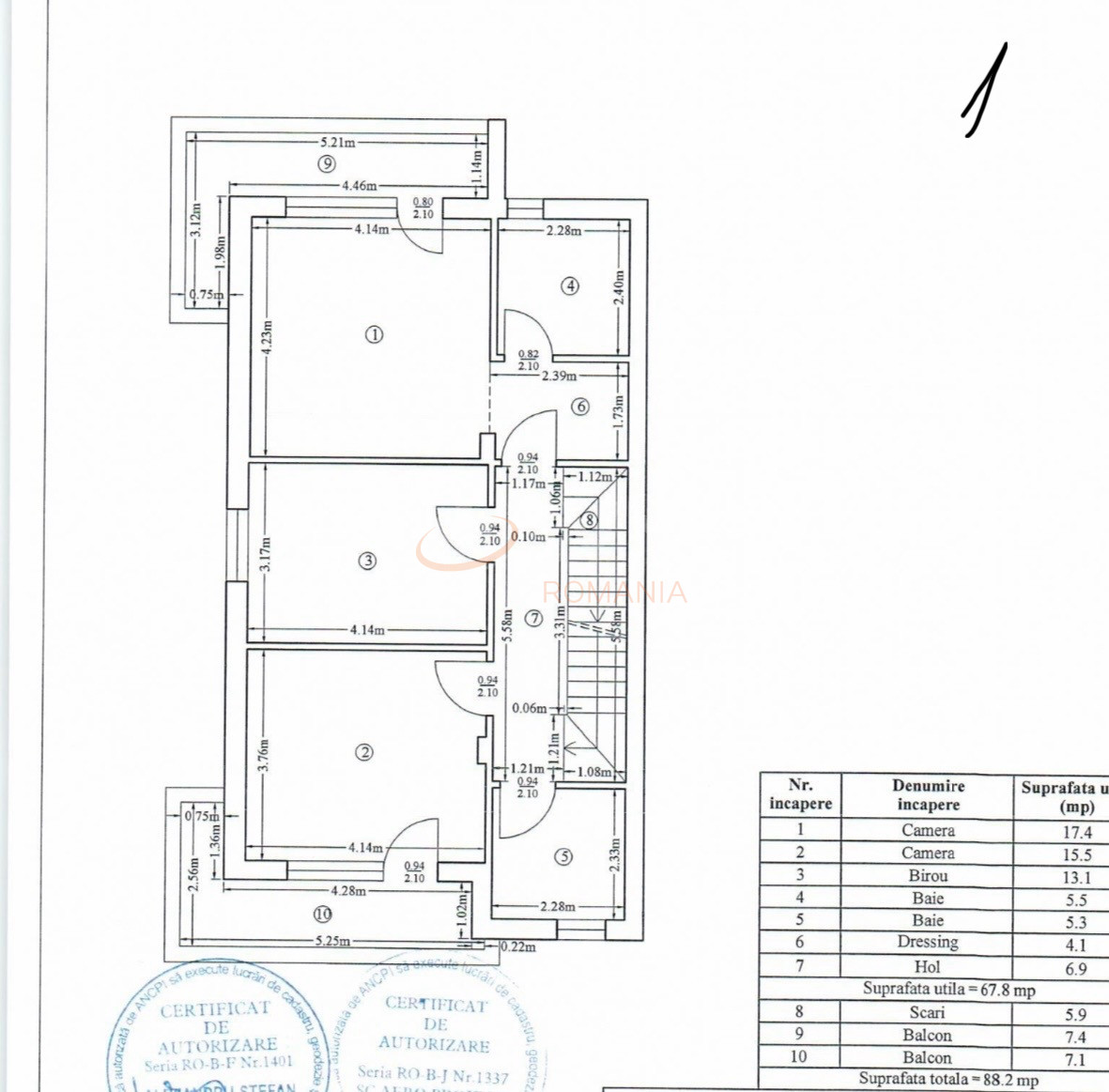
Parter: Living generos, bucatarie cu zona de luat masa cu iesite in terasa din curte. Tot la parter mai avem o baie, un vestibul spatios si o debara.

Etaj 1: La etaj regasim un dormitor matrimonial cu dressing, baie proprie si o terasa. Aici mai avem doua dormitoare, o baie si inca o terasa.

Etaj 2: Aici avem un hobby room spatios cu iesire in terasa, un dormitor matrimonial cu dressing si o baie.
Imprejmuire: Vilele vin complet imprejmuite cu gard din plasa/beton/caramida.
Utilitati: casa beneficiaza de toate utlitatile: apa curenta, canalizare, gaze si curent electric.
Pregatire panouri fotovoltaice!

Pentru detalii va asteptam la vizionari!

An constructie 2023

Suprafata construita 290 mp

Suprafata utila 250 mp

Regim Inaltime P + 2

Etaj P + 2

Nr. camere 6 camere

Nr. bai 3

Nr. balcoane 3 balcoane

Tip constructie Vila

Status constructie Finalizat

Amprenta la sol 86

Teren suprafata 225 mp

Curte Individuala Da

Disponibila incepand cu 2025-10-21

Judet Bucuresti

Oras/ Sector Sector 1

Zona Iancu Nicolae

Gps lat 44.514968

Gps lng 26.111699

Nr. terase 2

Parchet

Apa

Gresie

Gaz

Faianta

Incalzire prin pardoseala

Aer conditionat

Curent electric

Canalizare

Parcare in curte

WC serviciu

Internet Wireless

Internet prin cablu

Telefon

Acoperis tabla

Plansee beton

Incalzire centrala termica

Detector de gaze

Spatiu de depozitare

Termoizolatie

Interfon

Internet prin fibra optica

Detector de incendiu

Gradina

Valoare proprietate (€)

Perioada (ani)

Procent avans (80.850 €)


Suma creditata 458.150

Dobanda 4.9%

Rata lunara 11.327 lei

Broker Imobiliar

Andrei Haiduc , Consultant imobiliar Vezi toate proprietatile

0317100200

Vila Iancu Nicolae I Gradina Zoologica I Jollie Ville

Pret vanzare
539.000 €

Telefon Consultant imobiliar
0317100200

Cod: REV2003113

Proprietati similare

Bucuresti, Pipera

Casa, 6 camere

350 mp P + 1 2005

580.000 EUR

Detalii

Bucuresti, Bucurestii Noi, Jiului

Casa, 6 camere

220 mp P + 1 + M 2009

509.000 EUR

Detalii

Bucuresti, Bucurestii Noi

Casa, 6 camere

275 mp P + 1 + M 2004

550.000 EUR

Detalii

Bucuresti, Floreasca

Casa, 6 camere

226 mp S + P + M 1961

495.000 EUR

Detalii

Bucuresti, Gara De Nord, Grivita

Casa, 6 camere

181 mp S + P + M 2004

490.000 EUR

Detalii

Bucuresti, Iancului

Casa, 6 camere

140 mp D + P + 1 + M 2005

535.000 EUR

Detalii

Bucuresti, Parcul Carol

Casa, 6 camere

230 mp S + P + 1 1980

500.000 EUR

Detalii

Bucuresti, Berceni

Casa, 6 camere

200 mp P + 1 2009

584.900 EUR

Detalii
Case 6 camere vandute in Pipera, Bucuresti Case 6 camere de vanzare in Pipera, Bucuresti

Afla primul de cele mai bune oferte
inainte sa ajunga pe piata

Aboneaza-te la newsletter

Aboneaza-te la notificari