Banu Manta 10 camere 524 mp S + P + 1 + M 523 mp

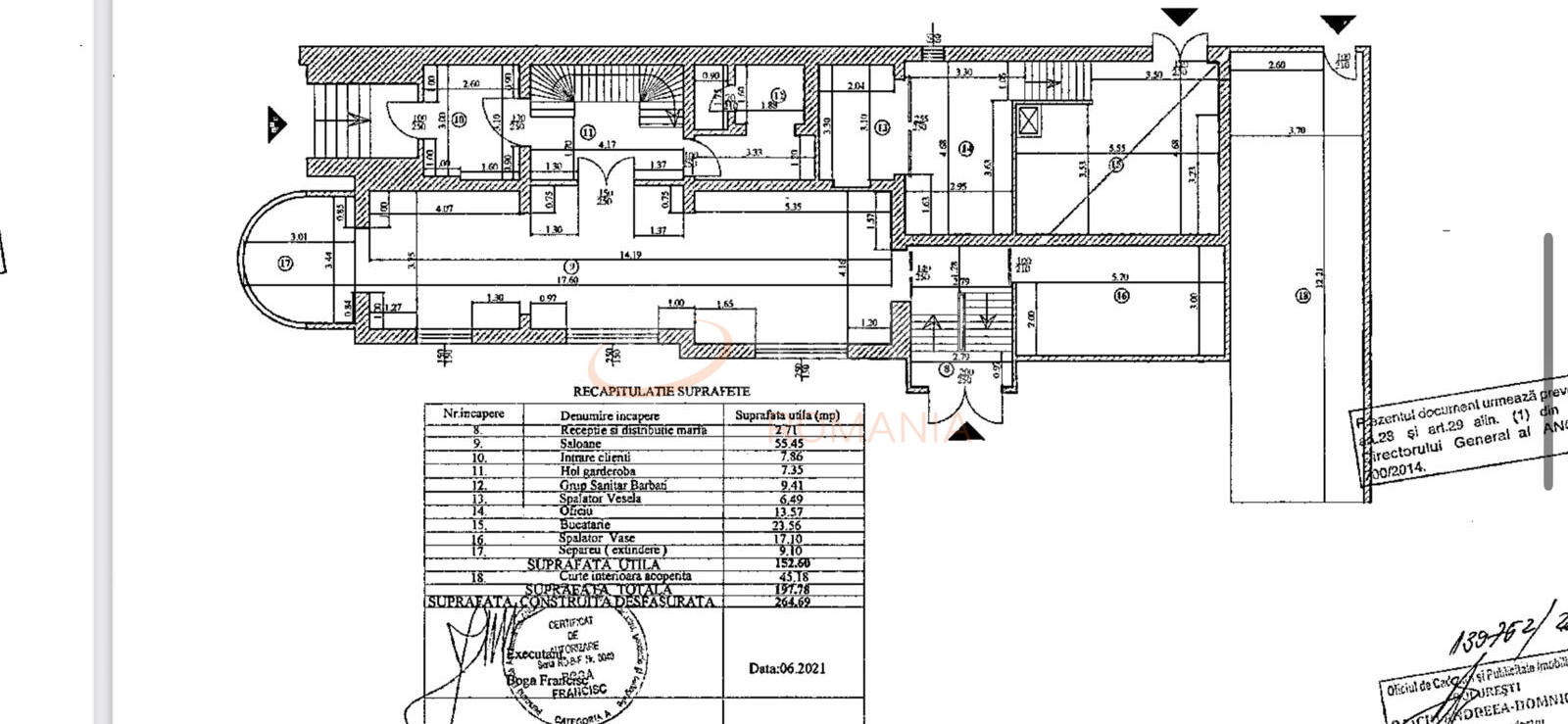
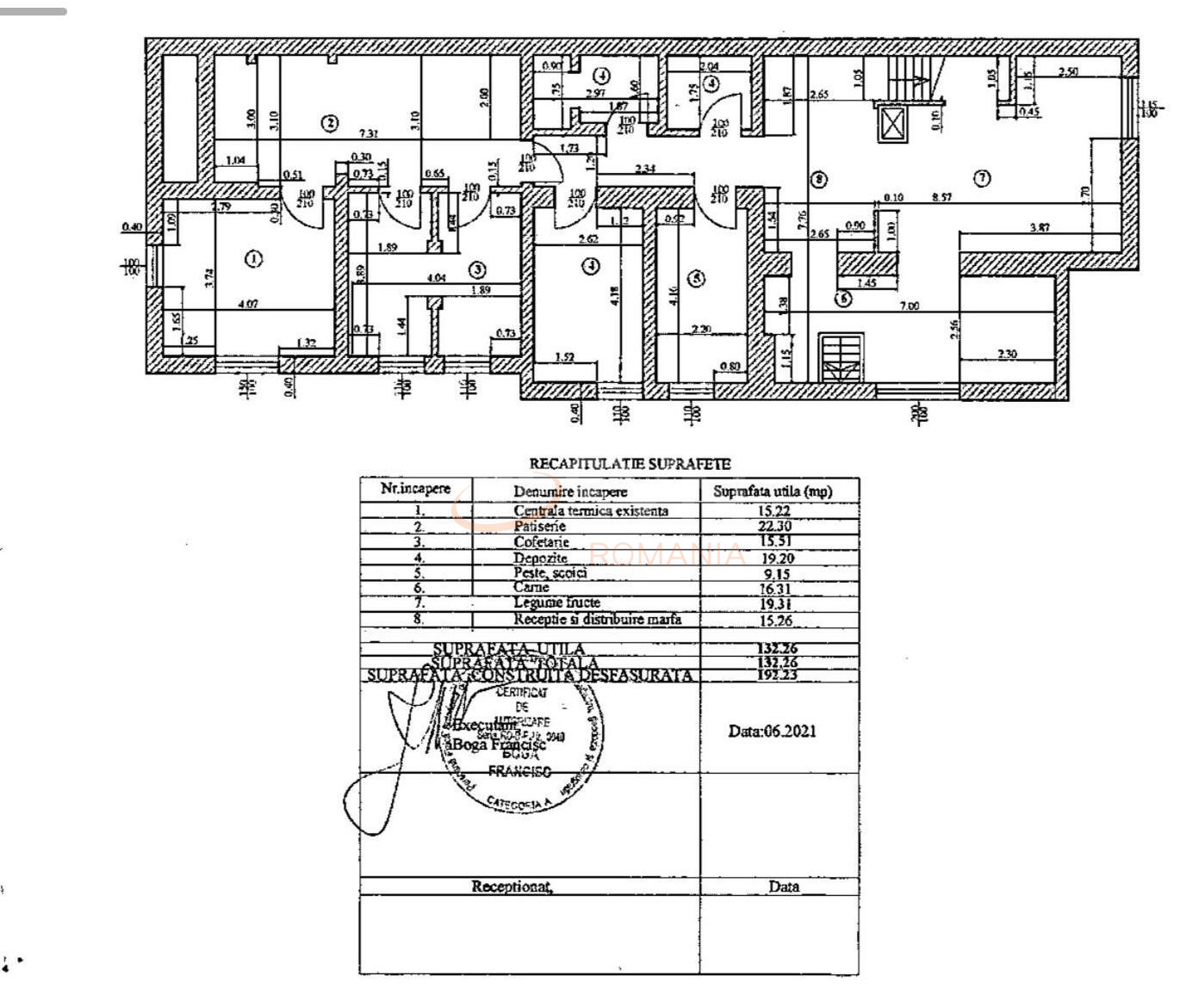
SVN Romania va propune spre achizitie un imobil situat intr-o locatie ultracentrala in apropiere de Piata Victoriei pe bulevardul Banu Manta. Avand o suprafata utila de aproximativ 550 mp , cladirea poate fi utilizata cu scopuri diverese de la restaurant , cabinet, afterschool sau clinica. In acest moment spatiul este amenajat pentru restaurant avand creat un flux functional.
Imobilul este structurat pe subsol, parter, etaj si mansarda. Deasemenea dispune de curte libera de aproximativ
250 mp la care se adauga terasa acoperita de 50 mp.
Bucataria cuprinde echipamente profesionale pentru activitate horeca precum si camere frigorifice.
Pentru mai multe detalii , va rugam sa ne contactati.

An constructie 1923

Suprafata construita 787 mp

Suprafata utila 524 mp

Regim Inaltime S + P + 1 + M

Etaj S + P + 1 + M

Nr. camere 10 camere

Nr. bai 8

Nr. balcoane 2 balcoane

Tip constructie Vila

Status constructie Finalizat

Amprenta la sol 287

Teren suprafata 523 mp

Deschidere stradala 12 m

Curte Individuala Da

Disponibila incepand cu 2026-03-12

Judet Bucuresti

Oras/ Sector Sector 1

Zona Banu Manta

Gps lat 44.456552

Gps lng 26.080964

Geamuri termopan

Telefon

Acoperis tigla

Parchet

Apa

Gresie

Gaz

Faianta

Canalizare

Calorifere

Plansee beton

Parcare in curte

Incalzire centrala termica

Aer conditionat

Renovat recent

WC serviciu

Sistem de alarma

Spatiu de depozitare

Curent electric

Detector de incendiu

Supraveghere video

Pod

Valoare proprietate (€)

Perioada (ani)

Procent avans (180.000 €)


Suma creditata 1.020.000

Dobanda 4.9%

Rata lunara 25.218 lei

Broker Imobiliar

Madalina Lungu , Consultant imobiliar Vezi toate proprietatile

0317100200

Vila spatioasa Primaria sectorului 1

Pret vanzare
1.200.000 €

Telefon Consultant imobiliar
0317100200

Cod: REV2005628

Proprietati similare

Bucuresti, Ultracentral, Calea Victoriei

Casa, 10 camere

380 mp D + P + M 1890

1.200.000 EUR

Detalii

Bucuresti, Ultracentral, Cismigiu

Casa, 10 camere

343.15 mp D + P + M 1940

1.200.000 EUR

Detalii
Case 10 camere vandute in 1 Mai, Bucuresti Case 10 camere de vanzare in 1 Mai, Bucuresti

Afla primul de cele mai bune oferte
inainte sa ajunga pe piata

Aboneaza-te la newsletter

Aboneaza-te la notificari