Bucurestii Noi 5 camere 210 mp P + 1 314 mp

SVN Romania va prezinta la vanzare o vila cu o arhitectura spectaculoasa in zona Bucurestii Noi.

Casa a fost achizitionata in 2021 si renovata total in 2021.
Amenajarea casei ( mobilier + obiecte sanitare) 2021-2022.

P+1E compus din
Teren in suprafata de 314mp ( cu deschidere 12 mp x lungime de 27m)
si
Casa de locuit dispusa pe parter si etaj cu suprafata construita la sol de 102mp si o suprafata desfasurata de 210mp.
Inaltime camere: 290cm
Utilitati: curent trifazic, canalizare, gaz, gunoiul menajer se preia gratuit in sect1.

Teren - 314mp
Casa - 210 mp

Casa este construita din cadre beton cu caramida porotherm , grosime zid 45 cm cu tencuiala, fara compartimentari rigips. Este turnata placa de beton peste etajul 1, posibilitate extindere / mansardare.

Suprafata exterioara terase: 212mp.
Numar de camere : 5
Numar de bai: 3
Parter - bucatarie inchisa, living, baie, spatiu depozitare sub casa scarii inchis intr-o nisa.
Etaj - 3 dormitoare , 2 bai
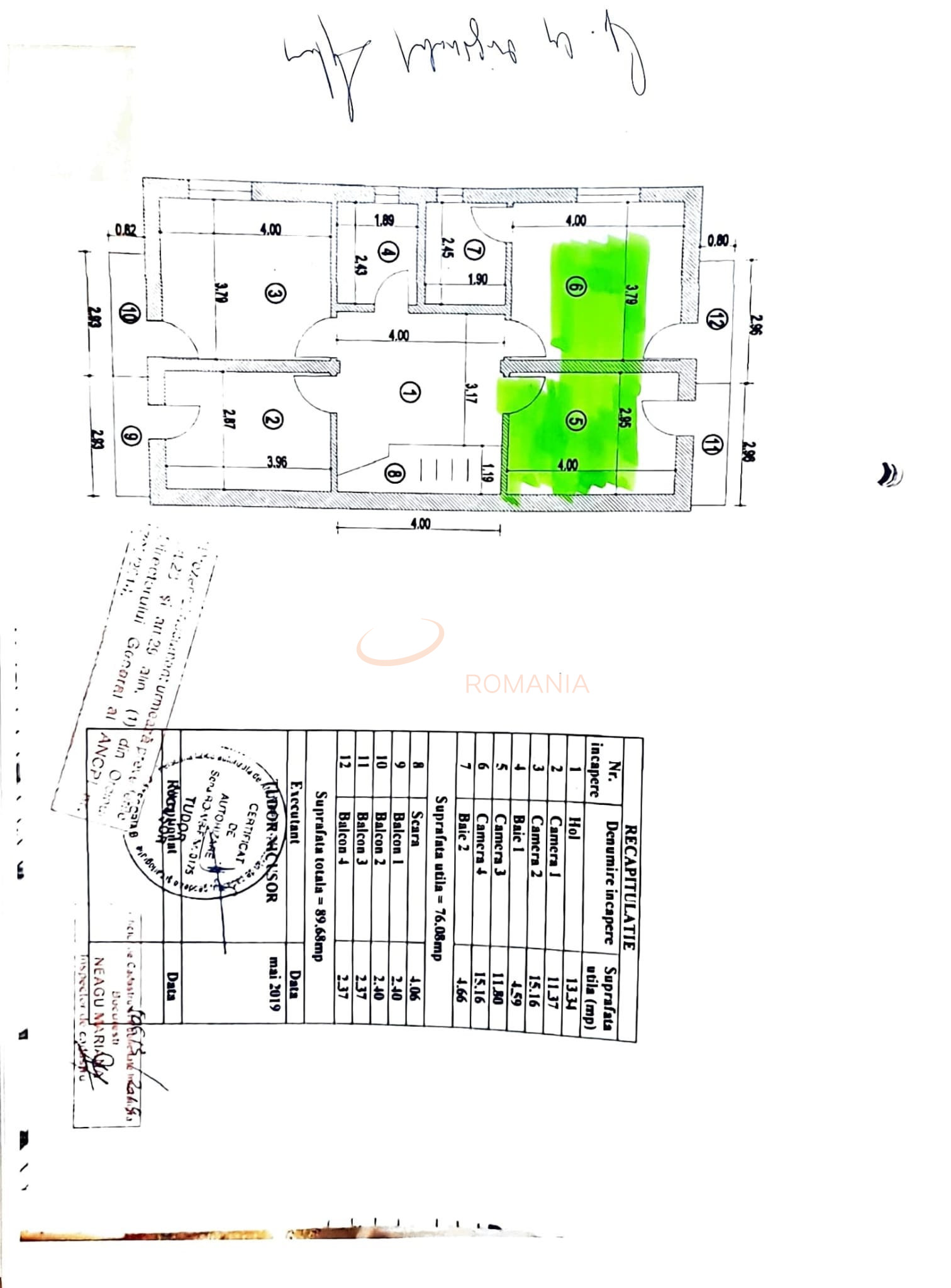
Parterul are o suprafata de 78 mp si este compus din :
- hol 9,85mp
- bucatarie 15,31mp
- baie dotata cu cabina de dus 3,26mp
- living 44mp
- scara 5,48mp.
Etajul 1 are o suprafata de 90mp si este compus din :
- hol 13,34mp
- camera matrimoniala 27mp cu baie proprie cu cada freestanding 4,6mp si iesire in 2 balcoane - fiecare balcon avand 2,4mp.
- dormitor in suprafata de 15mp, cu iesire in balcon in suprafata de 2,4mp
- dormitor in suprafata de 12mp, cu iesire in balcon in supratata de 2,4mp.
-baie dotata cu cabina de dus cu suprafata de 4,6mp
- scara 4,06m
Terasa dispune de magazie inchisa cu suprafata de 8mp, si 2 tarcuri caini ( se pot demonta la cerere) .
Poarta are inchidere centralizata si este realizata din profile de aluminiu vopsita electrostatic.
Casa este inchisa cu garduri de beton cu inaltimea de 2,5m ce ofera intimitate si siguranta.
Mobilata si utilat lux ( usi lemn masiv, mobilier Mobexpert, mobilier bucatarie si dressinguri realizat pe comanda din mdf vopsit, obiecte sanitare lux, cada freestanding, 3 aparate de aer conditionat Gree in living si dormitoare)
Vecinatati: Mall Colosseum, 7 min Gara de Nord, 5 minute Casa Presei, 10 minute Unirii, 5 min Parc Bazilescu.
Acte la zi.

Cestificatul energetic va fi disponibil la momentul vanzarii.

An constructie 2017

Suprafata construita 240 mp

Suprafata utila 210 mp

Regim Inaltime P + 1

Etaj P + 1

Nr. camere 5 camere

Nr. bai 3

Nr. balcoane 2 balcoane

Tip constructie Vila

Status constructie Finalizat

Amprenta la sol 110 mp

Teren suprafata 314 mp

Curte Individuala Da

Disponibila incepand cu 2024-02-23

Judet Bucuresti

Oras/ Sector Sector 1

Zona Bucurestii Noi

Gps lat 44.485413

Gps lng 26.018330

Nr. terase 1

Spatiu de joaca

Telefon

Parchet

Apa

Gresie

Gaz

Faianta

Canalizare

Calorifere

Parcare in curte

Incalzire centrala termica

Aer conditionat

Renovat recent

WC serviciu

Sistem de alarma

Detector de gaze

Spatiu de depozitare

Curent electric

Detector de incendiu

Gradina

Plansee beton

Casa Bucurestii Noi Mall Coloseum

Proprietate vanduta

Ai o proprietate similara? Vinde-o cu noi.
Vinde apartament

Cod: REV2002522

Proprietati similare

Bucuresti, Crangasi

Casa, 5 camere

276 mp P + 1 + M 2005

390.000 EUR

Detalii

Bucuresti, Baneasa

Casa, 5 camere

130 mp P + 1 2008

399.000 EUR

Detalii
Exclusiv Discount

Bucuresti, Pipera

Casa, 5 camere

163 mp P + 2 2022

420.000 EUR

Detalii

Bucuresti, Pipera

Casa, 5 camere

179.47 mp P + 2 2025

415.000 EUR

Detalii

Bucuresti, Pipera

Casa, 5 camere

260 mp P + 1 + M 2011

360.000 EUR

Detalii

Bucuresti, Pipera

Casa, 5 camere

131 mp P + 2 2019

419.000 EUR

Detalii

Bucuresti, Pipera

Casa, 5 camere

144 mp P + 2 2023

399.000 EUR

Detalii

Bucuresti, Pipera

Casa, 5 camere

144 mp P + 2 2023

399.000 EUR

Detalii
Case 5 camere vandute in Bucurestii Noi, Bucuresti Case 5 camere de vanzare in Bucurestii Noi, Bucuresti

Afla primul de cele mai bune oferte
inainte sa ajunga pe piata

Aboneaza-te la newsletter

Aboneaza-te la notificari