Bulevardul Laminorului 9 camere 366 mp P + 1 + M 530 mp

SVN Romania va propune spre vanzare o casa cu 8 camere, situata in zona Bucurestii Noi construita in anul 2006.

Vila poate fi folosita atat ca resedinta cat si pentru desfasurarea unor activitati economice.

Aproximativ 366 mp!

Casa1
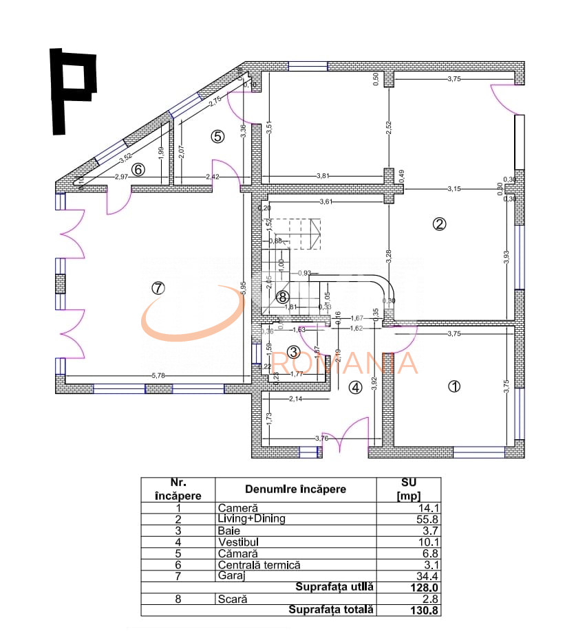
Parter: Living+Dormitor, dormitor, bucatarie, baie, hol, camera centralei, garaj, vestibul

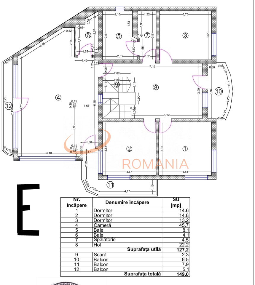
Etajul 1: 3x Dormitor, 2x Baie, Living, Spalatorie, Hol, Balcon

Mansarda - 2x Dormitor, 2x Baie, Hol


-MOBILAT COMPLET

LOCALIZARE:
Proprietatea se afla la 5 minute de mers pe jos fata de statia de metrou Laminorului precum si acces facil la statiile STB.

In proximitatea proprietatii regasim saloane, restaurante dar si supermarketuri.

Certificatul energetic va fi disponibil la vanzare.

Pentru mai multe informatii va stam la dispozitie!

An constructie 2006

Suprafata construita 422 mp

Suprafata utila 366 mp

Regim Inaltime P + 1 + M

Etaj P + 1 + M

Nr. camere 9 camere

Nr. bai 5

Nr. balcoane 3 balcoane

Tip constructie Vila

Status constructie Finalizat

Teren suprafata 530 mp

Curte Individuala Da

Disponibila incepand cu 2022-07-21

Judet Bucuresti

Oras/ Sector Sector 1

Zona Bulevardul Laminorului

Gps lat 44.492683

Gps lng 26.030958

Nr. terase 1

Anexa

Acoperis mansardat

Spatiu de joaca

Geamuri termopan

Parchet

Apa

Gresie

Gaz

Faianta

Canalizare

Garaj

Incalzire centrala termica

Aer conditionat

WC serviciu

Spatiu de depozitare

Termoizolatie

Internet Wireless

Curent electric

Detector de incendiu

Gradina

Vila 9 camere Laminorului

Proprietate vanduta

Ai o proprietate similara? Vinde-o cu noi.
Vinde apartament

Cod: REV2001377

Proprietati similare

Bucuresti, Tei, Parcul Circului

Casa, 9 camere

380 mp D + P + 2 2000

580.000 EUR

Detalii
Case 9 camere vandute in Bucurestii Noi, Bucuresti Case 9 camere de vanzare in Bucurestii Noi, Bucuresti

Afla primul de cele mai bune oferte
inainte sa ajunga pe piata

Aboneaza-te la newsletter

Aboneaza-te la notificari