Capitale 12 camere 575 mp P + 1 + M 600 mp

SVN Romania va propune spre vanzare aceasta vila eleganta construita in 1922, renovata complet in 2021, situata in apropierea Pietei Dorobanti. Cladire de patrimoniu cu arhitectura impresionanta, dispusa pe D+P+1E+M, avand o suprafata utila de 575 mp si un teren de 600 mp.

Detalii cheie:

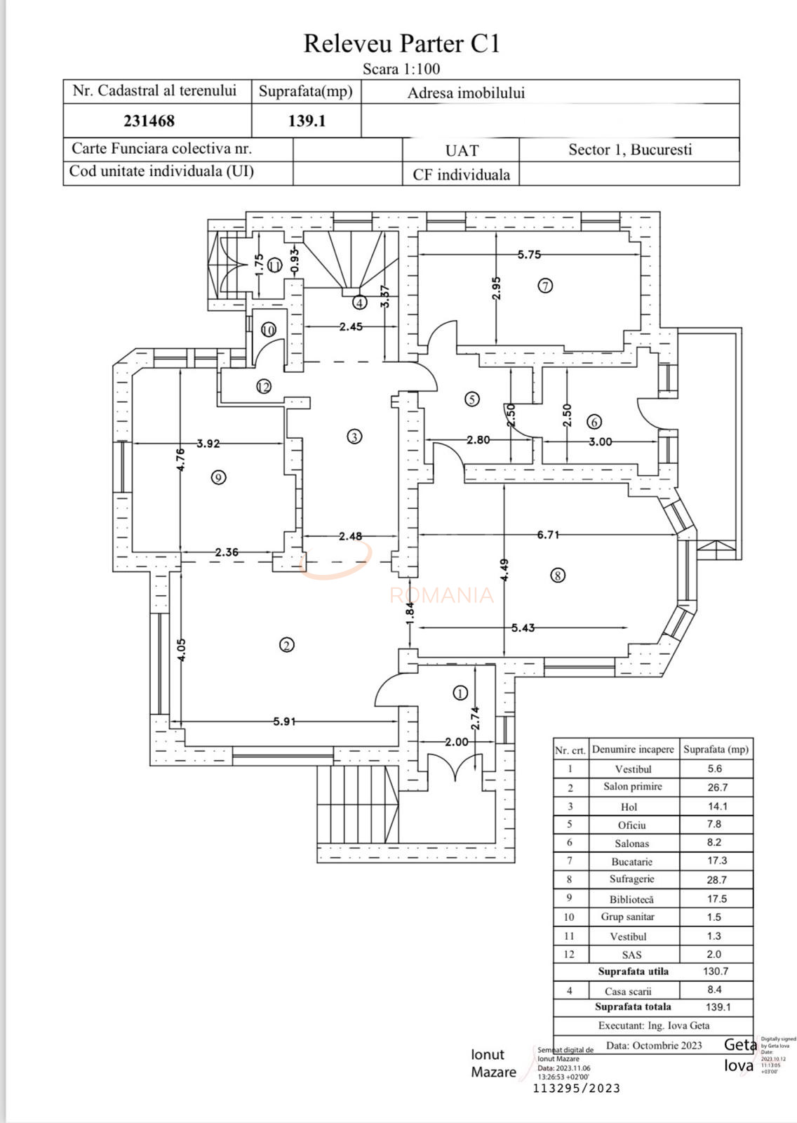
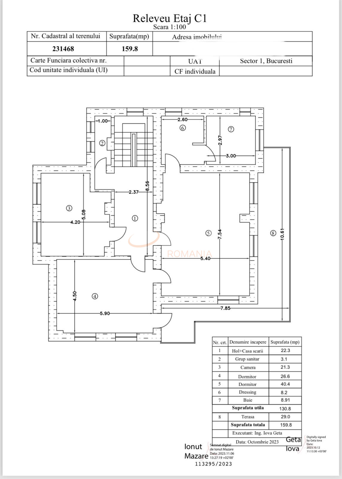
Compartimentare: 12 camere conform schitei, 1 baie si 5 grupuri sanitare.
Terasa: 29 mp.
Imbunatatiri: gresie, faianta, parchet din stejar, centrala termica automatizata, aer conditionat, retea structurata cat6, sistem Wireless Mesh, CATV, video interfon IP, supraveghere video, sistem alarma.
Utilitati: internet de mare viteza, bucatarie si grupuri sanitare complet mobilate si echipate.
Acces: 3 intrari separate, doua porti automate pentru acces auto.
Front stradal: 25 ml.

Parcare:

10 locuri de parcare (3 in 2 garaje, 4 in curte, 3 stradal fara a obstructiona portile).
Alte avantaje:

Posibilitatea de valorificare integrala sau impartire pe etaje, fiecare contorizat separat.

Aceasta proprietate exclusivista imbina eleganta istorica cu facilitatile moderne, fiind ideala pentru rezidenta, sediu de firma sau alte activitati premium.

Pentru detalii si vizionari, nu ezitati sa ma contactati.

An constructie 1922

Suprafata construita 680 mp

Suprafata utila 575 mp

Regim Inaltime P + 1 + M

Etaj P + 1 + M

Nr. camere 12 camere

Nr. bai 6

Nr. balcoane 0 balcoane

Tip constructie Vila

Status constructie Finalizat

Teren suprafata 600 mp

Deschidere stradala 25

Curte Individuala Da

Disponibila incepand cu 2025-09-01

Judet Bucuresti

Oras/ Sector Sector 1

Zona Capitale

Gps lat 44.459854

Gps lng 26.093091

Nr. terase 2

Geamuri termopan

Parchet

Apa

Gresie

Gaz

Faianta

Garaj

Calorifere

Parcare in curte

Incalzire centrala termica

Aer conditionat

Renovat recent

WC serviciu

Sistem de alarma

Spatiu de depozitare

Internet Wireless

Curent electric

Cablu TV

Supraveghere video

Pod

Valoare proprietate (€)

Perioada (ani)

Procent avans (675.000 €)


Suma creditata 3.825.000

Dobanda 4.9%

Rata lunara 94.565 lei

Broker Imobiliar

Raluca Dobrisan , Consultant imobiliar Vezi toate proprietatile

0317100200

Vila Exclusivista I Monument Istoric I Dorobanti

Pret vanzare
4.500.000 €

Telefon Consultant imobiliar
0317100200

Cod: REV2004517
Case 12 camere vandute in Dorobanti, Bucuresti Case 12 camere de vanzare in Dorobanti, Bucuresti

Afla primul de cele mai bune oferte
inainte sa ajunga pe piata

Aboneaza-te la newsletter

Aboneaza-te la notificari