Capitale 9 camere 280 mp S + P + 1 + M 197 mp

SVN Residentialist va propune spre vanzare o vila interbelica situata in zona Capitale – una dintre cele mai prestigioase si bine cotate zone din Bucuresti, recunoscuta pentru eleganta, arhitectura si stabilitatea investitiilor pe termen lung.

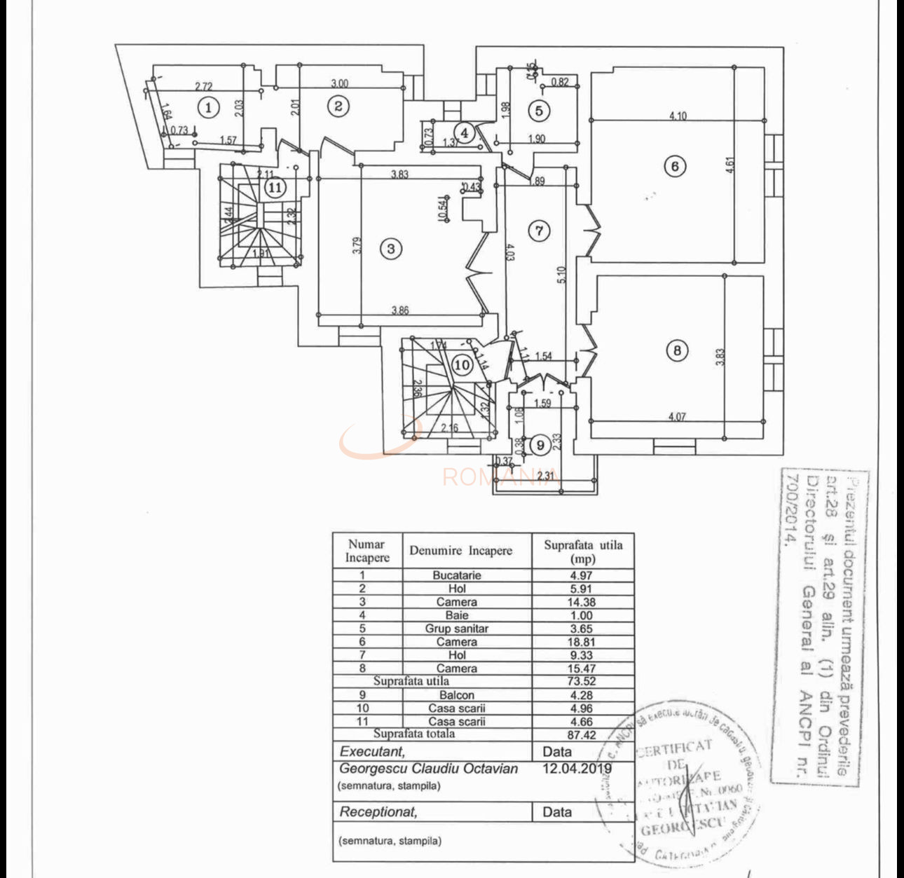
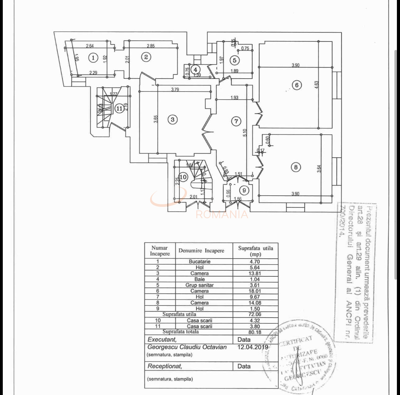
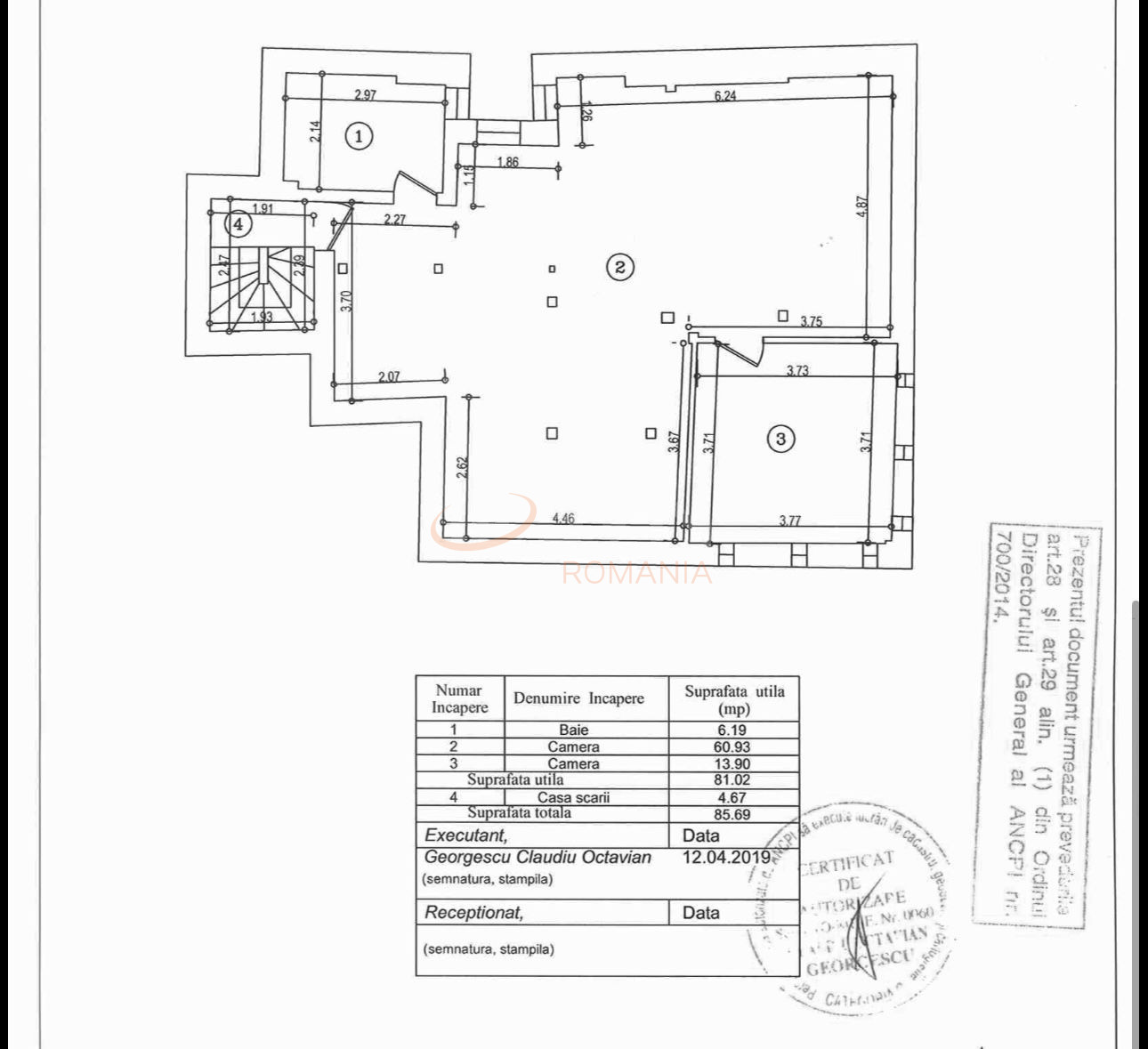
Proprietatea pastreaza farmecul specific perioadei interbelice si a fost consolidata, oferind un echilibru foarte bun intre caracterul autentic si siguranta structurala. Cu o suprafata utila de aproximativ 250 mp, vila dispune de spatii generoase, tavane inalte si o compartimentare versatila, ce permite multiple utilizari.

In prezent, imobilul este utilizat in regim de inchiriere, beneficiind de o ocupare stabila si de lunga durata, ceea ce il recomanda ca o investitie sigura, cu continuitate.

Pozitionarea in zona Capitale aduce un avantaj major, oferind acces rapid catre Piata Victoriei, Dorobanti, institutii importante, restaurante premium si zone de business, intr-un cadru select si linistit.

O proprietate cu personalitate, intr-o locatie unde astfel de oportunitati apar din ce in ce mai rar. Pentru detalii suplimentare si vizionari, va stam la dispozitie.

An constructie 1980

Suprafata construita 401 mp

Suprafata utila 280 mp

Regim Inaltime S + P + 1 + M

Etaj S + P + 1 + M

Nr. camere 9 camere

Nr. bai 5

Nr. balcoane 0 balcoane

Tip constructie Vila

Status constructie Finalizat

Teren suprafata 197 mp

Curte Individuala Da

Disponibila incepand cu 2026-04-15

Judet Bucuresti

Oras/ Sector Sector 1

Zona Capitale

Gps lat 44.454609

Gps lng 26.096888

Geamuri termopan

Telefon

Acoperis tigla

Parchet

Apa

Gresie

Gaz

Faianta

Consolidata

Aer conditionat

Curent electric

Cablu TV

Gradina

Pod

Valoare proprietate (€)

Perioada (ani)

Procent avans (187.500 €)


Suma creditata 1.062.500

Dobanda 4.9%

Rata lunara 26.268 lei

Broker Imobiliar

Anamaria Halasanu , Consultant imobiliar Vezi toate proprietatile

0317100200

Vila Dorobanti Capitale

Pret vanzare
1.250.000 €

Telefon Consultant imobiliar
0317100200

Cod: REV2005636

Proprietati similare

Bucuresti, Kiseleff, Arcul De Triumf

Casa, 9 camere

350 mp P + 1 + M 1945

1.200.000 EUR

Detalii

Bucuresti, Floreasca

Casa, 9 camere

348 mp P + 2 + M 2019

1.325.000 EUR

Detalii
Case 9 camere vandute in Dorobanti, Bucuresti Case 9 camere de vanzare in Dorobanti, Bucuresti

Afla primul de cele mai bune oferte
inainte sa ajunga pe piata

Aboneaza-te la newsletter

Aboneaza-te la notificari