Cismigiu 5 camere 98 mp P 243 mp

SVN Romania va propune spre achizitie o casa construita in 1939, localizata la 7 minute de Calea Victoriei si la 8 minute de Parcu Cismigiu.

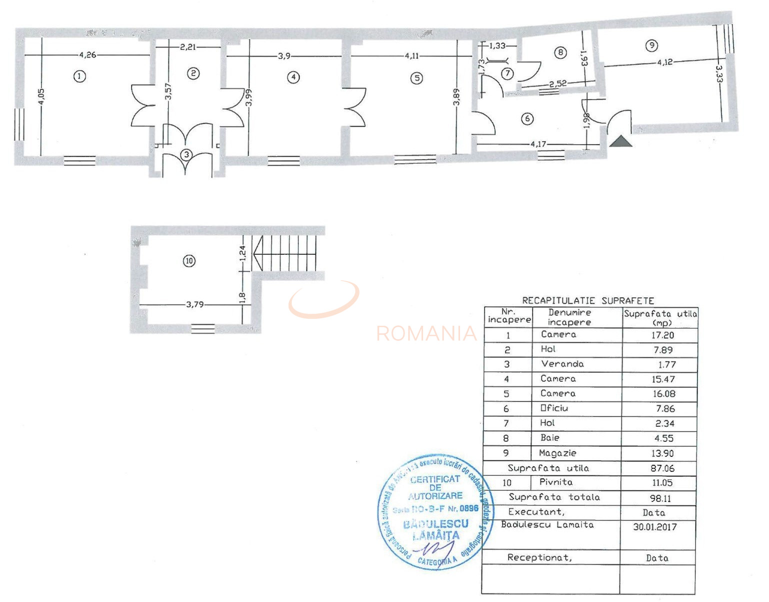
Casa a fost construita din caramida in anul 1939, aceasta a fost reconsolidata in 2017 si renovata integral in anul 2020. Are o suprafata utila de 98mp formata din 5 camere si pod. Aceasta este amplasata pe un teren cu o suprafata totala 243mp, amprenta la sol fiind de 111mp, curte libera 132mp cu o deschidere de 10mp.

Imobilul se afla intr-o zona linistita de case cu acces facil la mijloace de transport, dintre care:
- metrou Piata Romana 13 minute de mers pe jos;
- metrou Gara de nord 10 minute de mers pe jos.
- parcul Cismigiu 8 minute de mers pe jos.

Datorita pozitionarii foarte bune proprietatea se preteaza ca locuinta sau investitie !

Certificatul energetic va fi pus la dispozitie la momentul tranzactiei.

Pentru mai multe detalii sau stabilirea unei vizionari, sunati-ma chiar acum!

*Vizionarea acestui imobil se face doar pe baza semnarii unui acord de vizionare conform codului civil art 2.096-2.102.

An constructie 1939

Suprafata construita 125 mp

Suprafata utila 98 mp

Regim Inaltime P

Etaj P

Nr. camere 5 camere

Nr. bai 2

Nr. balcoane 0 balcoane

Tip constructie Vila

Status constructie Finalizat

Amprenta la sol 111 mp

Teren suprafata 243 mp

Deschidere stradala 10 m

Disponibila incepand cu 2024-10-22

Judet Bucuresti

Oras/ Sector Sector 1

Zona Cismigiu

Gps lat 44.443540

Gps lng 26.085280

Geamuri termopan

Telefon

Parchet

Apa

Acoperis tabla

Gresie

Gaz

Faianta

Canalizare

Calorifere

Plansee beton

Incalzire centrala termica

Consolidata

Aer conditionat

Renovat recent

WC serviciu

Sistem de alarma

Detector de gaze

Spatiu de depozitare

Termoizolatie

Internet Wireless

Internet prin cablu

Curent electric

Cablu TV

Detector de incendiu

Gradina

Pod

Beci

Casa 5 Camere Cismigiu Calea Victoriei Stirbei Voda

Proprietate vanduta

Ai o proprietate similara? Vinde-o cu noi.
Vinde apartament

Cod: REV2000991

Proprietati similare

Bucuresti, Sector 1, P-ta Universitatii

Casa, 5 camere

200 mp P + 2 + M 1932

320.000 EUR

Detalii

Bucuresti, Dacia, Armeneasca

Casa, 5 camere

130 mp S + P + M 1935

339.990 EUR

Detalii

Bucuresti, Pipera

Casa, 5 camere

140 mp P + 2 2005

320.000 EUR

Detalii

Bucuresti, Berceni

Casa, 5 camere

180 mp P + 1 2024

340.000 EUR

Detalii

Bucuresti, Sector 3, 23 August (catelul)

Casa, 5 camere

163 mp P + 1 + M 2010

296.000 EUR

Detalii

Bucuresti, Pipera

Casa, 5 camere

183.63 mp P + 2 2027

290.000 EUR

Detalii

Bucuresti, Pipera, Iancu Nicolae

Casa, 5 camere

183.63 mp P + 2 2027

290.000 EUR

Detalii

Bucuresti, Pipera, Iancu Nicolae

Casa, 5 camere

183.63 mp P + 2 2027

290.000 EUR

Detalii
Case 5 camere vandute in Ultracentral, Bucuresti Case 5 camere de vanzare in Ultracentral, Bucuresti

Afla primul de cele mai bune oferte
inainte sa ajunga pe piata

Aboneaza-te la newsletter

Aboneaza-te la notificari