Cismigiu 5 camere 172.36 mp S + P + 3 85 mp

Va invitam sa descoperiti aceasta vila cu 5 camere situata in zona Cismigiu.

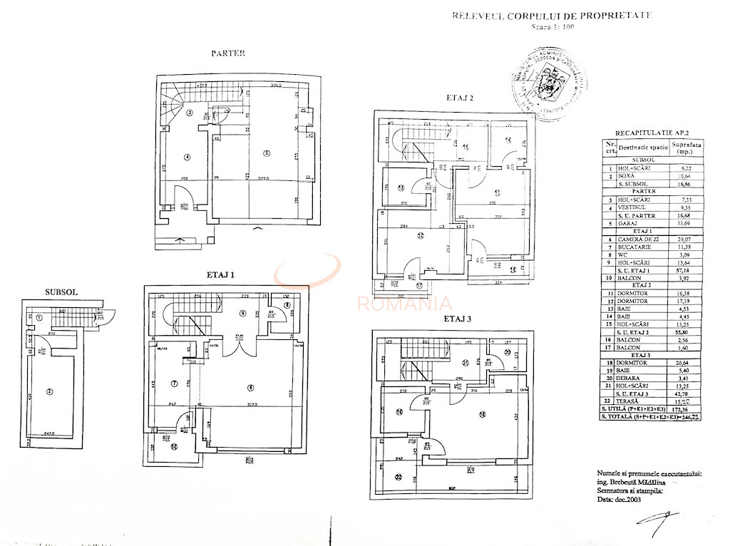
Suprafata utila totala de 172 mp este ingenios distribuita, oferindu-va spatiu generos pentru a va bucura de fiecare colt al acestei locuinte.

Cu 3 bai spatioase si o toaleta de serviciu, va asigurati ca toata familia beneficiaza de intimitate. Cele 3 balcoane si terasa adauga un plus de eleganta si va permite sa va relaxati in aer liber.

Pentru organizare si depozitare eficienta, vila dispune de boxa si debara, adapostindu-va lucrurile valoroase si necesitatile cotidiene.

Subsolul ofera un spatiu suplimentar care poate fi transformat dupa preferinte, oferind optiuni diverse pentru utilizare.

Garajul pentru 2 masini este practic si se completeaza perfect cu posibilitatea de parcare pentru vizitatori in curte.

Aceasta vila este legata la canalizarea centralizata si este echipata cu centrala proprie, asigurandu-va confort termic si functionalitate in fiecare sezon.

Vila este partial mobilata oferindu-va o baza perfecta pentru a va aduce propriul stil si personalitate in aceasta locuinta.

Cu o pozitionare stradala, vila este usor accesibila si se bucura de o curte comuna, creand un mediu prietenos si sigur pentru intreaga familie.

Certificatul energetic va fi disponibil la data semnarii contractului de vanzare-cumparare.

Contactati-ne pentru mai multe detalii si pentru a programa o vizionare a acestei proprietati atractive.

An constructie 2005

Suprafata construita 246.21 mp

Suprafata utila 172.36 mp

Regim Inaltime S + P + 3

Etaj S + P + 3

Nr. camere 5 camere

Nr. bai 4

Nr. balcoane 3 balcoane

Tip constructie Vila

Status constructie Finalizat

Amprenta la sol 55

Teren suprafata 85 mp

Disponibila incepand cu 2023-11-16

Judet Bucuresti

Oras/ Sector Sector 1

Zona Cismigiu

Gps lat 44.441025

Gps lng 26.085426

Nr. terase 1

Geamuri termopan

Telefon

Parchet

Apa

Gaz

Faianta

Canalizare

Garaj

Calorifere

Plansee beton

Aer conditionat

WC serviciu

Spatiu de depozitare

Termoizolatie

Internet Wireless

Internet prin cablu

Curent electric

Cablu TV

Vila in zona CISMIGIU

Proprietate vanduta

Ai o proprietate similara? Vinde-o cu noi.
Vinde apartament

Cod: REV2003237

Proprietati similare

Bucuresti, 1 Mai, Banu Manta

Casa, 5 camere

125 mp D + P + 1 + M 2015

440.000 EUR

Detalii

Bucuresti, Crangasi

Casa, 5 camere

276 mp P + 1 + M 2005

389.000 EUR

Detalii
Exclusiv Discount

Bucuresti, Berceni, Brancoveanu

Casa, 5 camere

200 mp P + 1 2005

400.000 EUR

Detalii

Bucuresti, Pipera

Casa, 5 camere

179.47 mp P + 2 2025

415.000 EUR

Detalii

Bucuresti, Pipera

Casa, 5 camere

175 mp P + 2 2010

449.900 EUR

Detalii

Bucuresti, Titan, 1 Decembrie 1918

Casa, 5 camere

136 mp D + P + 1 + M 2007

450.000 EUR

Detalii

Bucuresti, Pipera

Casa, 5 camere

144 mp P + 2 2023

449.000 EUR

Detalii

Bucuresti, Pipera

Casa, 5 camere

144 mp P + 2 2023

399.000 EUR

Detalii
Case 5 camere vandute in Ultracentral, Bucuresti Case 5 camere de vanzare in Ultracentral, Bucuresti

Afla primul de cele mai bune oferte
inainte sa ajunga pe piata

Aboneaza-te la newsletter

Aboneaza-te la notificari