Casa, 8 camere, Bucuresti / 1 Mai / Domenii
Vila are regim de inaltime S+P+1+M, si este compartimentata astfel:
Subsol- 3 camere de depozitare prevazute cu sistem de ventilatie cu o sprafata totala de 35 mp.
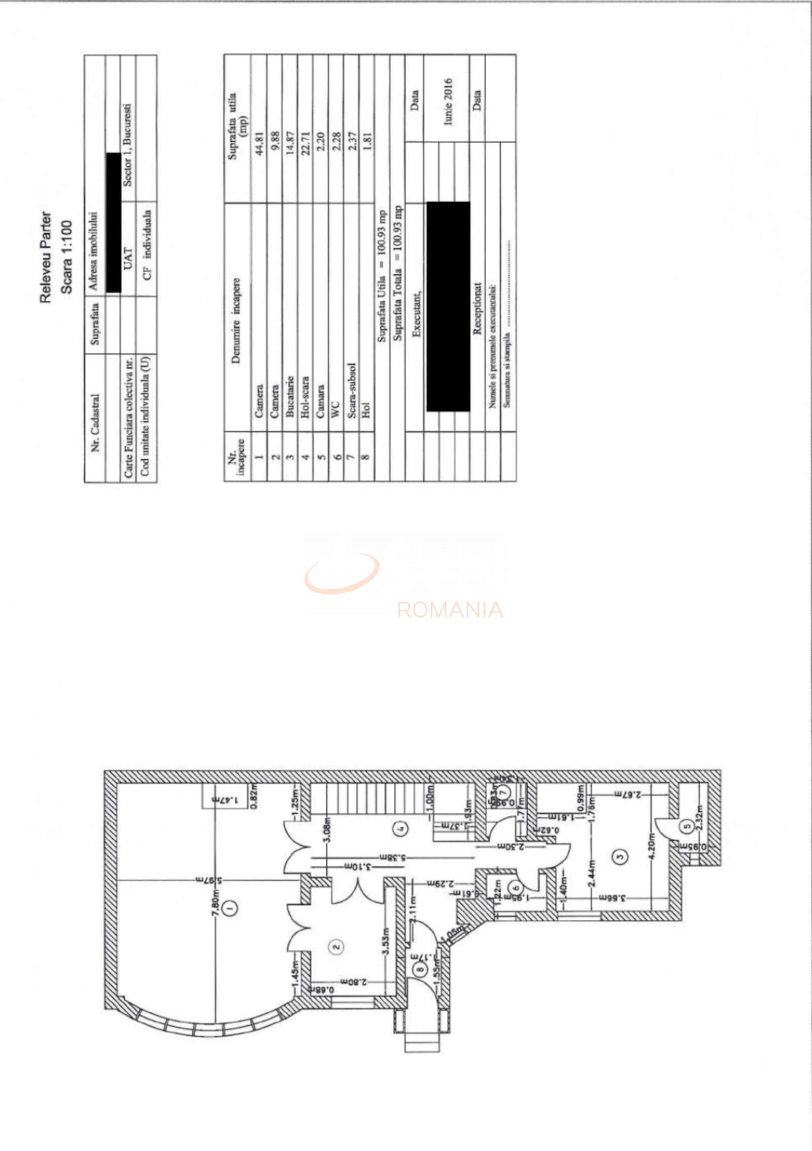
Parter- living generos de 45 mp cu zona de dining de 10 mp, baie de, bucatarie si debara, toate insumand o suprafata de 101 mp.
Etaj- 3 dormitoare 2 bai si 2 debarale, insumand o suprafata totala de 103 mp.
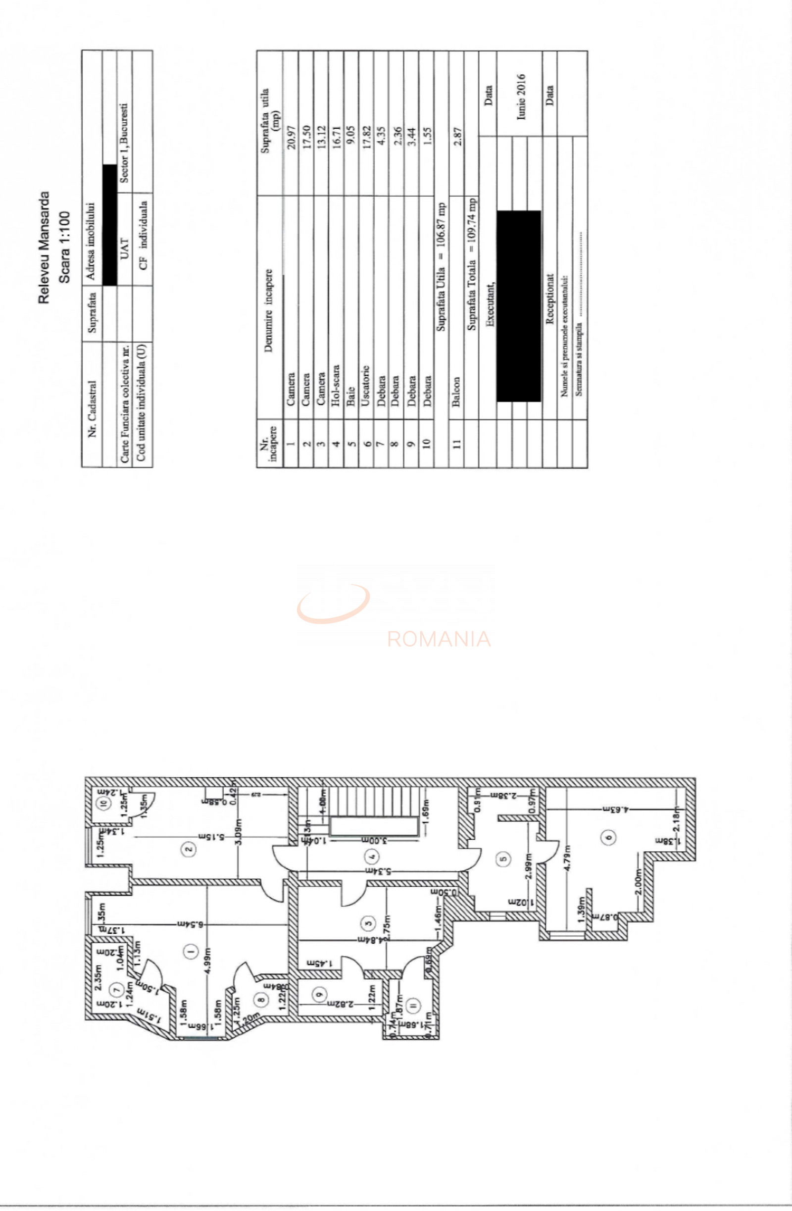
Mansarda- 3 camere, 4 debarale, baie si o uscatorie de 18 mp ce poate fi utilizata si ca birou sau dressin, toate avand o suprafata de 107 mp.
Suprafata utila totala a casei este de aproximativ 350 mp.
Casa a fost renovata integral de catre proprietar in 2021 cu atentie deosebita la detalii, cu finisaje de calitate. Se vinde complet mobilata si utilata, asa cum este prezentata in fotografii.
Amplasamentul este de exceptie, in zona Domenii,pe o straduta linistita de case dar cu acces rapid la mijloace de transport in comun, scoli etc.
Certificatul energetic va fi disponibil la vanzare.
Pentru mai multe detalii si vizionari va stau la dispozitie.
Atribute
An constructie 1992
Suprafata construita 400 mp
Suprafata utila 345 mp
Regim Inaltime S + 1 + M
Etaj S + 1 + M
Nr. camere 8 camere
Nr. bai 4
Nr. balcoane 2 balcoane
Tip constructie Vila
Status constructie Finalizat
Amprenta la sol 107 mp
Teren suprafata 225 mp
Curte Individuala Da
Disponibila incepand cu 2023-01-23
Judet Bucuresti
Oras/ Sector Sector 1
Zona Domenii
Gps lat 44.462946
Gps lng 26.069521
Facilitati
Spatiu de joaca
Geamuri termopan
Parchet
Apa
Gresie
Gaz
Faianta
Canalizare
Calorifere
Plansee beton
Incalzire centrala termica
Aer conditionat
Renovat recent
WC serviciu
Detector de gaze
Spatiu de depozitare
Termoizolatie
Curent electric
Detector de incendiu
Gradina
Vila superba 8 camere si curte Domenii
Proprietate vanduta
Ai o proprietate similara? Vinde-o cu noi.
  Vinde apartament  
 
  
  
  
  
  
  
  
  
  
  
  
  
  
  
  
  
  
  
  
  
  
   
   
   
   
   
  
  
   
   
   
   
   
  
  
   
   
   
   
  