Casa, 16 camere, Bucuresti / Dorobanti
Structurata pe 5 nivele , cu o suprafata medie pe nivel de 140 mp utili este o oportunitate pentru un sediu de firma sau showroom.
Proprietatea este disponibila incepand cu 01.02.2024
Chiria solicitata la inchiriere 8500 eur/ luna.
Atribute
An constructie 1938
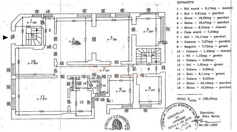
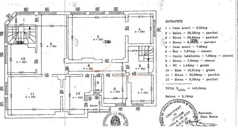
Suprafata construita 877 mp
Suprafata utila 646 mp
Regim Inaltime S + P + 2 + M
Etaj S + P + 2 + M
Nr. camere 16 camere
Nr. bai 8
Nr. balcoane 0 balcoane
Tip constructie Vila
Status constructie Finalizat
Amprenta la sol 175
Teren suprafata 400 mp
Deschidere stradala 16 m
Curte Individuala Da
Disponibila incepand cu 2024-02-23
Judet Bucuresti
Oras/ Sector Sector 1
Zona Dorobanti
Gps lat 44.464202
Gps lng 26.090426
Facilitati
Geamuri termopan
Telefon
Acoperis tigla
Parchet
Apa
Gresie
Gaz
Faianta
Canalizare
Plansee beton
Parcare in curte
Incalzire centrala termica
Aer conditionat
Renovat recent
WC serviciu
Termoizolatie
Internet Wireless
Curent electric
Cablu TV
Vila Primaverii
Proprietate vanduta
Ai o proprietate similara? Vinde-o cu noi.
  Vinde apartament  
 
  
  
  
  
  
  
  
  
  
  
  
  
  
  
  
  
  
  
  
  
  
  
  
 