Gara De Nord 3 camere 62 mp P 141 mp

SVN Residentalist va propune spre vanzare o casa pe parter cu teren de 141 mp situata in centrul Bucurestiului la numai cateva minute de centru si Gara de Nord, in zona delimitata Buzesti- Dinicu Golescu- Piata Victoriei.

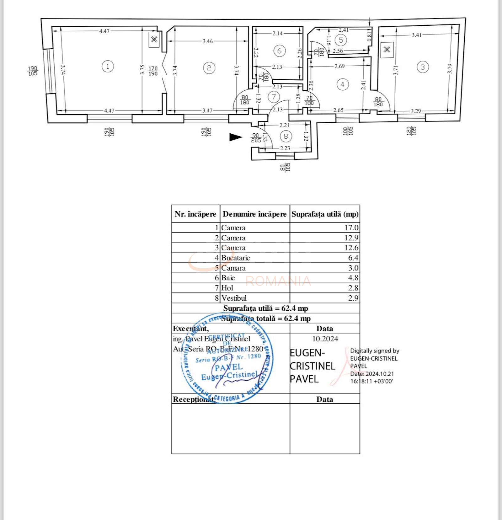
Casa are o suprafata utila de 63 mp, 3 camere cu bucatarie si baie si o curte.

Intreaga casa se afla la calcan cu proprietatea vecina , care a fost de curand renovata si suprainaltata cu inca un etaj . Asadar , suprafata pe care o puteti obtine dupa suprainaltare va ajunge la minim 130 mp plus pod.

In imediata apropiere avem mijloace de transport in comun, scoli si gradinite magazine.

Pentru mai multe detalii si vizionari va rog sa ma contactati.

An constructie 1940

Suprafata construita 81 mp

Suprafata utila 62 mp

Regim Inaltime P

Etaj P

Nr. camere 3 camere

Nr. bai 1

Nr. balcoane 0 balcoane

Tip constructie Vila

Status constructie Finalizat

Amprenta la sol 62

Teren suprafata 141 mp

Curte Individuala Da

Disponibila incepand cu 2024-11-29

Judet Bucuresti

Oras/ Sector Sector 1

Zona Gara De Nord

Gps lat 44.442152

Gps lng 26.079683

Spatiu de joaca

Apa

Gaz

Canalizare

Fara amenajari

Curent electric

Gradina

Casa cu teren 141 mp Buzesti

Proprietate vanduta

Ai o proprietate similara? Vinde-o cu noi.
Vinde apartament

Cod: REV2004465

Proprietati similare

Bucuresti, Crangasi

Casa, 3 camere

99 mp P 1930

154.900 EUR

Detalii

Bucuresti, Bucurestii Noi, Chitila

Casa, 3 camere

85 mp P 1982

157.000 EUR

Detalii

Bucuresti, Bucurestii Noi

Casa, 3 camere

70 mp P 1930

150.000 EUR

Detalii
Case 3 camere vandute in Gara De Nord, Bucuresti Case 3 camere de vanzare in Gara De Nord, Bucuresti

Afla primul de cele mai bune oferte
inainte sa ajunga pe piata

Aboneaza-te la newsletter

Aboneaza-te la notificari