Kiseleff 16 camere 535 mp D + P + 1 + M 380 mp

SVN Romania va propune spre achizitie o vila construita in perioada interbelica in stilul brancovenesc.Aceasta remarcabila vila , emana eleganta si rafinament. Fatada impresionanta a imobilului se distinge prin expresivitatea volumelor arhitectonice ale teraselor si logiilor, care captiveaza privirea la prima vedere. Decorul bogat al coloanelor si balustradelor, impodobite cu motive florale sculptate din piatra, aduce un farmec aparte, reflectand influentele baroce.

In anul 2013, vila a fost restaurata si consolidata cu grija, pastrandu-se fiecare detaliu istoric si integrandu-se armonios cu elementele moderne. Proprietatea ofera contorizare separata pentru fiecare etaj, deschizand posibilitatea transformarii intr-o resedinta unifamiliala impozanta. In prezent, vila este compartimentata in patru spatii individuale, fiind ideala atat pentru locuinta cat si pentru sediu de firma.

Aceasta proprietate este un veritabil simbol al trecutului, impletind traditia cu contemporaneitatea si oferind un cadru de viata deosebit pentru cei care apreciaza frumusetea si istoria arhitecturala.
In acest moment proprietatea este inchiriata integral.

An constructie 1940

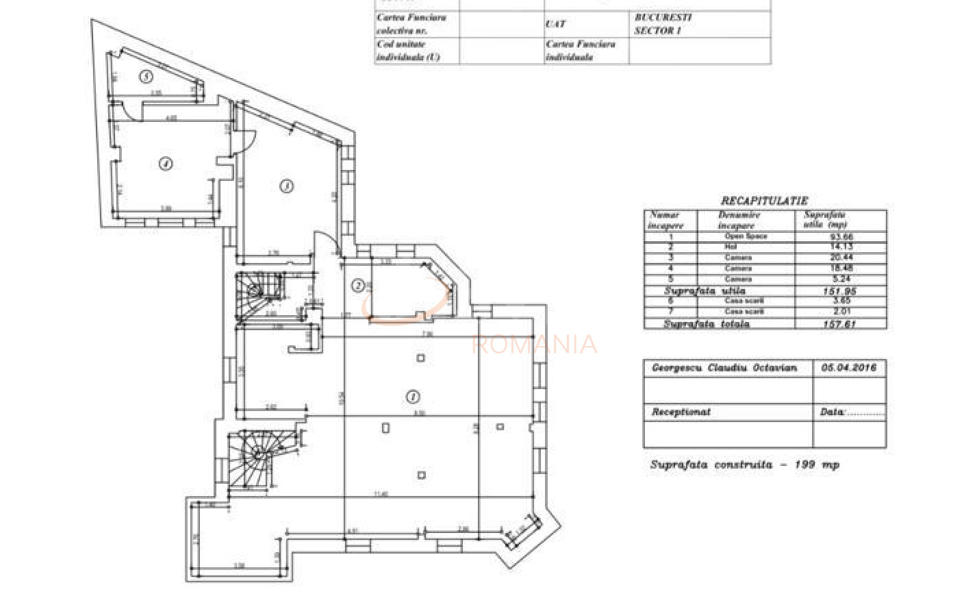
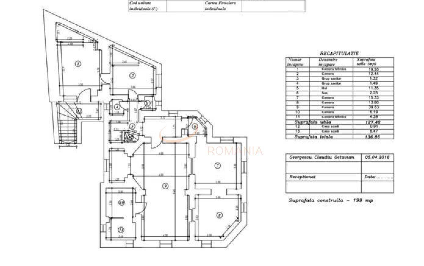
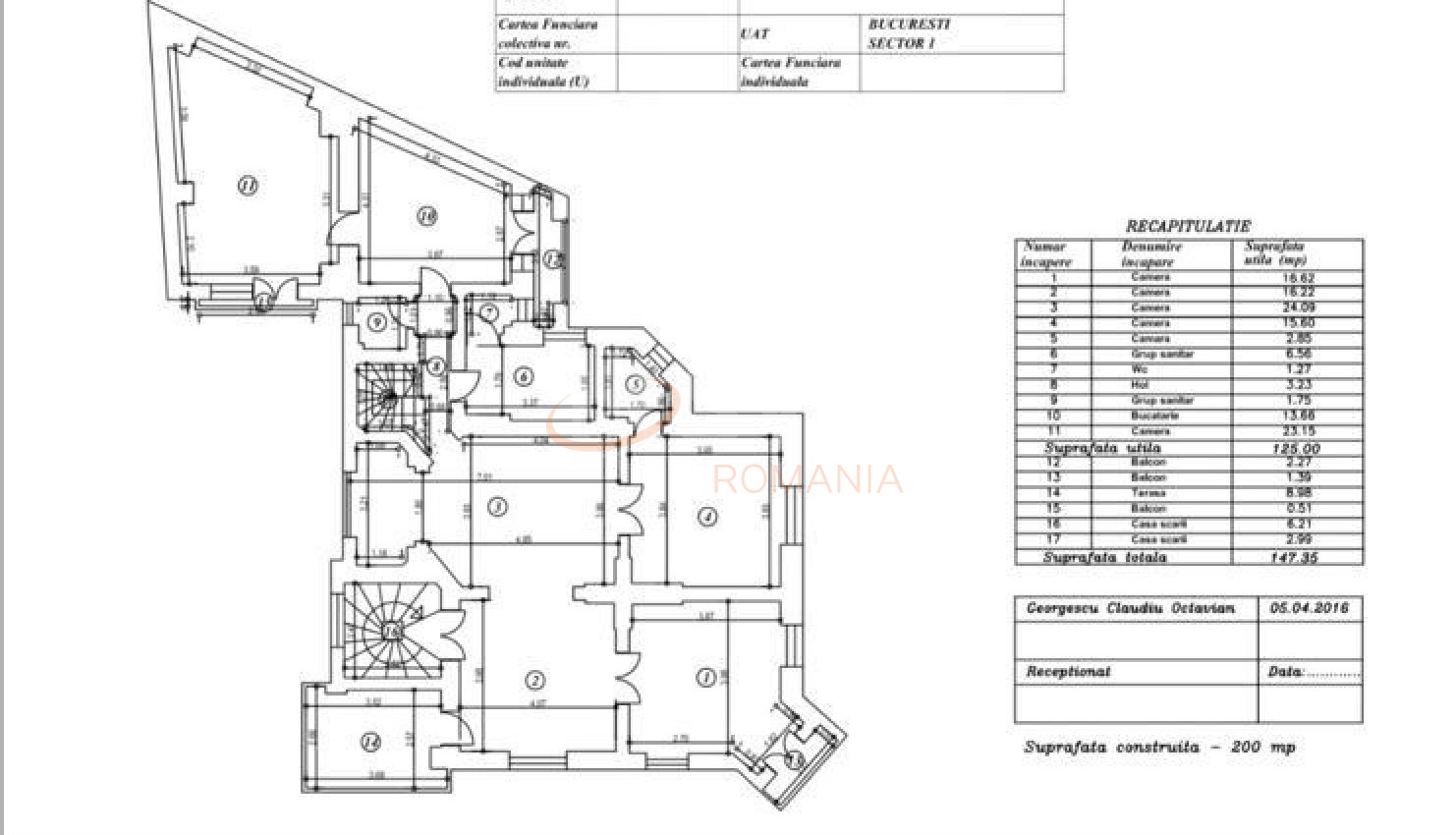
Suprafata construita 583 mp

Suprafata utila 535 mp

Regim Inaltime D + P + 1 + M

Etaj D + P + 1 + M

Nr. camere 16 camere

Nr. bai 8

Nr. balcoane 4 balcoane

Tip constructie Vila

Status constructie Finalizat

Amprenta la sol 142

Teren suprafata 380 mp

Deschidere stradala 10 m

Curte Individuala Da

Disponibila incepand cu 2025-03-05

Judet Bucuresti

Oras/ Sector Sector 1

Zona Kiseleff

Gps lat 44.460337

Gps lng 26.078789

Nr. terase 2

Acoperis tigla

Parchet

Apa

Gresie

Gaz

Faianta

Canalizare

Plansee beton

Parcare in curte

Incalzire centrala termica

Renovat recent

WC serviciu

Curent electric

Calorifere

Aer conditionat

Internet Wireless

Vila superba Kiseleff

Proprietate vanduta

Ai o proprietate similara? Vinde-o cu noi.
Vinde apartament

Cod: REV0005803

Proprietati similare

Bucuresti, Ultracentral, Piata Romana

Casa, 16 camere

840 mp D + P + 1 + M 1935

3.000.000 EUR

Detalii
Case 16 camere vandute in Kiseleff, Bucuresti Case 16 camere de vanzare in Kiseleff, Bucuresti

Afla primul de cele mai bune oferte
inainte sa ajunga pe piata

Aboneaza-te la newsletter

Aboneaza-te la notificari