Piata Romana 10 camere 390 mp D + P + 1 + M 243 mp

SVN Romania va propune spre vanzare o vila interbelica in zona Dorobanti. Proprietatea construita in 1939 a fost integral consolidata si este inca in proces de renovare .Cei 390 mp utili sunt dispusi pe demisol, hoch-parter, etaj si mansarda:
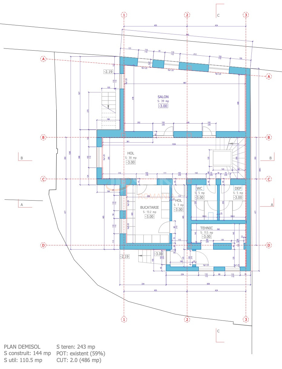
- demisolul inalt beneficiaza de o camera generoasa de 39 mp cu bolta superba din caramida, hol de 30 mp, bucatarie inchisa, grup sanitar si camera tehnica. Accesul se face separat prin laterala imobilului.
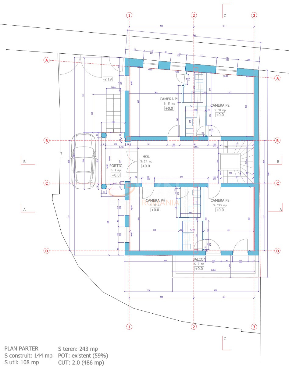
- parterul beneficiaza de 4 camere, 2 bai, hol. Scara in forma de melc, imbracata in lemn, duce catre etaj (cu compartimentare similara cu cea de la parter), si catre mansarda
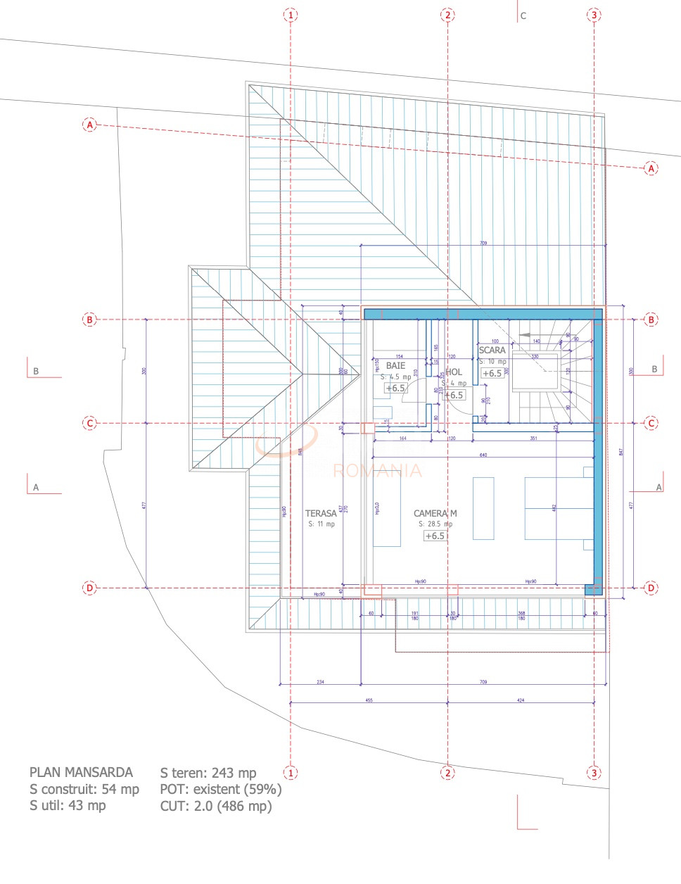
- mansarda are o suprafata utila de 43 mp si terasa cu vedere superba catre zona rezidentiala.
Imobilul este pretabil pentru birou de avocatura / arhitectura, cabinet notarial, clinica etc.
Finisajele sunt de cea mai inalta calitate.
Un loc parcare este disponibil in curte si exista posibilitate de parcare in fata imobilului pentru inca doua masini.
Zona este una exceptionala, la 200 m de Calea Victoriei si de Bd. Lascar Catargiu, la cativa pasi de Bd. Dacia si la 5 minute de mers pe jos de metroul Piata Romana.

An constructie 1939

Suprafata construita 486 mp

Suprafata utila 390 mp

Regim Inaltime D + P + 1 + M

Etaj D + P + 1 + M

Nr. camere 10 camere

Nr. bai 6

Nr. balcoane 3 balcoane

Tip constructie Vila

Status constructie Finalizat

Amprenta la sol 144

Teren suprafata 243 mp

Deschidere stradala 20

Curte Individuala Da

Disponibila incepand cu 2023-09-26

Judet Bucuresti

Oras/ Sector Sector 1

Zona Piata Romana

Gps lat 44.450867

Gps lng 26.092617

Acoperis mansardat

Geamuri termopan

Parchet

Apa

Acoperis tabla

Gresie

Gaz

Faianta

Canalizare

Plansee beton

Parcare in curte

Incalzire centrala termica

Consolidata

Vila Victoriei Lascar Catargiu

Proprietate vanduta

Ai o proprietate similara? Vinde-o cu noi.
Vinde apartament

Cod: REV2001270
Case 10 camere vandute in Ultracentral, Bucuresti Case 10 camere de vanzare in Ultracentral, Bucuresti

Afla primul de cele mai bune oferte
inainte sa ajunga pe piata

Aboneaza-te la newsletter

Aboneaza-te la notificari