Sisesti 5 camere 220 mp P + 2 500 mp

SVN Romania va propune spre vanzare o vila situata in zona Sisesti, intr-un complex rezidential cu circuit inchis, cu deschidere la lacul Grivita.

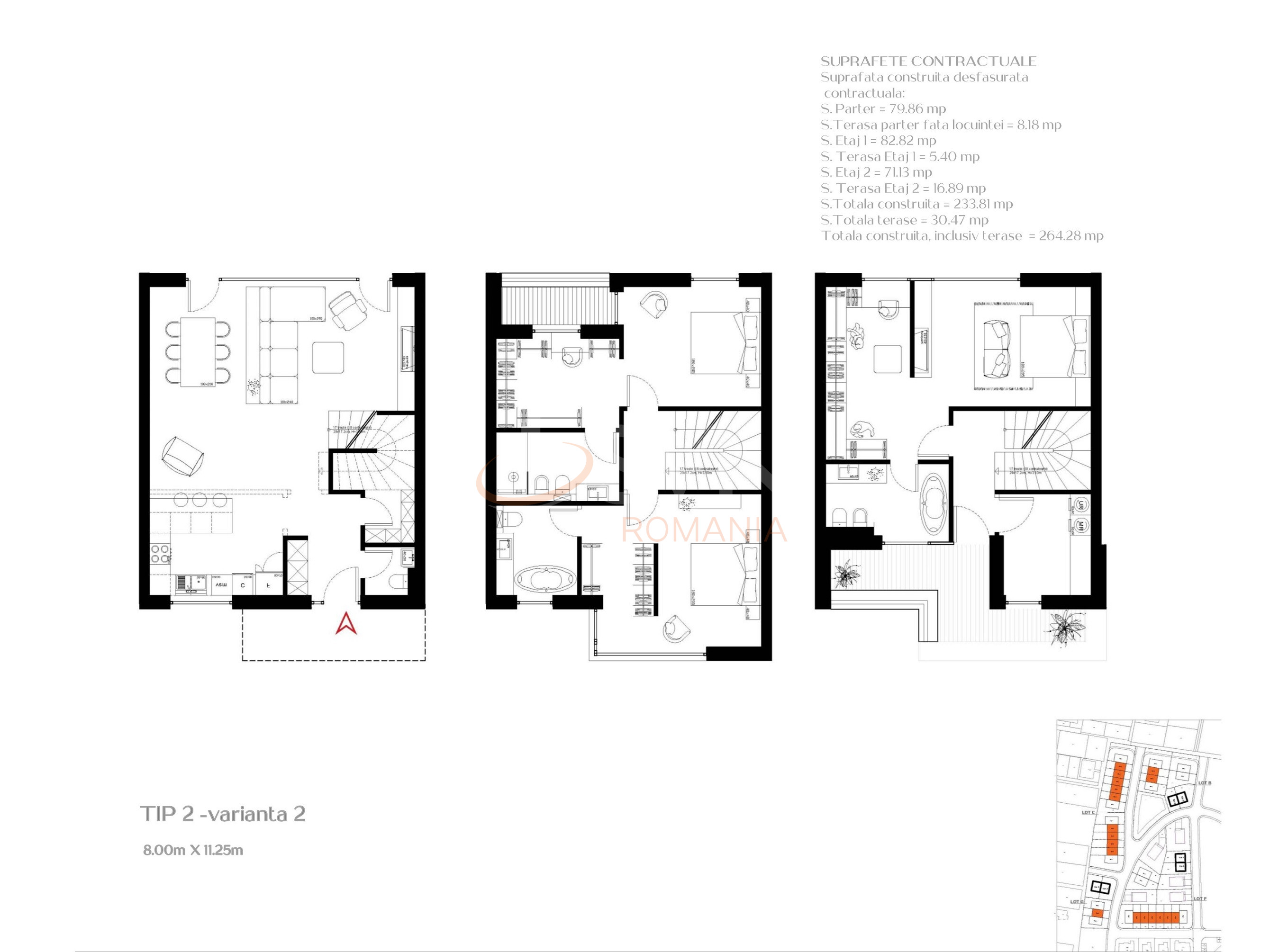
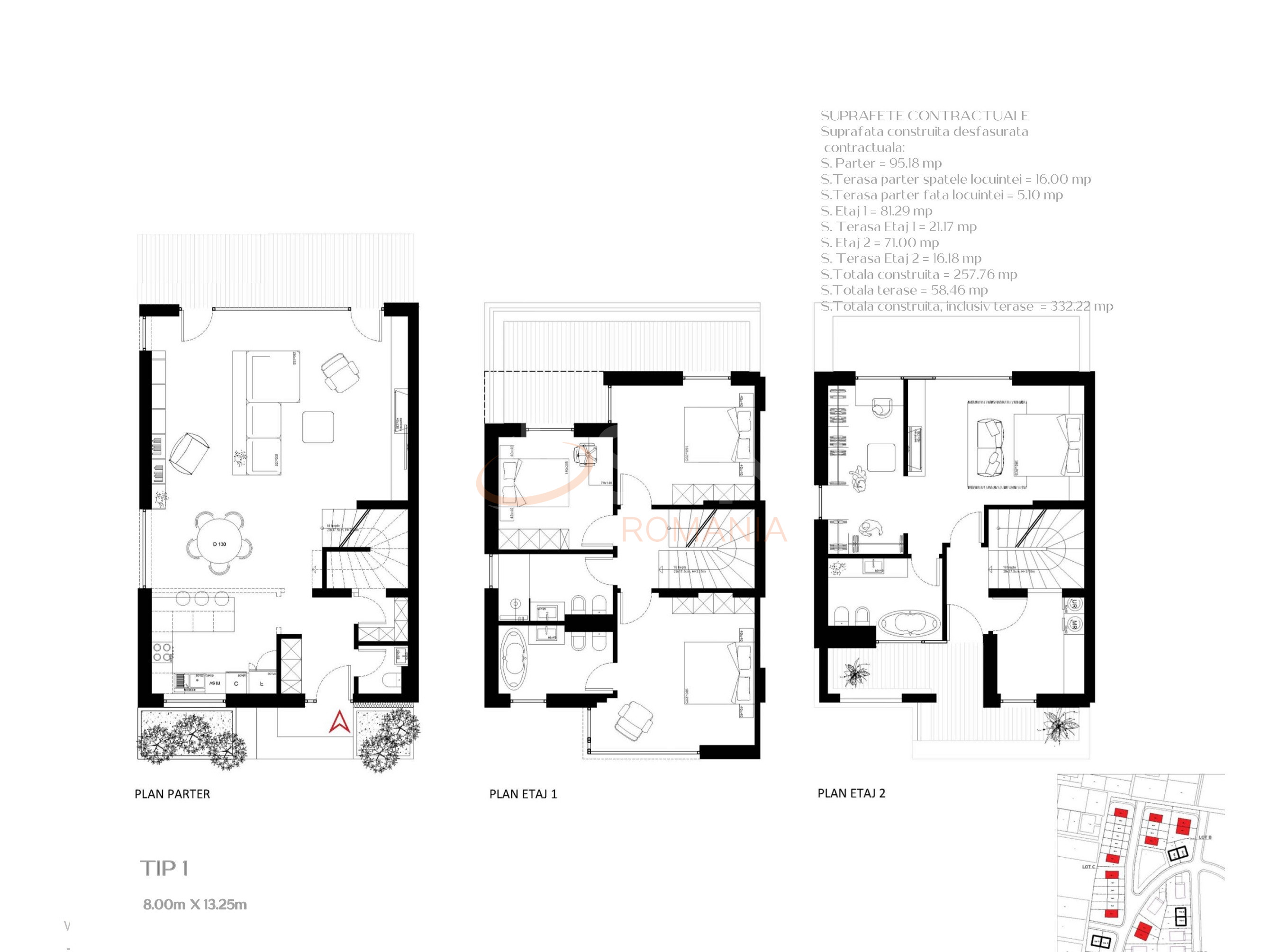
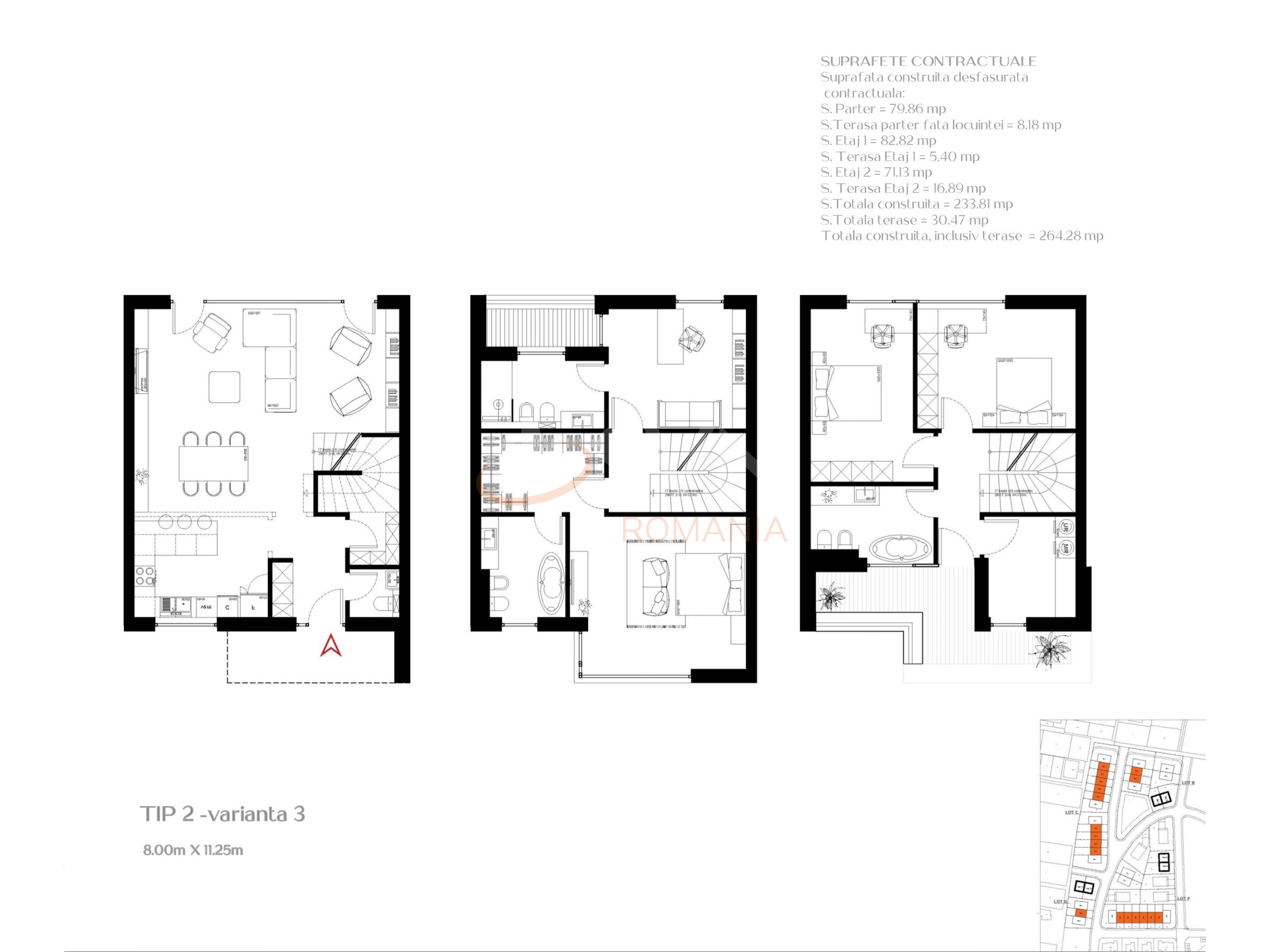
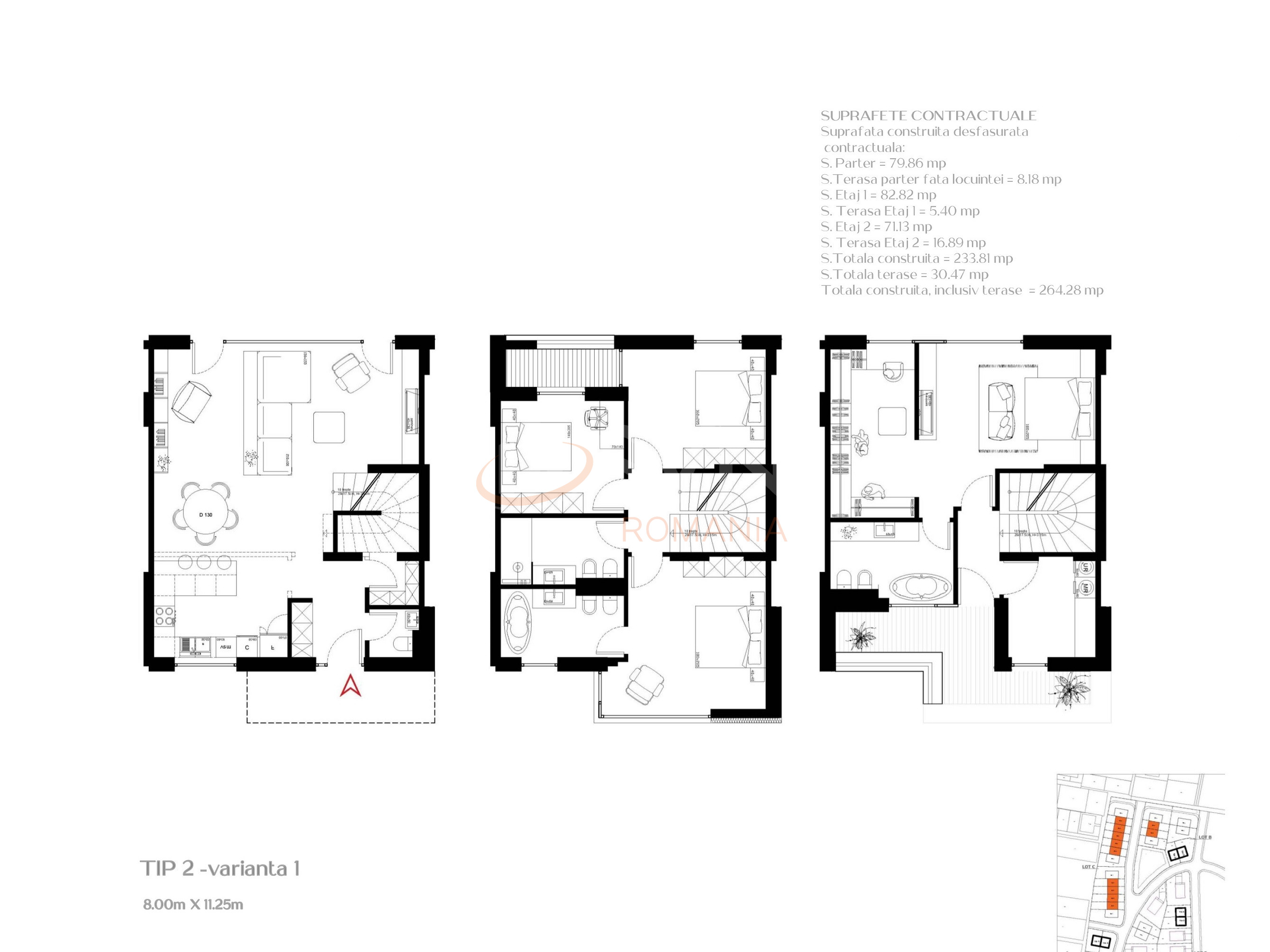
Vila TIP 1 este compusa din P+E1+E2 si are in compunnenta 5 camere dispuse astfel:
Parter: living, bucatarie, baie, dressing, hol, terasa
Etaj 1: dormitor cu baie, 2 dormitoare, baie, terasa, hol
Etaj 2: dormitor master cu dressing si baie, spatiu tehnic, terasa.

Complexul este in faza de extecutie, primele vile urmand sa fie predate la sfarstul anului 2025. Predarea se va face la stadiul de alb, adica executat integral pe exterior, cu instalatiile de incalzire in pardoseala si racire prin ventiloconvectoare instalate, cu pereti interior vopsiti alb, dar fara gresie, faianta, grupuri sanitare, usi interior sau parchet.

Casele ,,smart sunt proiectate pentru a indeplini noile cerinte ale pietei si provocarilor legate de asigurarea confortului, cu un cost echilibrat. Astfel, noile locuinte vor beneficia de pompe de caldura moderne ce vor functiona cu energie electrica si care vor asigura atat incalzirea cat si racirea casei. Pentru a asigura un consum de utilitati cat mai redus, casele vor fi izolate termic la cele mai inalte standarde si vor beneficia de pregatiri de sisteme care sa permita utilizarea inteligenta a resurselor, programarea si controlul de la distanta. Dotarea standard vine cu panouri solare precum si pregatirea pentru instalarea de panouri fotovoltaice, care pot reduce semnificativ impactul financiar al consumului de energie electrica.

Complexul este format din vile si blocuri cu regim mic de inaltime si este dotat cu spatii de joaca pentru copii, alei pietonale largi, gradinita, paza 24/24, supraveghere video. Toate casele vor beneficia de curti generoase, cu suprafete de teren care pot varia intre 210 si 760 de metri patrati, fiecare vila beneficiind de minim doua locuri de parcare.

Pentru mai multe informatii nu ezitati sa ne contactati.

An constructie 2025

Suprafata construita 245 mp

Suprafata utila 220 mp

Regim Inaltime P + 2

Etaj P + 2

Nr. camere 5 camere

Nr. bai 4

Nr. balcoane 2 balcoane

Tip constructie Vila

Status constructie Nefinalizat

Amprenta la sol 94

Teren suprafata 500 mp

Curte Individuala Da

Disponibila incepand cu 2025-05-09

Judet Bucuresti

Oras/ Sector Sector 1

Zona Sisesti

Gps lat 44.500218

Gps lng 26.058943

Nr. terase 2

Spatiu de joaca

Geamuri termopan

Apa

Gaz

Canalizare

Plansee beton

Parcare in curte

Incalzire centrala termica

WC serviciu

Detector de gaze

Spatiu de depozitare

Termoizolatie

Internet prin fibra optica

Curent electric

Detector de incendiu

Supraveghere video

Gradina

Valoare proprietate (€)

Perioada (ani)

Procent avans (102.000 €)


Suma creditata 578.000

Dobanda 4.9%

Rata lunara 14.290 lei

Broker Imobiliar

Andrei Haiduc , Consultant imobiliar Vezi toate proprietatile

0317100200

Sisesti - vila SMART in complex rezidential

Pret vanzare + TVA
680.000 €

Telefon Consultant imobiliar
0317100200

Cod: REV2001950

Proprietati similare

Bucuresti, Baneasa, Sisesti

Casa, 5 camere

157 mp P + 1 + M 2025

700.000 EUR

Detalii

Bucuresti, Bucurestii Noi

Casa, 5 camere

252.48 mp S + P + 1 + M 2010

698.000 EUR

Detalii

Bucuresti, Herastrau

Casa, 5 camere

138.55 mp P + 1 + M 2003

680.000 EUR

Detalii

Bucuresti, 1 Mai, Domenii

Casa, 5 camere

216.65 mp S + P + 1 + M 2001

720.000 EUR

Detalii

Bucuresti, Pipera

Casa, 5 camere

268 mp P + 1 2025

740.000 EUR

Detalii

Bucuresti, Pipera

Casa, 5 camere

200 mp P + 1 1997

645.000 EUR

Detalii

Bucuresti, Vatra Luminoasa

Casa, 5 camere

257 mp S + P + 1 + M 2018

680.000 EUR

Detalii

Bucuresti, Unirii, Piata Unirii (s3)

Casa, 5 camere

312.66 mp D + P + 1 + M 1940

670.000 EUR

Detalii
Case 5 camere vandute in Baneasa, Bucuresti Case 5 camere de vanzare in Baneasa, Bucuresti

Afla primul de cele mai bune oferte
inainte sa ajunga pe piata

Aboneaza-te la newsletter

Aboneaza-te la notificari