Sisesti 6 camere 220 mp P + 2 300 mp

SVN Romania va propune spre vanzare o vila situata in zona Sisesti, intr-un complex rezidential cu circuit inchis, cu deschidere la lacul Grivita.

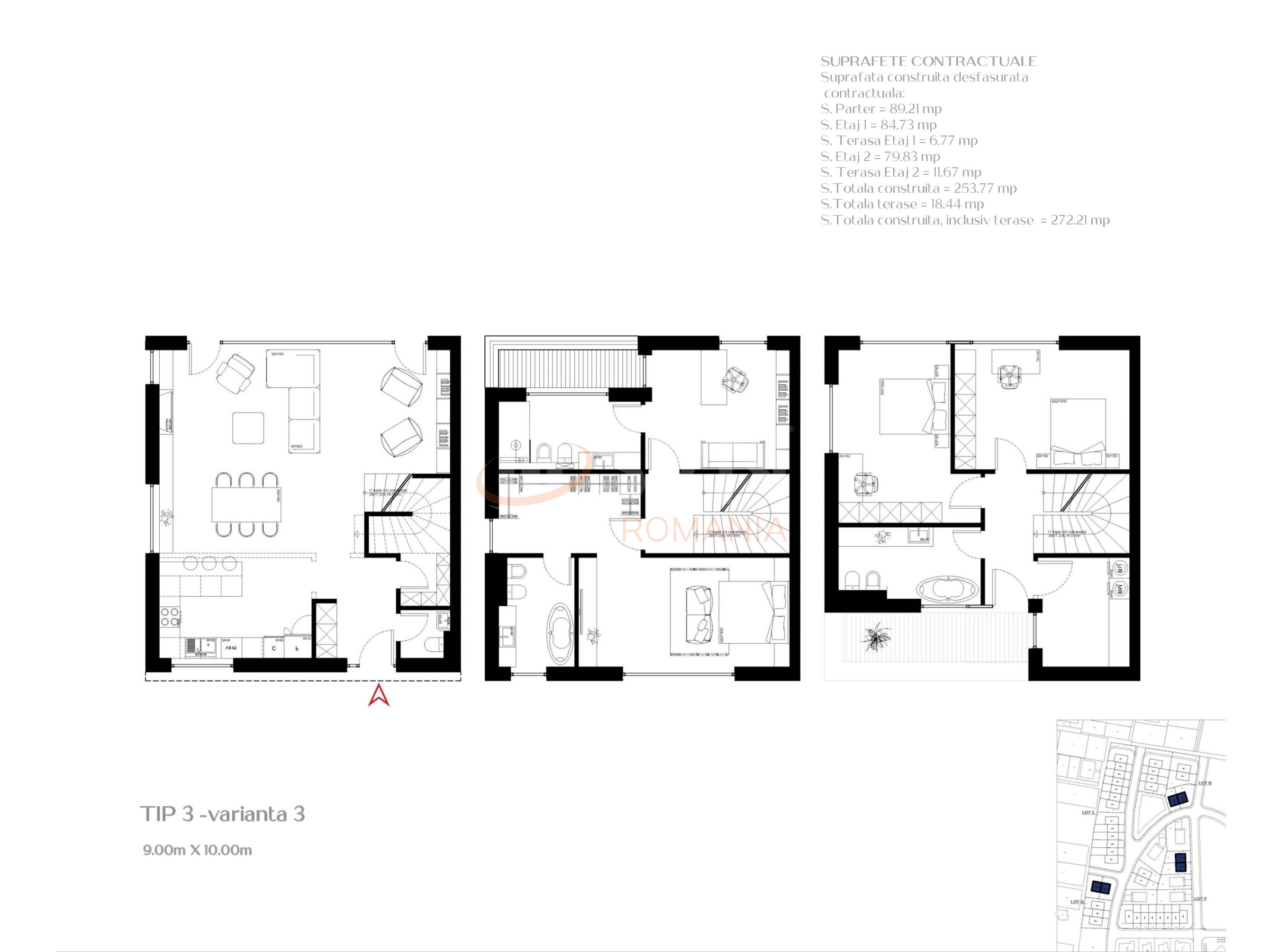
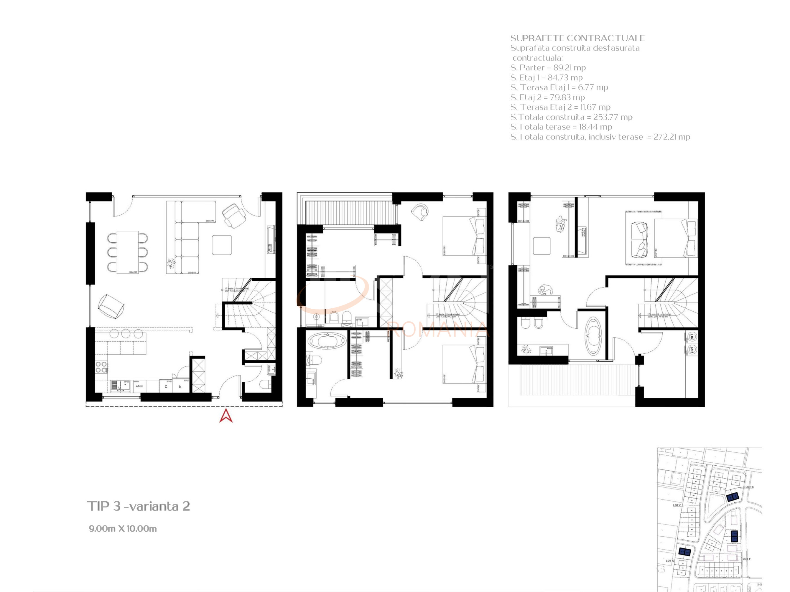
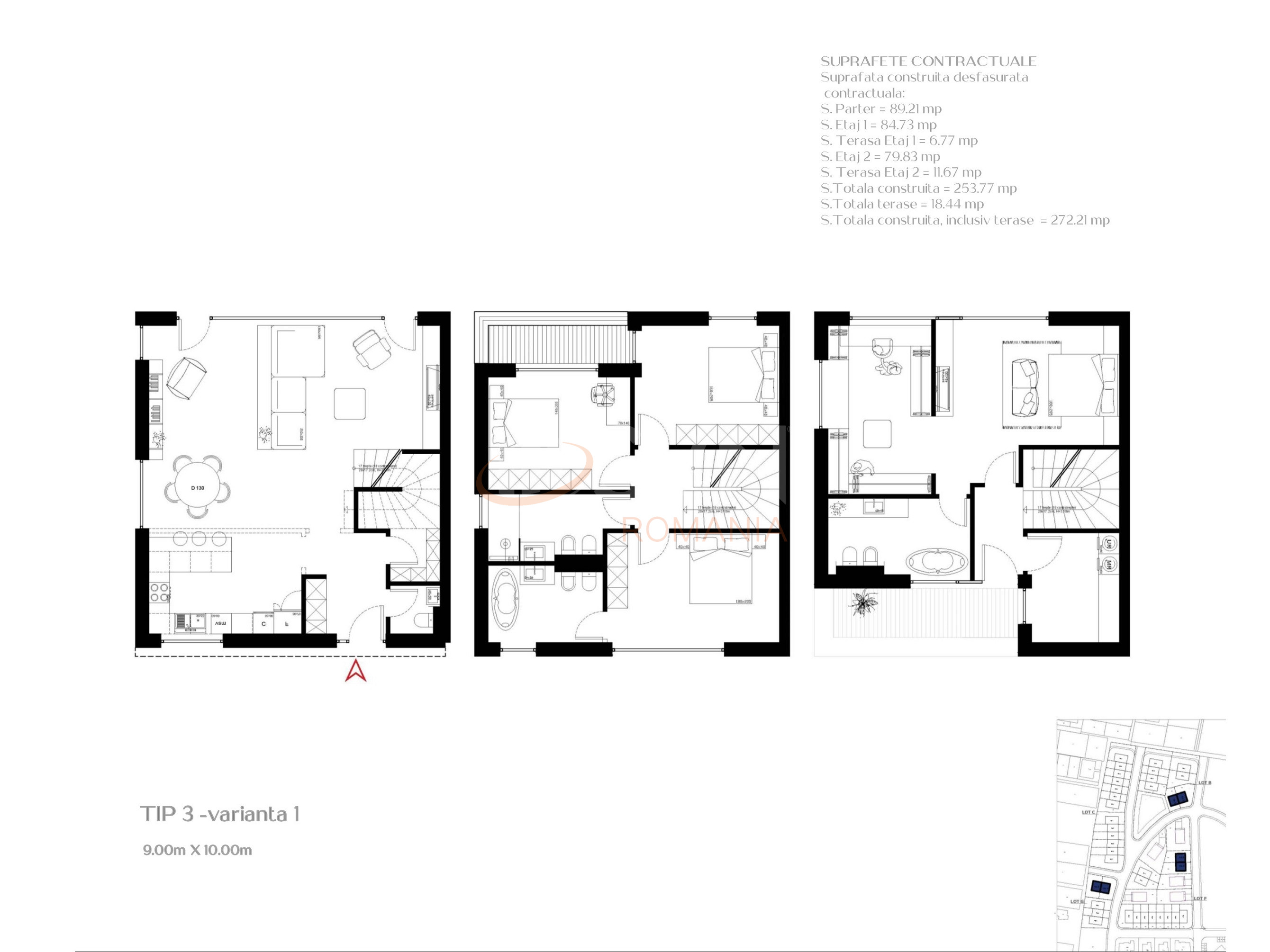
Vila TIP 3 este compusa din P+E1+E2 si are in compunnenta 6 camere dispuse astfel:
Parter: living, dinning, bucatarie, baie, dressing, hol, terasa
Etaj 1: dormitor cu dressing si baie, dormitor cu baie, terasa, hol
Etaj 2: 2 dormitoare, baie, spatiu tehnic, terasa, hol.

Complexul este in faza de executie, primele vile urmand sa fie predate la sfarstul anului 2025. Predarea se va face la stadiul de alb, adica executat integral pe exterior, cu instalatiile de incalzire in pardoseala si racire prin ventiloconvectoare instalate, cu pereti interior vopsiti alb, dar fara gresie, faianta, grupuri sanitare, usi interior sau parchet.

Casele ,,smart sunt proiectate pentru a indeplini noile cerinte ale pietei si provocarilor legate de asigurarea confortului, cu un cost echilibrat. Astfel, noile locuinte vor beneficia de pompe de caldura moderne ce vor functiona cu energie electrica si care vor asigura atat incalzirea cat si racirea casei. Pentru a asigura un consum de utilitati cat mai redus, casele vor fi izolate termic la cele mai inalte standarde si vor beneficia de pregatiri de sisteme care sa permita utilizarea inteligenta a resurselor, programarea si controlul de la distanta. Dotarea standard vine cu panouri solare precum si pregatirea pentru instalarea de panouri fotovoltaice, care pot reduce semnificativ impactul financiar al consumului de energie electrica.

Complexul este format din vile si blocuri cu regim mic de inaltime si este dotat cu spatii de joaca pentru copii, alei pietonale largi, gradinita, paza 24/24, supraveghere video. Toate casele vor beneficia de curti generoase, cu suprafete de teren care pot varia intre 270 si 390 de metri patrati, fiecare vila beneficiind de minim doua locuri de parcare.

Pentru mai multe informatii nu ezitati sa ne contactati.

An constructie 2025

Suprafata construita 249 mp

Suprafata utila 220 mp

Regim Inaltime P + 2

Etaj P + 2

Nr. camere 6 camere

Nr. bai 4

Nr. balcoane 2 balcoane

Tip constructie Vila

Status constructie Nefinalizat

Amprenta la sol 88

Teren suprafata 300 mp

Deschidere stradala 10 m

Curte Individuala Da

Disponibila incepand cu 2025-05-09

Judet Bucuresti

Oras/ Sector Sector 1

Zona Sisesti

Gps lat 44.497655

Gps lng 26.055997

Nr. terase 1

Geamuri termopan

Telefon

Apa

Gaz

Canalizare

Plansee beton

Parcare in curte

Incalzire centrala termica

WC serviciu

Fara amenajari

Detector de gaze

Spatiu de depozitare

Termoizolatie

Internet Wireless

Internet prin fibra optica

Internet prin cablu

Curent electric

Cablu TV

Detector de incendiu

Gradina

Valoare proprietate (€)

Perioada (ani)

Procent avans (108.900 €)


Suma creditata 617.100

Dobanda 4.9%

Rata lunara 15.257 lei

Broker Imobiliar

Andrei Haiduc , Consultant imobiliar Vezi toate proprietatile

0317100200

Sisesti - vila SMART in complex rezidential

Pret vanzare + TVA
726.000 €

Telefon Consultant imobiliar
0317100200

Cod: REV2002133

Proprietati similare

Bucuresti, Bucurestii Noi

Casa, 6 camere

317 mp D + P + 1 + M 2008

710.000 EUR

Detalii

Bucuresti, Pipera

Casa, 6 camere

294 mp P + 2 2008

780.000 EUR

Detalii

Bucuresti, Pipera

Casa, 6 camere

320 mp P + 2 2026

769.000 EUR

Detalii

Bucuresti, Pipera, Iancu Nicolae

Casa, 6 camere

362 mp S + P + 1 + M 2005

785.000 EUR

Detalii

Bucuresti, Dacia, Armeneasca

Casa, 6 camere

200 mp P 1960

699.000 EUR

Detalii

Bucuresti, Parcul Carol

Casa, 6 camere

216 mp D + P + 1 1940

729.000 EUR

Detalii

Bucuresti, Dristor

Casa, 6 camere

380 mp P + 1 + M 2011

699.900 EUR

Detalii
Case 6 camere vandute in Baneasa, Bucuresti Case 6 camere de vanzare in Baneasa, Bucuresti

Afla primul de cele mai bune oferte
inainte sa ajunga pe piata

Aboneaza-te la newsletter

Aboneaza-te la notificari