Floreasca 10 camere 353 mp D + P + 1 + M 186 mp

Echipa SVN Romania va prezinta o vila in zona Floreasca cu o suprafata utila de 353 mp.

Constructia dateaza din anul 1939 si are o parte adaugata spre spatele curtii in 1996.
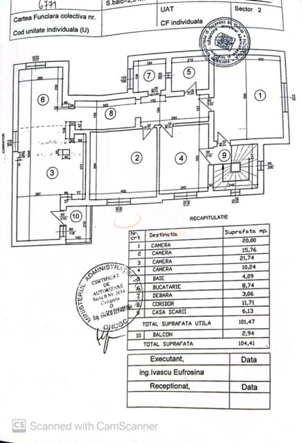
Vila dispune de doua intrari separate din curte direct in zona de demisol inalt si o intrare principala pentru parter. Imobilul este compartimentat astfel: demisol inalt, parter, erajul 1 si mansarda.


Vila se poate renova si amenaja in functie de destinatia aleasa, fiind foarte versatila, avand si 2 scari interioare ( intre demisol si parter ).

Teren total 204 mp (amprenta casei 132 mp), din care 186 mp in proprietate si 18 mp cu chirie la stat (posibil de recuperat).

An constructie 1996

Suprafata construita 389 mp

Suprafata utila 353 mp

Regim Inaltime D + P + 1 + M

Etaj D + P + 1 + M

Nr. camere 10 camere

Nr. bai 3

Nr. balcoane 1 balcon

Tip constructie Vila

Status constructie Finalizat

Amprenta la sol 132

Teren suprafata 186 mp

Curte Individuala Da

Disponibila incepand cu 2023-10-26

Judet Bucuresti

Oras/ Sector Sector 2

Zona Floreasca

Gps lat 44.460733

Gps lng 26.100973

Nr. terase 1

Geamuri termopan

Telefon

Parchet

Apa

Gresie

Gaz

Faianta

Canalizare

Spatiu de depozitare

Cablu TV

Calorifere

WC serviciu

Sistem de alarma

Vila spectaculoasa Calea Floreasca

Proprietate vanduta

Ai o proprietate similara? Vinde-o cu noi.
Vinde apartament

Cod: REV2001868

Proprietati similare

Bucuresti, Dorobanti

Casa, 10 camere

320 mp D + P + 2 + M 2025

690.000 EUR

Detalii

Bucuresti, Parcul Carol

Casa, 10 camere

320 mp P + 2 2000

700.000 EUR

Detalii

Bucuresti, Pipera

Casa, 10 camere

295.57 mp P + 2 2024

695.000 EUR

Detalii
Case 10 camere vandute in Floreasca, Bucuresti Case 10 camere de vanzare in Floreasca, Bucuresti

Afla primul de cele mai bune oferte
inainte sa ajunga pe piata

Aboneaza-te la newsletter

Aboneaza-te la notificari