Iancului 12 camere 300 mp S + P + 1 + M 247 mp

Va prezint spre vanzare aceasta vila situata pe Soseaua Iancului, in apropierea Mega Mall-ului. Aceasta vila impresionanta are o suprafata utila de 300 de metri patrati si beneficiaza de o curte generoaa cu 3 locuri de parcare.. Amplasata intr-o zona cu un potential comercial ridicat, aceasta proprietate se preteaza la orice tip de afacere.

Casa este la Alb in acest moment si asa se va preda. Acest aspect ofera cumparatorului posibilitatea de a-si adauga propriile finisaje si de a personaliza interiorul in functie de preferinte. Cu alte cuvinte, puteti crea spatiul perfect pentru nevoile si gusturile dumneavoastra.

Nu ezitati sa ma contactati pentru vizionari si informatii suplimentare.

An constructie 2020

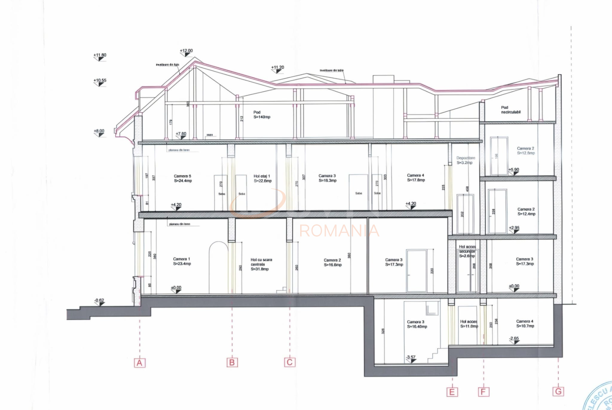
Suprafata construita 357 mp

Suprafata utila 300 mp

Regim Inaltime S + P + 1 + M

Etaj S + P + 1 + M

Nr. camere 12 camere

Nr. bai 4

Nr. balcoane 0 balcoane

Tip constructie Vila

Status constructie Nefinalizat

Amprenta la sol 114 mp

Teren suprafata 247 mp

Deschidere stradala 12 m

Curte Individuala Da

Disponibila incepand cu 2023-09-12

Judet Bucuresti

Oras/ Sector Sector 2

Zona Iancului

Gps lat 44.442886

Gps lng 26.145673

Spatiu de joaca

Acoperis mansardat

Geamuri termopan

Apa

Gaz

Plansee beton

Parcare in curte

WC serviciu

Fara amenajari

Spatiu de depozitare

Termoizolatie

Curent electric

Gradina

Pod

Vila cu 12 Camere de vanzare pe Soseauua Iancului

Proprietate vanduta

Ai o proprietate similara? Vinde-o cu noi.
Vinde apartament

Cod: REV2002630

Proprietati similare

Bucuresti, Calea Calarasilor

Casa, 12 camere

360 mp S + P + 2 1940

599.000 EUR

Detalii

Bucuresti, Ferdinand, Foisorul De Foc

Casa, 12 camere

614 mp S + P + 1 + M 1926

614.000 EUR

Detalii
Case 12 camere vandute in Iancului, Bucuresti Case 12 camere de vanzare in Iancului, Bucuresti

Afla primul de cele mai bune oferte
inainte sa ajunga pe piata

Aboneaza-te la newsletter

Aboneaza-te la notificari