Casa, 15 camere, Bucuresti / Decebal
Imobilul a fost edificat in anul 1940 pe un teren cu suprafata de 240 mp si reconsolidat in anul 2015, are o suprafata utila de 225 mp si beneficiaza de o curte libera generoasa de aproximativ 200 mp, cu o deschidere stradala de 10 metri.
Proprietatea are un regim de inaltime de Demisol + Parter + Etaj + Mansarda, pe fiecare etaj fiind cate un apartament, oferind un total de 15 camere luminoase si bine proportionate. Sunt disponibile 4 grupuri sanitare si 2 bucatarii complet functionale, iar circulatia intre niveluri este asigurata de o scara interioara solida si eleganta.
In anul 2015 imobilul a fost reconsolidat si complet renovat. Lucrarile au inclus subzidire, inlocuirea tuturor instalatiilor (electrice, sanitare, termice) si refacerea completa a finisajelor, astfel incat imobilul nu necesita investitii suplimentare.
Proprietatea ste ideala atat pentru locuinta, cat si pentru sediu de firma, clinica, birouri sau activitati in regim hotelier.
Pentru mai multe detalii sau pentru programarea unei vizionari nu ezitati sa ne contactati.
Atribute
An constructie 1940
Suprafata construita 300 mp
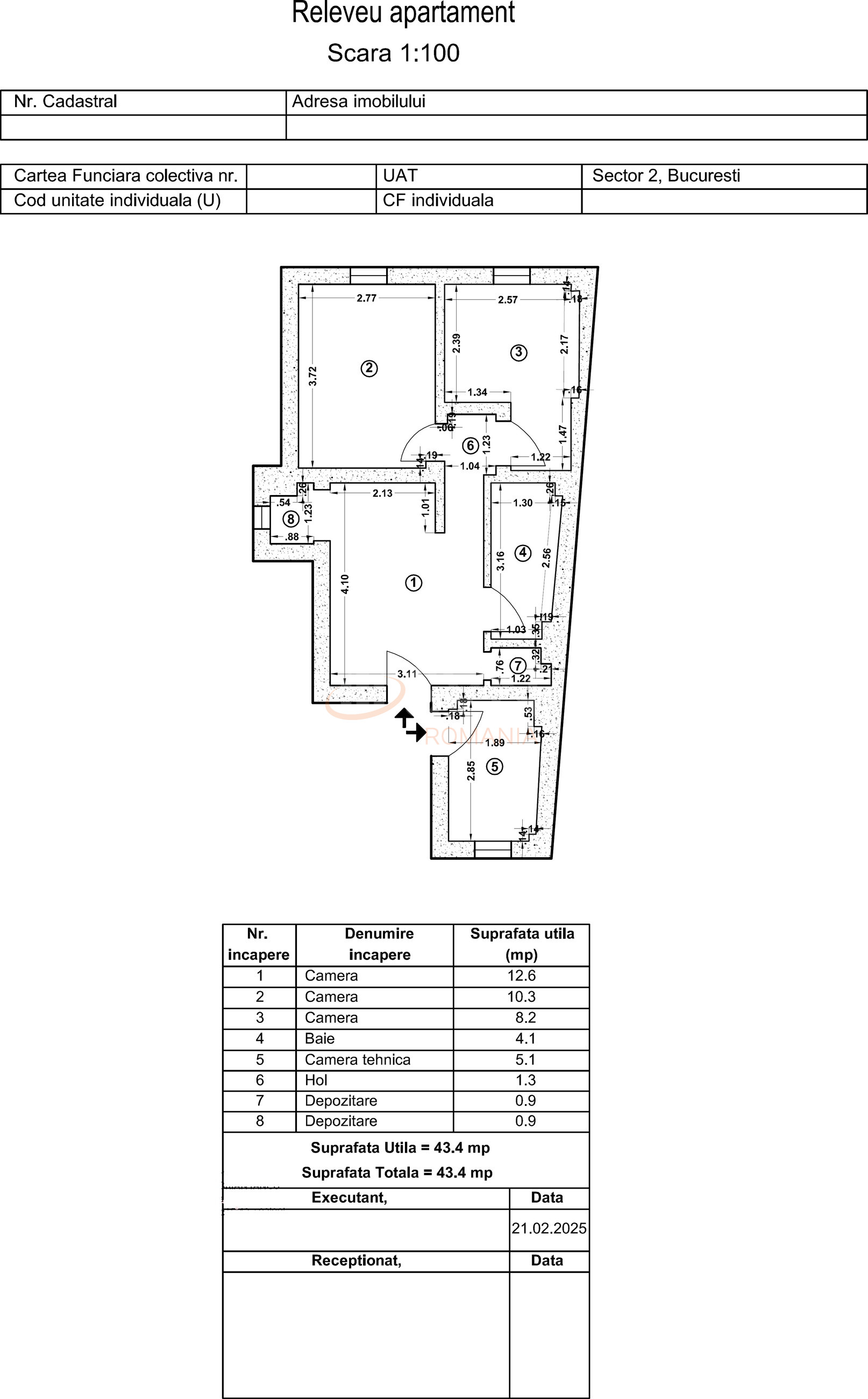
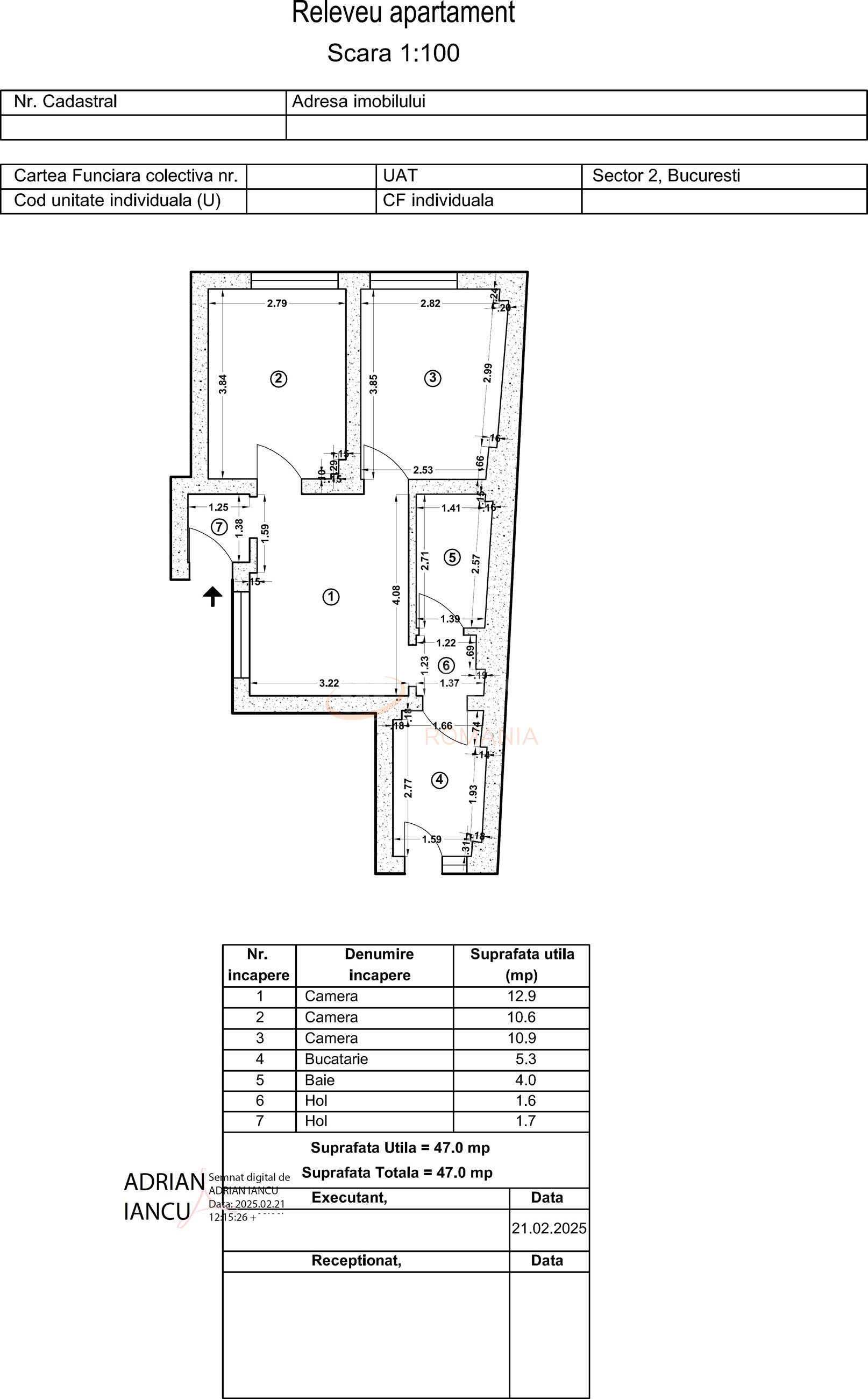
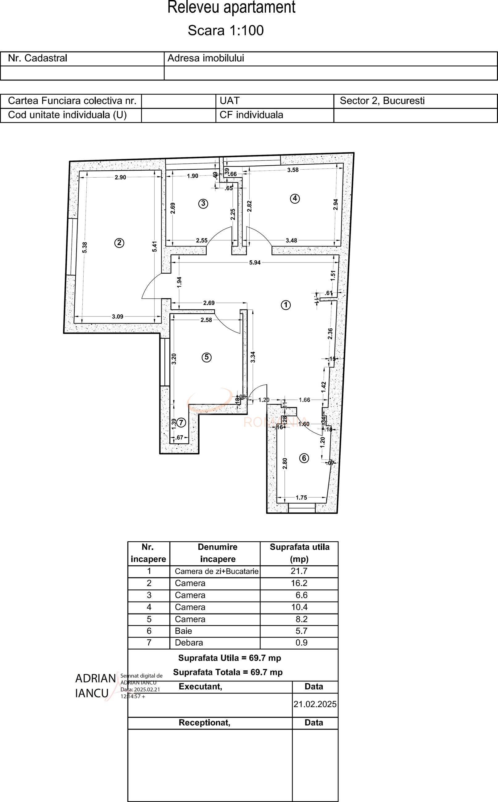
Suprafata utila 225 mp
Regim Inaltime P + 1
Etaj P + 1
Nr. camere 15 camere
Nr. bai 4
Nr. balcoane 1 balcon
Tip constructie Vila
Status constructie Finalizat
Amprenta la sol 60
Teren suprafata 240 mp
Deschidere stradala 10 m
Curte Individuala Da
Disponibila incepand cu 2025-06-04
Judet Bucuresti
Oras/ Sector Sector 3
Zona Decebal
Gps lat 44.432444
Gps lng 26.135720
Facilitati
Geamuri termopan
Telefon
Parchet
Apa
Acoperis tabla
Gresie
Gaz
Faianta
Canalizare
Calorifere
Plansee beton
Parcare in curte
Incalzire centrala termica
Consolidata
Aer conditionat
Renovat recent
WC serviciu
Sistem de alarma
Detector de gaze
Termoizolatie
Interfon
Internet Wireless
Internet prin fibra optica
Internet prin cablu
Curent electric
Cablu TV
Detector de incendiu
Supraveghere video
Credit ipotecar
                                                             
                                                    
Andrei Haiduc , Consultant imobiliar Vezi toate proprietatile
Decebal l IDEAL INVESTITIE l Vila 300 mp
 Pret vanzare  
  535.000 €  
Telefon Consultant imobiliar
 
                0317100200
            
        
 
  
  
  
  
  
  
  
  
  
 