Eroii Revolutiei 3 camere 206 mp P + 1 + M 178 mp

SVN Romania propune spre vanzare o vila P+E+M, cu suprafata utila de 206 mp, totala 247 si amprenta la sol de 114 mp, situata la aproximativ 10 min. de statia de metrou Eroii Revolutiei.

Vila este formata din:
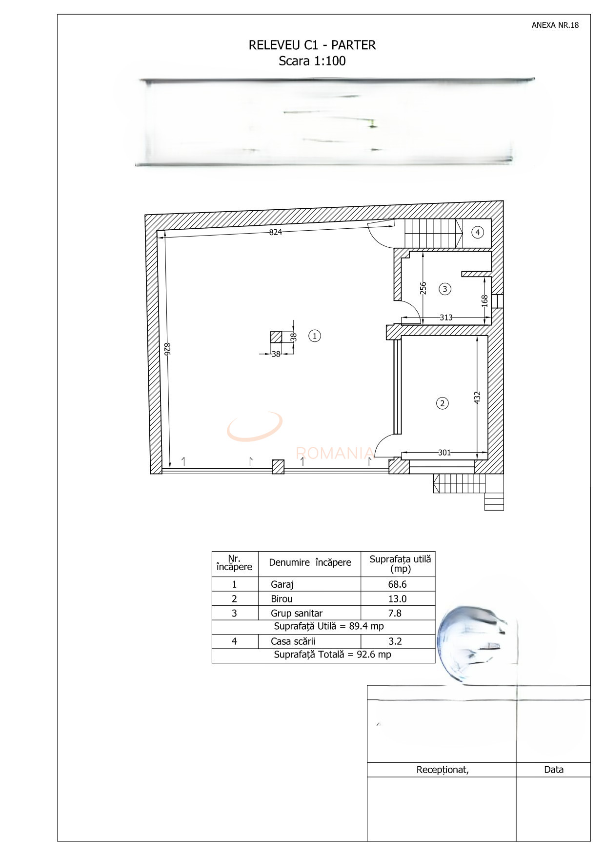
- parter in suprafata utila de 89 mp, compus din service auto complet utilat, bucatarie, baie si beci
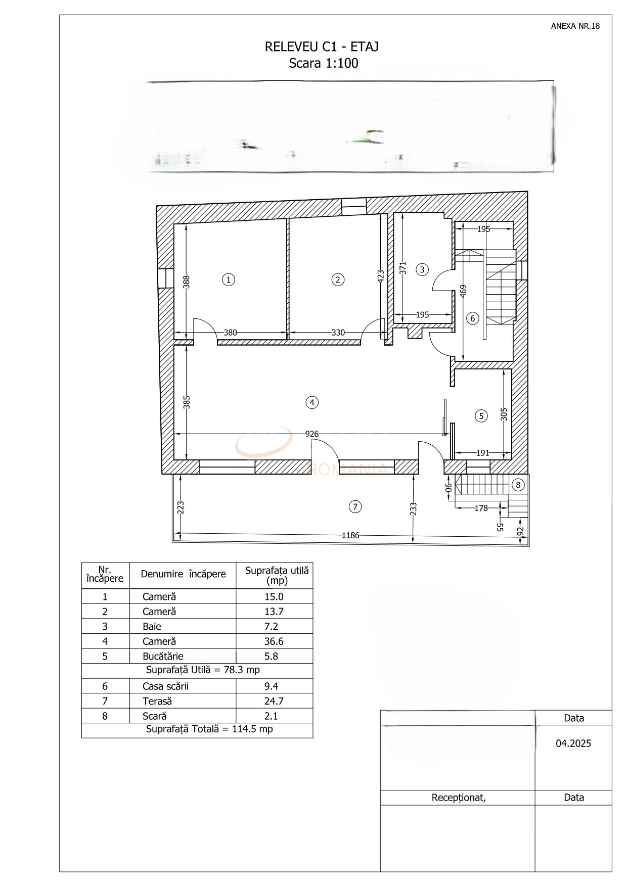
- etaj in suprafata utila de 78 mp, compus din living, 2 dormitoare, baie, bucatarie si terasa
- mansarda in suprafata utila de 39 mp, necompartimentata.

Serviceul auto, aflat la parterul cladirii, este fara activitate, dar a functionat o perioada lunga de timp.

Cladirea a fost construita pe structura de beton cu pereti din caramida poroterm. Este izolata la exterior cu polistiren extrudate de 10 cm, are ferestre termopan si porti PVC la garaj. A fost conceputa ca spatiu de locuit si service auto, dar se poate transforma doar in spatiu de locuit prin reamenajarea parterului sau in scop comercial folosind etajul pentru birouri.

Incalzirea si apa calda menajera se realizeaza cu ajutorul unei centrale murale pe gaze.

Este racordata la toate utilitatile.

Terenul pe care este contruita cladirea are suprafatatotala de 178 mp, are deschidere la strada de 12 m si este imprejmuit cu gard metallic.

In apropriere se regaseste o retea dezvoltata de transport in comun, unitati comerciale, de invatamant, bancare, de cult si agrement.

Pentru mai multe detalii si programarea la vizionare, va rog sa ne contactati.

An constructie 2006

Suprafata construita 247 mp

Suprafata utila 206 mp

Regim Inaltime P + 1 + M

Etaj P + 1 + M

Nr. camere 3 camere

Nr. bai 2

Nr. balcoane 1 balcon

Tip constructie Vila

Status constructie Finalizat

Amprenta la sol 114 mp

Teren suprafata 178 mp

Deschidere stradala 12 m

Curte Individuala Da

Disponibila incepand cu 2025-09-25

Judet Bucuresti

Oras/ Sector Sector 4

Zona Eroii Revolutiei

Gps lat 44.399252

Gps lng 26.093695

Nr. terase 1

Acoperis mansardat

Geamuri termopan

Telefon

Parchet

Apa

Acoperis tabla

Gresie

Gaz

Faianta

Canalizare

Garaj

Calorifere

Plansee beton

Parcare in curte

Incalzire centrala termica

Aer conditionat

WC serviciu

Detector de gaze

Spatiu de depozitare

Termoizolatie

Internet prin Dial-Up

Internet Wireless

Internet prin fibra optica

Internet prin cablu

Curent electric

Cablu TV

Beci

Valoare proprietate (€)

Perioada (ani)

Procent avans (40.500 €)


Suma creditata 229.500

Dobanda 4.9%

Rata lunara 5.674 lei

Broker Imobiliar

Constantin Nicolae , Consultant imobiliar Vezi toate proprietatile

0317100200

Vila 3 Camere si Service Auto Eroii Revolutiei Sector 5 de Vanzare

Pret vanzare
270.000 €

Telefon Consultant imobiliar
0317100200

Cod: REV2005147

Proprietati similare

Bucuresti, Parcul Carol

Casa, 3 camere

84 mp P + M 1960

284.000 EUR

Detalii

Bucuresti, 1 Mai, Turda

Casa, 3 camere

113 mp P + 1 1902

257.000 EUR

Detalii
Case 3 camere vandute in Berceni, Bucuresti Case 3 camere de vanzare in Berceni, Bucuresti

Afla primul de cele mai bune oferte
inainte sa ajunga pe piata

Aboneaza-te la newsletter

Aboneaza-te la notificari