Crangasi 4 camere 129 mp P + 1 268 mp

SVN Romania ofera spre vanzare o vila cu doua etaje, situata in Crangasi la 7 minute distanta de metrou. Proprietatea este compusa din doua apartamente, cate unul pe fiecare etaj (parter si etaj), avand intrare comuna.

Imobilul a fost complet renovat la interior si este gata pentru mutare. Suprafata totala construita este de 163 mp, iar terenul total aferent proprietatii este de 268 mp pe care este situat si garajul.

Distribuirea interioara este urmatoarea:
•Apartament parter (Ap. 1) – 48.7 mp utili (3 camere, 2 bai, bucatarie)
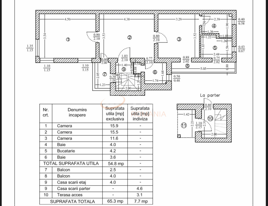
•Apartament etaj (Ap. 2) – 54.8 mp utili (3 camere, 2 bai, bucatarie, 2 balcoane)

In curte se mai afla o a doua casa (constructie separata – C2), care nu este a actualilor proprietari. Aceasta este ocupata de o alta persoana, iar accesul in curte se face prin aceeasi intrare comuna.

Pretul pentru intreaga vila este de 350.000 EUR.

Proprietatea este ideala pentru doua familii, investitie sau inchiriere individuala pe apartamente.

Pentru detalii suplimentare si programari vizionari, va rugam sa ne contactati.

An constructie 1966

Suprafata construita 163 mp

Suprafata utila 129 mp

Regim Inaltime P + 1

Etaj P + 1

Nr. camere 4 camere

Nr. bai 4

Nr. balcoane 2 balcoane

Tip constructie Vila

Status constructie Finalizat

Teren suprafata 268 mp

Deschidere stradala 9 m

Disponibila incepand cu 2025-09-16

Judet Bucuresti

Oras/ Sector Sector 6

Zona Crangasi

Gps lat 44.449649

Gps lng 26.045806

Nr. terase 1

Telefon

Parchet

Apa

Acoperis tabla

Gresie

Gaz

Faianta

Canalizare

Garaj

Incalzire prin pardoseala

Parcare in curte

Aer conditionat

WC serviciu

Detector de gaze

Internet Wireless

Curent electric

Gradina

Pod

Vila de vanzare 4 camere zona Crangasi

Proprietate vanduta

Ai o proprietate similara? Vinde-o cu noi.
Vinde apartament

Cod: REV2005036

Proprietati similare

Bucuresti, Giulesti

Casa, 4 camere

180 mp P + 2 + M 2017

335.000 EUR

Detalii

Bucuresti, Giulesti

Casa, 4 camere

175 mp P + 2 2025

329.000 EUR

Detalii

Bucuresti, Giulesti

Casa, 4 camere

176 mp P + 2 2025

355.000 EUR

Detalii

Bucuresti, Bucurestii Noi

Casa, 4 camere

130 mp P + 1 2025

385.000 EUR

Detalii

Bucuresti, Mosilor

Casa, 4 camere

107 mp P + M 1930

349.000 EUR

Detalii

Bucuresti, Baneasa, Sisesti

Casa, 4 camere

113 mp P + 1 2024

380.000 EUR

Detalii

Bucuresti, Bucurestii Noi

Casa, 4 camere

140 mp P + 1 2024

315.000 EUR

Detalii
Exclusiv Discount

Bucuresti, Pipera

Casa, 4 camere

117 mp P + 1 2025

379.000 EUR

Detalii
Case 4 camere vandute in Crangasi, Bucuresti Case 4 camere de vanzare in Crangasi, Bucuresti

Afla primul de cele mai bune oferte
inainte sa ajunga pe piata

Aboneaza-te la newsletter

Aboneaza-te la notificari