Berceni 3 camere 86 mp P + 1 300 mp

Casa individuala P+1 I Berceni, Ilfov | 86 mp utili | Teren 300 mp

Descopera o casa individuala moderna, construita cu atentie la detalii si materiale de calitate, situata intr-o zona linistita din comuna Berceni, ideala pentru o familie tanara sau pentru cei care isi doresc un refugiu confortabil aproape de Bucuresti.

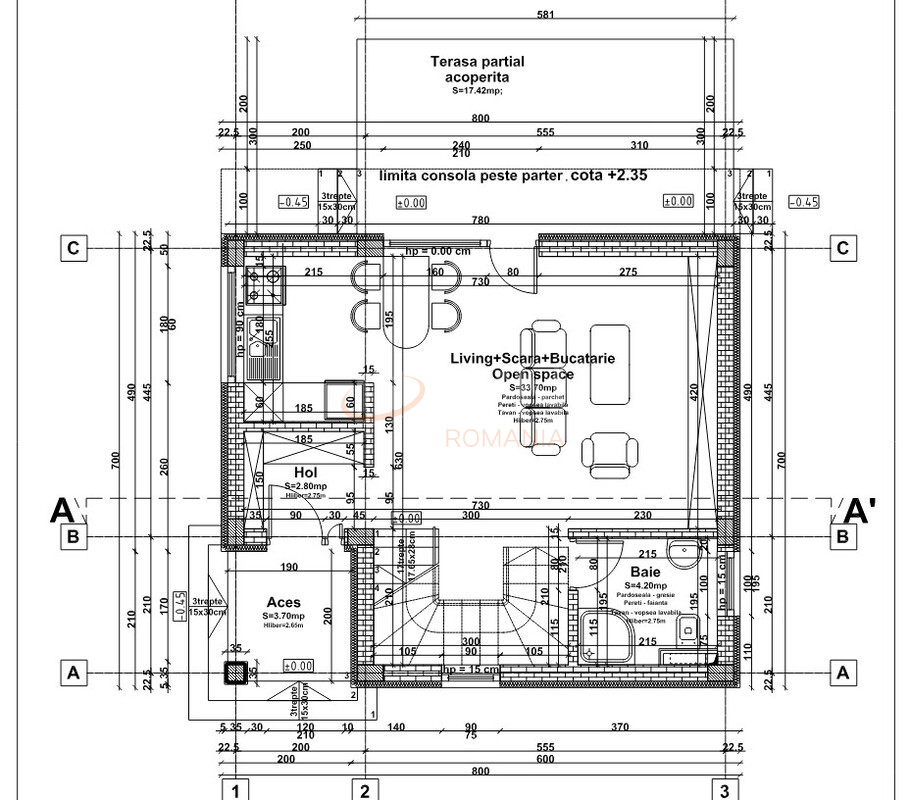
Locuinta are o suprafata utila de 86 mp, compartimentata inteligent pentru confort maxim:

Parterul cuprinde un living luminos, o bucatarie open-space si o baie moderna;

Etajul este gandit pentru zona de noapte, oferind doua dormitoare, o baie si un dressing practic.

Caracteristici:

Suprafata terenului: 300 mp, cu locuri de parcare pentru minim doua masini;

Structura din BCA Ytong – 30 cm exterior, 15 cm interior;

Izolatie cu celuloza de 15 cm la pod pentru o eficienta termica ridicata;

Tamplarie Rehau tripan pentru izolare superioara;

Incalzire in pardoseala pe ambele niveluri.

Finisaje la alegere:

Gresie si parchet – buget 50 lei/mp;

Usi interioare – buget 1.000 lei;

Obiecte sanitare bai – buget 4.000 lei.

Termen de finalizare: cel tarziu ianuarie 2026.

Curtea generoasa permite amenajarea unei terase, a unei gradini sau a unui spatiu de relaxare. Casa este ideala pentru cei care cauta confort, eficienta energetica si un design contemporan.

Locatie: zona rezidentiala noua din comuna Berceni, cu acces rapid catre Bucuresti si toate facilitatile necesare in apropiere.

Alege o locuinta construita responsabil, luminoasa si primitoare – un camin perfect pentru viitorul tau.

An constructie 2025

Suprafata construita 128 mp

Suprafata utila 86 mp

Regim Inaltime P + 1

Etaj P + 1

Nr. camere 3 camere

Nr. bai 2

Nr. balcoane 0 balcoane

Tip constructie Vila

Status constructie Finalizat

Teren suprafata 300 mp

Curte Individuala Da

Disponibila incepand cu 2025-10-16

Judet Ilfov

Oras/ Sector Sud

Zona Berceni

Gps lat 44.310486

Gps lng 26.182376

Nr. terase 1

Geamuri termopan

Parchet

Apa

Gresie

Gaz

Faianta

Incalzire prin pardoseala

Parcare in curte

WC serviciu

Fosa septica

Detector de gaze

Curent electric

Valoare proprietate (€)

Perioada (ani)

Procent avans (21.300 €)


Suma creditata 120.700

Dobanda 4.9%

Rata lunara 2.985 lei

Broker Imobiliar

Sorin Netejoru , Consultant imobiliar Vezi toate proprietatile

0317100200

Casa individuala in comuna Berceni I teren 300 mp

Pret vanzare
142.000 €

Telefon Consultant imobiliar
0317100200

Cod: REV2005256

Proprietati similare

Ilfov, Est, Pantelimon

Casa, 3 camere

89 mp P + M 2025

135.000 EUR

Detalii

Ilfov, Nord, Balotesti

Casa, 3 camere

100 mp P + 1 2023

145.000 EUR

Detalii

Ilfov, Nord, Ciolpani

Casa, 3 camere

84 mp P + M 2025

135.000 EUR

Detalii
Case 3 camere vandute in Sud, Ilfov Case 3 camere de vanzare in Sud, Ilfov

Afla primul de cele mai bune oferte
inainte sa ajunga pe piata

Aboneaza-te la newsletter

Aboneaza-te la notificari