Berceni 5 camere 166 mp P + 1 561 mp

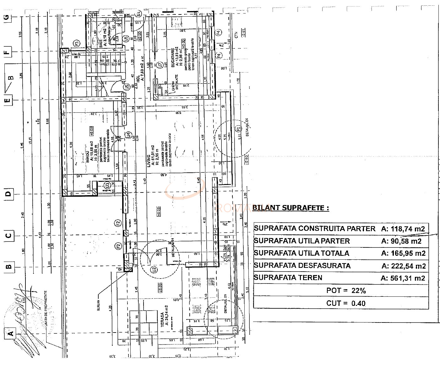
SVN Romania propune spre vanzare o vila parter si etaj, cu suprafata utila de 166 mp, amprenta la sol 119 mp si suprafata desfasurata 223 mp, situata in comuna Berceni, jud. Ilfov.

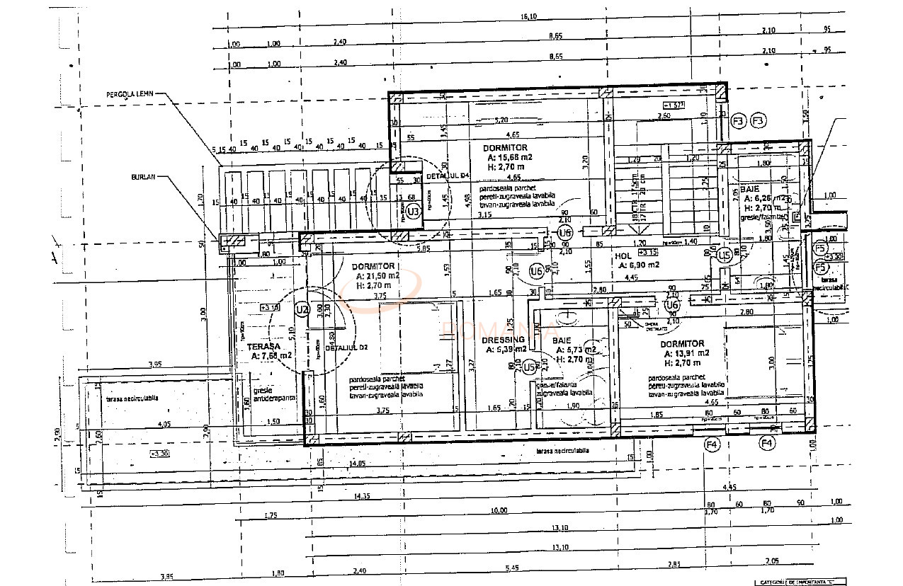
Vila, amplasta pe un teren cu suprafata totala a terenului de 561 mp, este compusa din living, bucatarie, birou, si baie, la parter, iar la etaj, dispune de 3 dormitoare si 2 bai.

Terenul este situat pe colt cu acces la 2 strazi si deschideri de 14 m respective 40 m.

Imobilul este in stadiul la rosu si necesita investitie pentru a putea fi locuita.

Conform certificatului de performanta energetica nr. 87/11.01.2022, imobilul se incadreaza in Clasa energetica B, Consumul total specific de energie primara este de 199.59, Indicele de emisii echivalent CO2 este 41.65 iar Consum total specific de energie din surse regenerabile este 0.

Pentru mai multe detalii, va rugam sa ne contactati.

An constructie 2007

Suprafata construita 223 mp

Suprafata utila 166 mp

Regim Inaltime P + 1

Etaj P + 1

Nr. camere 5 camere

Nr. bai 3

Nr. balcoane 0 balcoane

Tip constructie Vila

Status constructie Finalizat

Amprenta la sol 116 mp

Teren suprafata 561 mp

Deschidere stradala 40

Curte Individuala Da

Disponibila incepand cu 2025-07-16

Judet Ilfov

Oras/ Sector Sud

Zona Berceni

Gps lat 44.295760

Gps lng 26.187114

Nr. terase 1

Geamuri termopan

Telefon

Plansee beton

Parcare in curte

WC serviciu

Internet prin Dial-Up

Internet prin cablu

Curent electric

Valoare proprietate (€)

Perioada (ani)

Procent avans (19.500 €)


Suma creditata 110.500

Dobanda 4.9%

Rata lunara 2.732 lei

Broker Imobiliar

Constantin Nicolae , Consultant imobiliar Vezi toate proprietatile

0317100200

Vila 5 Camere Teren 561 mp Comuna Berceni de Vanzare

Pret vanzare + TVA
130.000 €

Telefon Consultant imobiliar
0317100200

Cod: REV2004865

Proprietati similare

Exclusiv Discount

Ilfov, Sud, Domnesti

Casa, 5 camere

120 mp P + 1 2025

136.500 EUR

Detalii
Case 5 camere vandute in Sud, Ilfov Case 5 camere de vanzare in Sud, Ilfov

Afla primul de cele mai bune oferte
inainte sa ajunga pe piata

Aboneaza-te la newsletter

Aboneaza-te la notificari