Centru 2 camere 70 mp P + M 627 mp

Descopera Magia Vietii la Munte: Casa A-frame cu Priveliste Panoramica in Tesila, Valea Doftanei

Descriere:
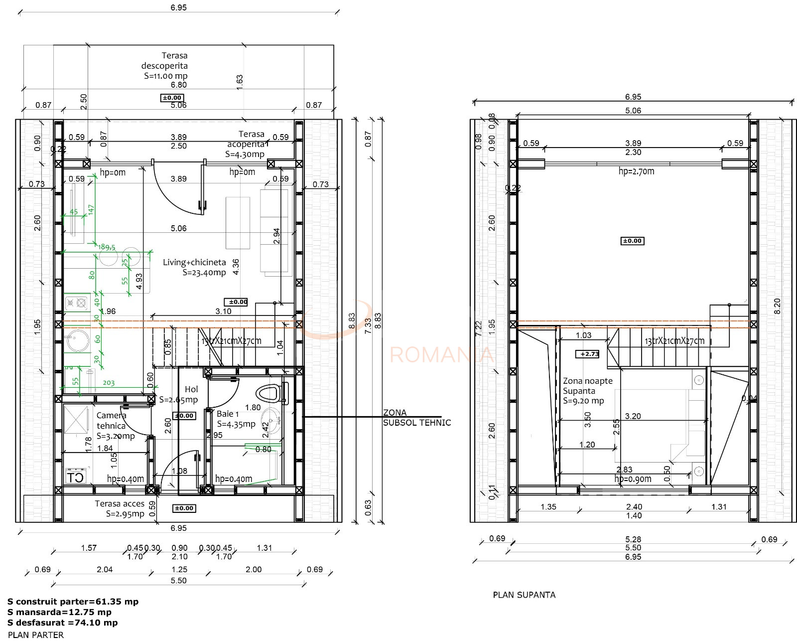
Bucura-te de liniste si frumusetea naturii in aceasta minunata casa A-frame independenta energetic, situata intr-o zona superba pe Valea Doftanei, in satul Tesila. Cu o priveliste de vis si un design distinctiv, aceasta cabana ofera o experienta de trai unica in mijlocul naturii.

La parter, vei gasi un living generos impreuna cu o bucatarie open space, perfecte pentru momente relaxante alaturi de cei dragi. Baia eleganta si camera tehnica completeaza amenajarea perfecta a acestui nivel. Mansarda surprinde cu un dormitor spatios de unde poti admira cu uimire peisajul inconjurator. Casa dispune si de un beci util.

Caracteristici-cheie:

Design A-frame distinctiv
Living + Bucatarie open space
Dormitor cu priveliste panoramica
Baie moderna
Terasa de 17mp pentru momente magice in aer liber
Beci spatios
Energie independenta
Amplasare pe un teren de 627mp + 99,7mp (cota drum)
Locatie:
Situate pe Valea Doftanei in satul Tesila, aceasta casa ofera o pozitie unica si centrala pentru explorarea frumusetilor naturale din imprejurimi. Cu atractii turistice si trasee de drumetii la cativa pasi distanta, vei descoperi cu usurinta farmecul acestei zone.

Imagini si Tur Virtual:
Exploreaza aceasta minunata proprietate prin fotografii detaliate disponibile pe site.
Pretul de vanzare difera in functie de modalitatea in care preferati sa o achizitionati:
- 93.000 euro stadiu actual( Tamplarie PVC tripan Gealancu armare suplimentara, invelitoare tigla metalica 5mm Wetterbest profil Gladiator, fosa septica 1000L, piatra naturala pe terase, scari si pe fatade fundatie, lambriu de 2cm.
-120.000 euro, pret la cheie: instalatie incalzire pardoseala, centrala gaz+butelie GPL 500L in curte, put cu hidrofor, panouri fotovtaice 5kw offgrid hybrid cu baterii, generator de backup cu pornire automata, finisaje interior exterior lambriu 2cm grosime(camera tehnica, baie si zona bucatarie rigips/gresie/faianta), parchet in living si dormitor mansarda, scara de lemn acces mansara+balustrade, baie complet utilata, amenajare curte cu piatra concasata + pomisori.
Pentru orice detalii nu ezitati sa ma contactati.

An constructie 2023

Suprafata construita 97 mp

Suprafata utila 70 mp

Regim Inaltime P + M

Etaj P + M

Nr. camere 2 camere

Nr. bai 1

Nr. balcoane 0 balcoane

Tip constructie Vila

Status constructie Finalizat

Teren suprafata 627 mp

Curte Individuala Da

Disponibila incepand cu 2023-12-13

Judet Prahova

Oras/ Sector Valea Doftanei

Zona Centru

Gps lat 45.297811

Gps lng 25.710670

Nr. terase 1

Spatiu de joaca

Geamuri termopan

Acoperis tigla

Parchet

Gresie

Faianta

Parcare in curte

Consolidata

Pod

Panouri solare

Casa de vacanta A frame independenta energetic

Proprietate vanduta

Ai o proprietate similara? Vinde-o cu noi.
Vinde apartament

Cod: REV2003359
Case 2 camere vandute in Valea Doftanei, Prahova Case 2 camere de vanzare in Valea Doftanei, Prahova

Afla primul de cele mai bune oferte
inainte sa ajunga pe piata

Aboneaza-te la newsletter

Aboneaza-te la notificari