Dragomiresti Vale 4 camere 120 mp P + M 430 mp

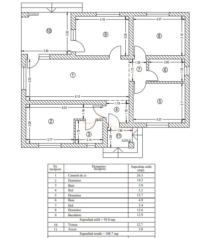
Va propunem spre vanzare o casa cu regim de inaltime parter + pod, situata in Dragomiresti-Vale. Aceasta este impartita astfel: 3 dormitoare, 2 bai, living si bucatarie, toate fiind foarte spatioase.
Podul (80 mp) poate fi valorificat deoarece este prevazut cu placa de beton. Accesul se face pe scara interioara.
Casa are toate utilitatile necesare - gaz, curent electric, apa si canalizare.
Curentul electric este trifazat si exista posibilitatea montarii panourilor fotovoltaice si a unei pompe de caldura.
Casa se vinde la alb la pretul de 116.000EUR sau exista posibilitatea alegerii finisajelor cu un buget alocat, la pretul de 130.000EUR.

Pentru mai multe detalii nu ezitati sa ne contactati.

An constructie 2022

Suprafata construita 130 mp

Suprafata utila 120 mp

Regim Inaltime P + M

Etaj P + M

Nr. camere 4 camere

Nr. bai 1

Nr. balcoane 0 balcoane

Tip constructie Casa

Status constructie Finalizat

Amprenta la sol 130

Teren suprafata 430 mp

Curte Individuala Da

Disponibila incepand cu 2023-04-19

Judet Ilfov

Oras/ Sector Vest

Zona Dragomiresti Vale

Gps lat 44.470911

Gps lng 25.947437

Nr. terase 1

Acoperis mansardat

Geamuri termopan

Apa

Gaz

Canalizare

Spatiu de depozitare

Curent electric

Gradina

Pod

Plansee beton

Casa 4 camere I toate utilitatile

Proprietate vanduta

Ai o proprietate similara? Vinde-o cu noi.
Vinde apartament

Cod: REV2002514

Proprietati similare

Ilfov, Sud, Bragadiru

Casa, 4 camere

92.3 mp P + 1 2025

124.900 EUR

Detalii
Case 4 camere vandute in Vest, Ilfov Case 4 camere de vanzare in Vest, Ilfov

Afla primul de cele mai bune oferte
inainte sa ajunga pe piata

Aboneaza-te la newsletter

Aboneaza-te la notificari