Iris 700 mp 0 mp

Imobil situat in cartierul Iris| zona Bld. Muncii.

LOCALIZARE:
Proprietatea este pozitionata in imediata apropiere a Universitatii Tehnice.

TIP SPATIU:
-Cladire de birouri;

COMPARTIMENTARE:
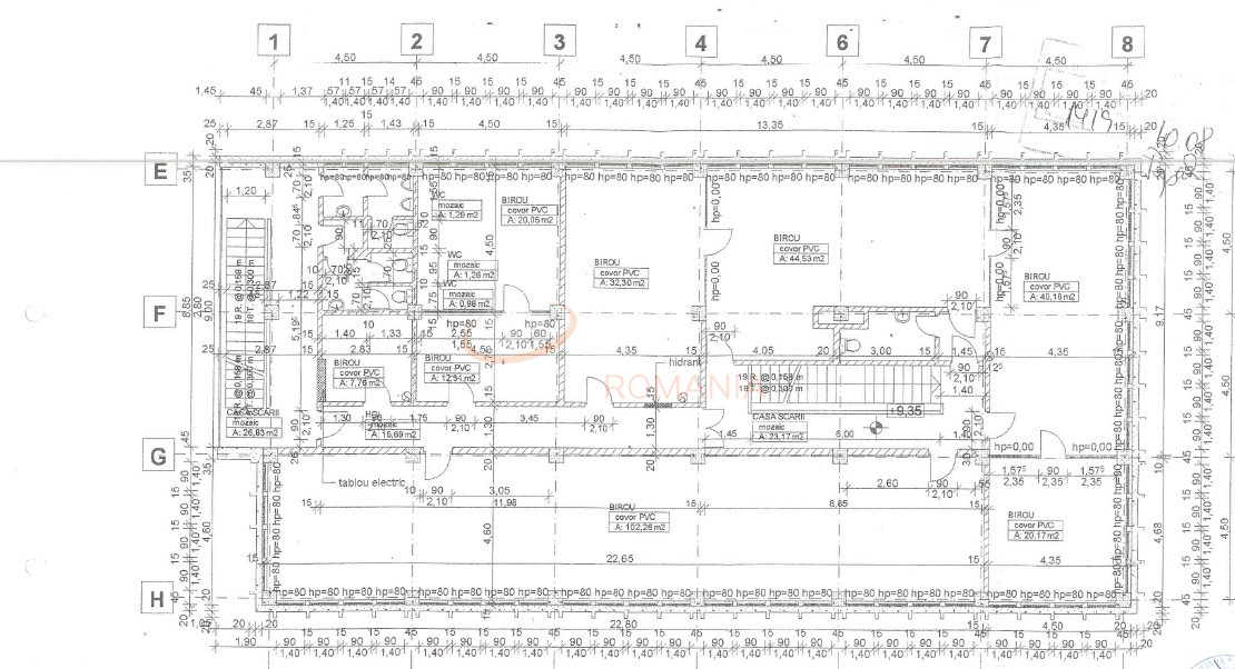
Spatiul este într-o cladire de birouri cu 4 etaje, fiind disponibile etajele 3 si 4 cu o superfata toata de 700 mp, compartimentat in 18 birouri si 2 grupuri sanitare pe fiecare nivel.

DOTARI:
- sistem securitate;
- Centrala termica;
- Aer conditionat;
- Doua grupuri sanitare pe nivel;
- Internet;
- Contorizare separata;
- Locuri de parcare;

AVANTAJE:
- Suprafata generoasa;
- Contorizare sperat?;

DESTINA?IE COMERCIALA PRETABILA:
-sediu firma;
-Spatiu birouri;
-etc;

IMPREJURIMI:
Spatiul este situat intr-o zona industriala;

NOTA:
Perioada Minima Inchiriere Acceptata: 12 luni;
Pentru informatii suplimentare, broker-ul care administreaza aceasta oferta, va sta la dispozitie.

SVN Romania | Cluj, brand recunoscut la nivel mondial, pentru calitatea serviciilor imobiliare oferite, doreste sa ofere detalii tehnice, in raport cu situatia reala a proprietatii prezentate, cu amendamentul ca acestea nu constituie sau nu fac parte dintr-o oferta aferenta unui contract.

Structura acestei prezentari nu poate fi preluata, fara acordul scris al SVN Romania | Cluj.

Regim Inaltime 3 / P + 4

Etaj 3

Nr. bai 4

Suprafata comerciala 700 mp

Suprafata depozit 0 mp

Disponibila incepand cu 2025-08-13

Judet Cluj

Oras/ Sector Cluj-Napoca

Zona Iris

Gps lat 46.796945

Gps lng 23.616254

Commercial space type Cladire de birouri

Baie privata

Detector de incendiu

Supraveghere video

Sistem de alarma

Internet prin fibra optica

Internet prin cablu

Curent electric

Cablu TV

Geamuri termopan

Parchet

Apometre

Gresie

Faianta

Gaz

Loc parcare exterior

Incalzire proprie

WC serviciu

Aer conditionat

Spatiu Birouri bld. Muncii

Proprietate inchiriata

Ai o proprietate similara? Vinde-o cu noi.
Vinde apartament

Cod: REC3001503
Spatii-comerciale inchiriate in Cluj-Napoca, Cluj Spatii-comerciale de inchiriere in Cluj-Napoca, Cluj

Afla primul de cele mai bune oferte
inainte sa ajunga pe piata

Aboneaza-te la newsletter

Aboneaza-te la notificari