Manastur 156.25 mp 65.45 mp

SVN Romania | Cluj va propune spre inchiriere spatiu comercial cu suprafata utila de 241,6 mp, situat in Cartierul Manastur, la parterul comercial al unui bloc de 10 etaje, pe o artera principala intens circulata atat de pietoni cat si de masini.

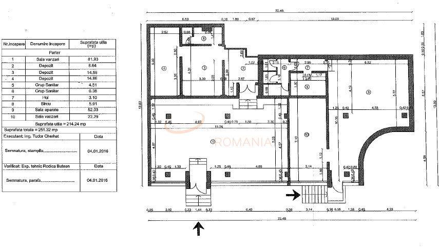
Spatiul Comercial este compus dintr-un incapere cu vitrina la strada de 8 ml, 4 spatii de depozitare, 2 grupuri sanitare, doua holuri, 1 birou, si inca doua incaperi ce se pot folosi in scop comercial.

Aceasta locatie este ideala pentru deschiderea unui centru pentru jocuri de noroc.

Pentru informatii suplimentare, broker-ul care administreaza aceasta oferta, va sta la dispozitie.

SVN Romania | Cluj, brand recunoscut la nivel mondial, pentru calitatea serviciilor imobiliare oferite, doreste sa ofere detalii tehnice, in raport cu situatia reala a proprietatii prezentate, cu amendamentul ca acestea nu constituie sau nu fac parte dintr-o oferta aferenta unui contract.

Structura acestei prezentari nu poate fi preluata, fara acordul scris al SVN Romania | Cluj.

Regim Inaltime P / P + 10

Etaj P

Nr. bai 2

Suprafata comerciala 156.25 mp

Suprafata depozit 65.45 mp

Deschidere fereastra 8.00

Disponibila incepand cu 2022-03-02

Judet Cluj

Oras/ Sector Cluj-Napoca

Zona Manastur

Gps lat 46.758367

Gps lng 23.549779

Commercial space type Bloc

Internet prin fibra optica

Detector de gaze

Receptie

Internet Wireless

Detector de incendiu

Supraveghere 24/7

Curent electric

Sistem de alarma

Spatiu de depozitare

Baie privata

Geamuri termopan

Repartitoare

Boxa

Gresie

Faianta

Gaz

Incalzire proprie

Bloc reabiliat termic

Fara imbunatatiri

Vitrina 8ml

Proprietate inchiriata

Ai o proprietate similara? Vinde-o cu noi.
Vinde apartament

Cod: REC3000218
Spatii-comerciale inchiriate in Cluj-Napoca, Cluj Spatii-comerciale de inchiriere in Cluj-Napoca, Cluj

Afla primul de cele mai bune oferte
inainte sa ajunga pe piata

Aboneaza-te la newsletter

Aboneaza-te la notificari