Dorobanti 100 mp 0 mp

SVN Residentialist va propune spre inchiriere un spatiu comercial situat intr-una dintre cele mai cautate si exclusiviste zone ale Capitalei – Dorobanti. Pozitionat imediat langa bulevardul principal, spatiul beneficiaza de vizibilitate si acces facil, fiind ideal pentru diverse activitati comerciale sau de servicii.

Situat la demisolul inalt al unui imobil elegant, spatiul dispune de un vad pietonal si auto excelent, fiind in apropiere de sedii de banci, clinici, restaurante, cafenele si boutique-uri de renume. Zona Dorobanti este recunoscuta pentru mixul sau echilibrat intre rezidential premium si activitati comerciale dinamice, ceea ce ofera un potential ridicat de dezvoltare si atragere a clientilor.

Cu un caracter versatil si functional, spatiul poate fi adaptat usor pentru diverse domenii precum beauty, consultanta, showroom, galerie sau birou de reprezentanta.
Se solicita 1 luna de chirie si 2 luni de garantie.

Pentru mai multe detalii si programarea unei vizionari, echipa SVN Residentialist va sta la dispozitie.

Regim Inaltime D / D + P + 3

Etaj D

Nr. bai 3

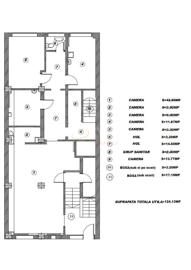
Suprafata comerciala 100 mp

Suprafata depozit 0 mp

Disponibila incepand cu 2025-05-21

Judet Bucuresti

Oras/ Sector Sector 1

Zona Dorobanti

Gps lat 44.461849

Gps lng 26.096105

Commercial space type Cladire de birouri

Receptie

Internet Wireless

Curent electric

Cablu TV

Parchet

Boxa

Gresie

Telefon

Faianta

Incalzire proprie

Aer conditionat

Broker Imobiliar

Alina Rezmerita , Consultant imobiliar Vezi toate proprietatile

0317100200

Spatiu comercial Dorobanti

Pret inchiriere
1.800 € /luna

Telefon Consultant imobiliar
0317100200

Cod: REC3001369

Proprietati similare

Bucuresti, Aviatorilor

Spatiu comercial 125 mp

5

1.875 EUR/luna

Detalii

Bucuresti, Floreasca, Barbu Vacarescu

Spatiu comercial 112.6 mp

3

1.896 EUR/luna

Detalii

Bucuresti, Floreasca, Barbu Vacarescu

Spatiu comercial 104.45 mp

4

1.820 EUR/luna

Detalii

Bucuresti, Aviatiei

Spatiu comercial 165 mp

P

1.750 EUR/luna

Detalii

Bucuresti, Ultracentral, Magheru

Spatiu comercial 150 mp

P

1.900 EUR/luna

Detalii

Bucuresti, Ferdinand, Foisorul De Foc

Spatiu comercial 171.7 mp

2

1.950 EUR/luna

Detalii

Bucuresti, Ultracentral, Calea Victoriei

Spatiu comercial 250 mp

3

1.900 EUR/luna

Detalii

Bucuresti, Mosilor

Spatiu comercial 137.98 mp

6

1.900 EUR/luna

Detalii
Spatii-comerciale inchiriate in Dorobanti, Bucuresti Spatii-comerciale de inchiriere in Dorobanti, Bucuresti

Afla primul de cele mai bune oferte
inainte sa ajunga pe piata

Aboneaza-te la newsletter

Aboneaza-te la notificari