Spatiu comercial 122 mp, Bucuresti / Dorobanti
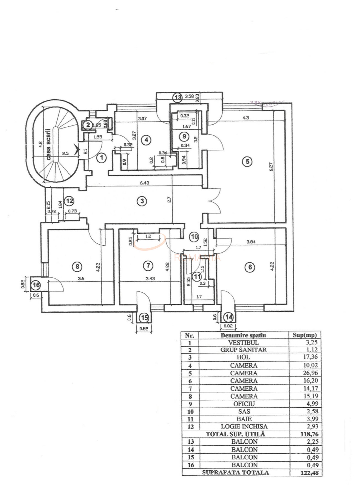
Este amplasat la parterul unei cladiri spectaculoase din cartierul Dorobanti si este impartit in 6 camere spatioase si luminoase si doua grupuri sanitare.
Spatiul are suprafata de 122 mp si este o locatie perfecta pentru birouri, notariat, centru medical etc.
Se ofera perioada de gratie pentru amenajare, pentru un contract de inchiriere de lunga durata.
Atribute
Regim Inaltime 1 / P + 2
Etaj 1
Nr. bai 2
Suprafata comerciala 122 mp
Suprafata depozit 0 mp
Disponibila incepand cu 2023-02-20
Judet Bucuresti
Oras/ Sector Sector 1
Zona Dorobanti
Gps lat 44.463322
Gps lng 26.095351
Commercial space type Casa/vila
Facilitati
Sistem de alarma
Supraveghere 24/7
Parchet
Apometre
Gresie
Telefon
Faianta
Gaz
WC serviciu
Spatiu comercial Dorobanti parter
Proprietate inchiriata
Ai o proprietate similara? Vinde-o cu noi.
  Vinde apartament  
 
  
  
  
  
  
  
  
  
  
  
  
   
   
   
   
   
  
  
   
   
   
   
  