Dorobanti 139.64 mp 0 mp

SVN Romania va propune spre inchiriere un spatiu de birouri, in zona Dorobanti - Piata Romana.

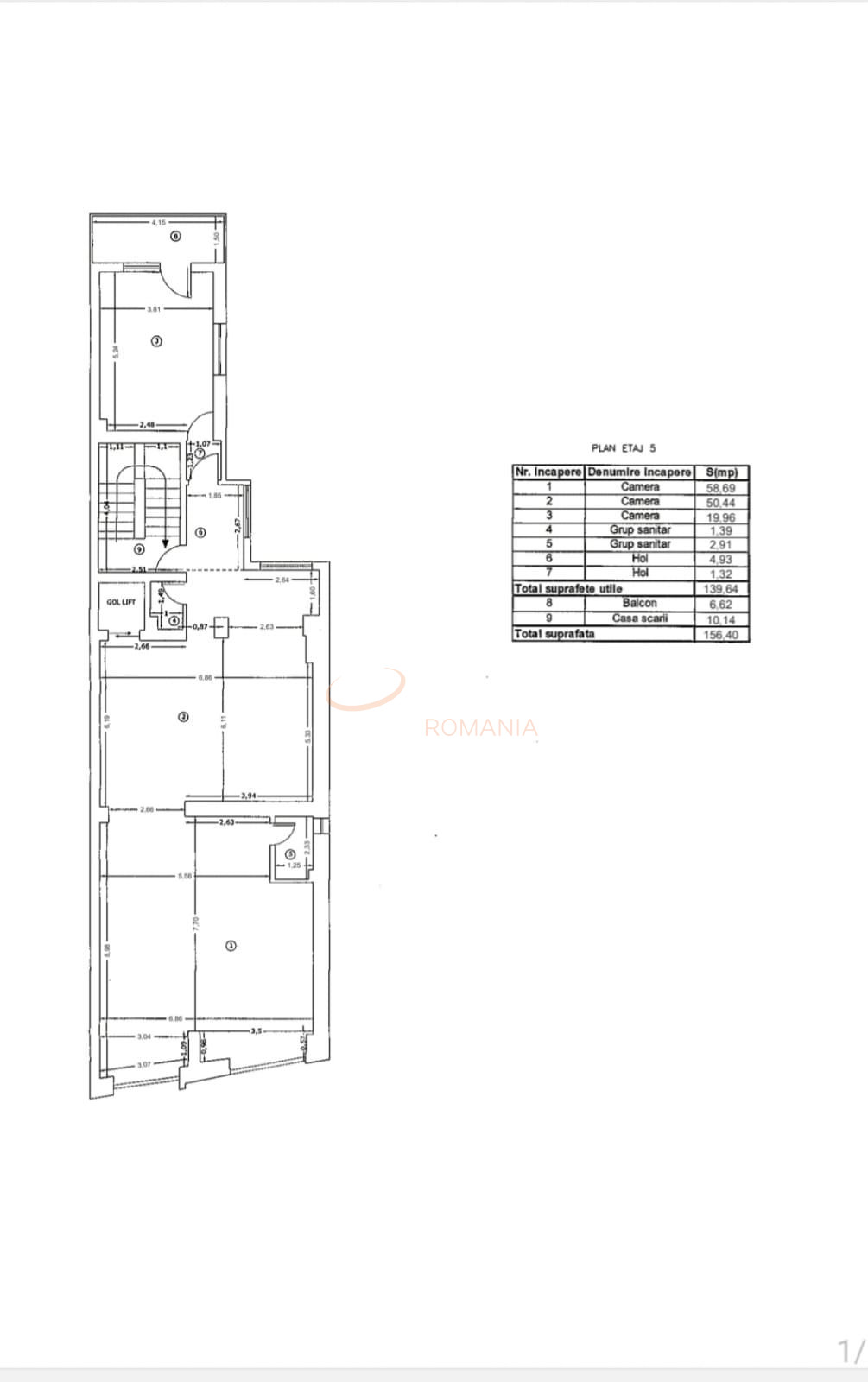
Spatiul este situat la etajul 4, intr-o cladire de birouri construita in anul 2010, semidecomandat, cu o suprafata utila de 139.64 mp cu un balcon de 6.62 mp.

Acesta este complet finisat si amenajat, dispune de 3 camere, inchise si open space, chicineta, 2 grupuri sanitare si 3 unitati de aer conditionat.

Accesul in spatiu se poate face atat pe scari cat si cu lift-ul (functioneaza doar cu cartela).

Imobilul este asigurat, are autorizatie ISU si acces controlat, exista portar in incinta cladirii.

Locuri de parcare disponibile la pretul de 150 euro/luna.

Pentru mai multe informatii sau pentru programarea vizionarilor, contactul meu va sta la dispozitie!

Regim Inaltime 4 / P + 7

Etaj 4

Nr. bai 1

Suprafata comerciala 139.64 mp

Suprafata depozit 0 mp

Recent renovat 1

Disponibila incepand cu 2025-06-05

Judet Bucuresti

Oras/ Sector Sector 1

Zona Dorobanti

Gps lat 44.450664

Gps lng 26.096440

Commercial space type Cladire de birouri

Supraveghere 24/7

Internet prin fibra optica

Facilitati pentru persoane cu handicap

Interfon

Termoizolatie

Lift

Detector de gaze

Supraveghere video

Detector de incendiu

Receptie

Curent electric

Geamuri termopan

Repartitoare

Apometre

Gresie

Loc parcare subteran

Gaz

Incalzire proprie

WC serviciu

Mobilat

Aer conditionat

Bloc reabiliat termic

Bucatarie mobilata

Broker Imobiliar

Cristian Vasile , Consultant imobiliar Vezi toate proprietatile

0317100200

Spatiu de Birouri I 140 MP I Dorobanti - Romana

Pret inchiriere
2.650 € /luna

Telefon Consultant imobiliar
0317100200

Cod: REC3001397

Proprietati similare

Bucuresti, Ultracentral, Calea Victoriei

Spatiu comercial 112 mp

5

2.650 EUR/luna

Detalii

Bucuresti, Ultracentral, Piata Universitatii

Spatiu comercial 180 mp

P

2.750 EUR/luna

Detalii

Bucuresti, Ultracentral, Victoriei

Spatiu comercial 390 mp

P

2.600 EUR/luna

Detalii

Bucuresti, Kiseleff

Spatiu comercial 475 mp

P

2.700 EUR/luna

Detalii

Bucuresti, Tei, Lacul Tei

Spatiu comercial 139.12 mp

P

2.900 EUR/luna

Detalii

Bucuresti, Herastrau

Spatiu comercial 85 mp

P

2.635 EUR/luna

Detalii

Bucuresti, Crangasi

Spatiu comercial 120 mp

P

2.700 EUR/luna

Detalii

Bucuresti, Cotroceni

Spatiu comercial 92 mp

P

2.650 EUR/luna

Detalii
Spatii-comerciale inchiriate in Dorobanti, Bucuresti Spatii-comerciale de inchiriere in Dorobanti, Bucuresti

Afla primul de cele mai bune oferte
inainte sa ajunga pe piata

Aboneaza-te la newsletter

Aboneaza-te la notificari