Dorobanti 180 mp 0 mp

SVN Romania va propune spre inchiriere un apartament de 5 camere in zona Dorobanti - Primaverii, in apropiere de Televiziunea Romana.

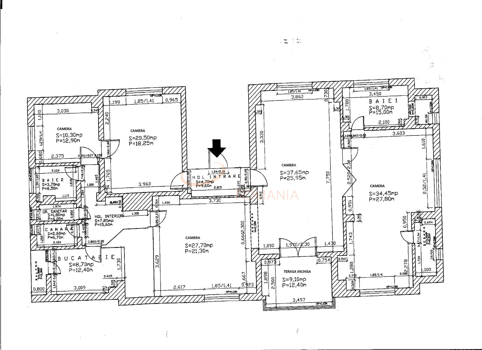
Apartamentul este situat la etajul 1/3, intr-o cladire construita in 1945, semidecomandat, cu o suprafata utila de 180 mp, terasa inchisa de 9 mp si o logie de 1,90 mp.

Apartamentul este situat intr-o vila interbelica.

Spatiul este complet igienizat si pregatit pentru activitati de birou. Este disponibil imediat pentru inchiriere.

Costurile de intretinere sunt foarte mici.

Locatia este premium - inconjurata de o multime de firme, magazine si restaurante, in apropiere de statia de metrou Aviatorilor.

Statia de metrou Aviatorilor este situata la o distanta pietonala de aprox. 5 minute.

Piata Dorobanti este situata la cativa pasi distanta de locatie.

Parcul Herastrau se afla la mai putin de cinci minute de mers pe jos.

Pentru mai multe informatii sau programarea vizionarilor, contactul meu va sta la dispozitie!

Regim Inaltime 1 / P + 3

Etaj 1

Nr. bai 3

Suprafata comerciala 180 mp

Suprafata depozit 0 mp

Recent renovat 1

Disponibila incepand cu 2025-07-25

Judet Bucuresti

Oras/ Sector Sector 1

Zona Dorobanti

Gps lat 44.462161

Gps lng 26.092590

Commercial space type Casa/vila

Geamuri termopan

Balcon inchis

Apometre

Gresie

Faianta

Gaz

Incalzire proprie

WC serviciu

Mobilat

Aer conditionat

Bucatarie mobilata

Baie privata

Spatiu de depozitare

Interfon

Internet Wireless

Internet prin fibra optica

Curent electric

Broker Imobiliar

Cristian Vasile , Consultant imobiliar Vezi toate proprietatile

0317100200

Spatiu birouri I 5 camere I Dorobanti - Primaverii I De inchiriat

Pret inchiriere
1.900 € /luna

Telefon Consultant imobiliar
0317100200

Cod: REC0003087

Proprietati similare

Bucuresti, Dorobanti

Spatiu comercial 170 mp

1

2.050 EUR/luna

Detalii

Bucuresti, Dorobanti

Spatiu comercial 100 mp

D

1.800 EUR/luna

Detalii
Exclusiv Discount

Bucuresti, Dorobanti

Spatiu comercial 90 mp

P

1.800 EUR/luna

Detalii

Bucuresti, Floreasca, Barbu Vacarescu

Spatiu comercial 112.6 mp

3

1.896 EUR/luna

Detalii

Bucuresti, Floreasca, Barbu Vacarescu

Spatiu comercial 104.45 mp

4

1.820 EUR/luna

Detalii

Bucuresti, 1 Mai, Domenii

Spatiu comercial 115 mp

P

1.800 EUR/luna

Detalii

Bucuresti, Ultracentral, Centrul Istoric (s2)

Spatiu comercial 55 mp

P

2.000 EUR/luna

Detalii

Bucuresti, Baneasa

Spatiu comercial 72 mp

P

1.949 EUR/luna

Detalii
Spatii-comerciale inchiriate in Dorobanti, Bucuresti Spatii-comerciale de inchiriere in Dorobanti, Bucuresti

Afla primul de cele mai bune oferte
inainte sa ajunga pe piata

Aboneaza-te la newsletter

Aboneaza-te la notificari