Soseaua Nordului 301 mp 30 mp

SVN Romania va propune spre inchiriere un spatiu comercial, in zona Herastrau, chiar pe soseaua Nordului.

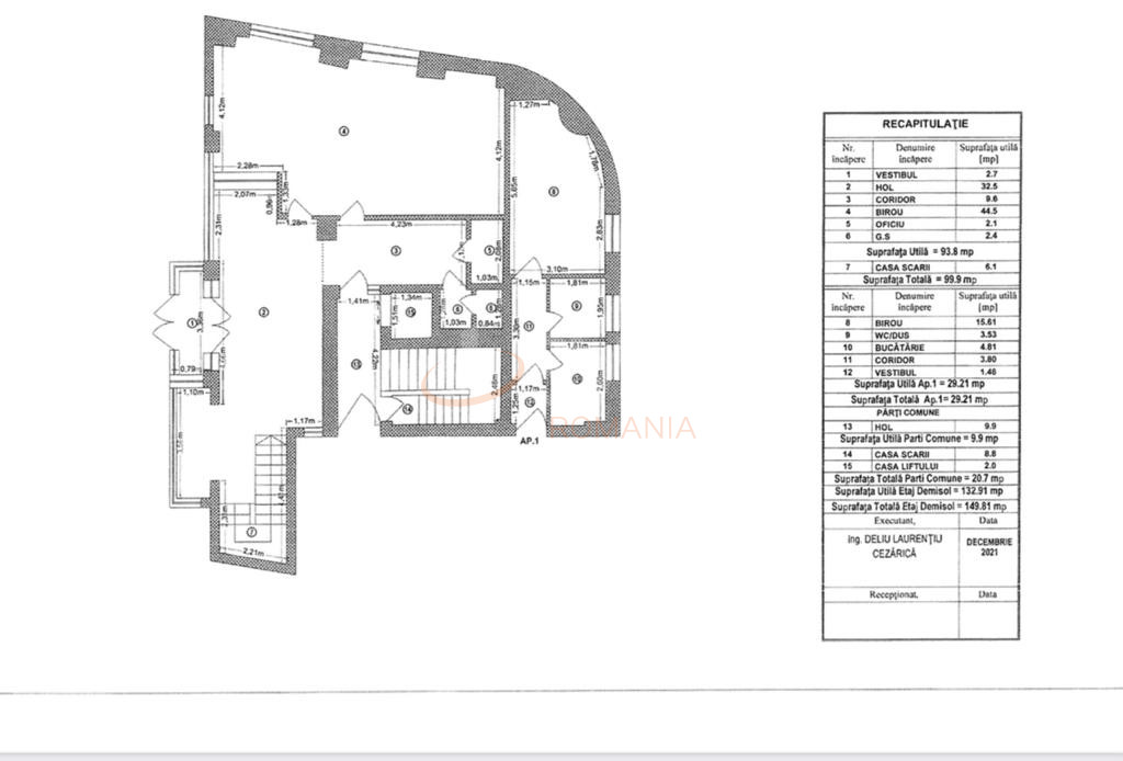
Spatiul are 300 mp utili, dispusi pe 2 nivele (parter 133mp si 168mp la mezanin). De asemenea mai sunt disponibili 30 mp in spate, pentru depozit/arhiva/bucatarie angajati/etc in functie de necesitatile clientilor.

Pret chirie: 20€ mp
Suprafata totala: 338mp
Terasa: 30mp
Posibilitate amenajare gradina/curte/terasa de aprox 100 mp

Spatiul este complet dotat pentru a desfasura activitatea, si se poate renova in functie de cerintele viitorilor chiriasi.

Iar vadul comercial este foarte bun fiind pozitionat fix pe soseaua Nordului, zona exclusivista, care genereaza trafic.

Pentru mai multe detalii, nu ezitati sa ne contactati.

Regim Inaltime P / P + 1

Etaj P

Nr. bai 3

Suprafata comerciala 301 mp

Suprafata depozit 30 mp

Disponibila incepand cu 2022-08-01

Judet Bucuresti

Oras/ Sector Sector 1

Zona Soseaua Nordului

Gps lat 44.480163

Gps lng 26.086775

Nr. terase 1

Commercial space type Bloc

Detector de incendiu

Baie privata

Internet prin fibra optica

Termoizolatie

Detector de gaze

Spatiu de depozitare

Facilitati pentru persoane cu handicap

Cablu TV

Internet Wireless

Lift

Supraveghere video

Receptie

Curent electric

Interfon

Sistem de alarma

Geamuri termopan

Repartitoare

Parchet

Apometre

Boxa

Gresie

Telefon

Faianta

Gaz

Incalzire proprie

WC serviciu

Bloc reabiliat termic

Aer conditionat

Bucatarie mobilata

Supraveghere 24/7

Spatiu 300 mp Herastrau Soseaua Nordului

Proprietate inchiriata

Ai o proprietate similara? Vinde-o cu noi.
Vinde apartament

Cod: REC3000447

Proprietati similare

Bucuresti, Herastrau, Nordului

Spatiu comercial 350 mp

6

6.500 EUR/luna

Detalii

Bucuresti, Floreasca, Barbu Vacarescu

Spatiu comercial 336.35 mp

2

5.563 EUR/luna

Detalii
Discount

Bucuresti, Mosilor

Spatiu comercial 192 mp

P

5.500 EUR/luna

Detalii

Bucuresti, Militari, Grozavesti

Spatiu comercial 600 mp

2

5.400 EUR/luna

Detalii

Bucuresti, Pipera

Spatiu comercial 236.5 mp

P

6.000 EUR/luna

Detalii

Bucuresti, Mosilor

Spatiu comercial 318 mp

P

5.500 EUR/luna

Detalii
Exclusiv Discount

Bucuresti, Unirii, Piata Unirii (s3)

Spatiu comercial 380 mp

P

6.000 EUR/luna

Detalii
Exclusiv Discount

Bucuresti, Parcul Carol

Spatiu comercial 320 mp

P

5.900 EUR/luna

Detalii
Spatii-comerciale inchiriate in Herastrau, Bucuresti Spatii-comerciale de inchiriere in Herastrau, Bucuresti

Afla primul de cele mai bune oferte
inainte sa ajunga pe piata

Aboneaza-te la newsletter

Aboneaza-te la notificari