Cantemir 120.27 mp 0 mp

SVN Residentiaist Floreasca va prezinta spre inchiriere parterul unei vile interbelice in stil baroc, situata in zona Budapesta — un spatiu impresionant prin eleganta si rafinament, ideal pentru un concept HoReCa premium sau o investitie sigura.

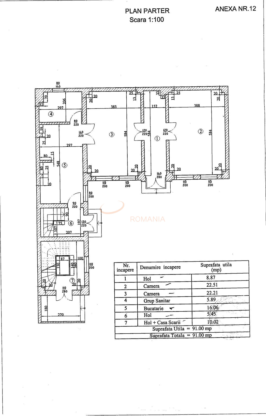
Parterul gazduieste un restaurant de lux complet echipat, pregatit pentru preluare imediata. Spatiul functioneaza intr-un cadru deosebit, beneficiind de o terasa spatioasa si de toate autorizatiile necesare desfasurarii activitatii. Este alegerea perfecta pentru un operator care isi doreste o locatie reprezentativa, gata de utilizare.

Reconsolidata in anul 2008, proprietatea imbina farmecul arhitecturii istorice cu dotari moderne si finisaje de lux, care sporesc valoarea si atractivitatea spatiului.

Intrarea separata si contorizarea individuala pentru utilitati ofera flexibilitate si transparenta in administrare, facand din aceasta proprietate o solutie excelenta pentru activitati din segmentul HoReCa.

Cu o deschidere generoasa de 15 metri la strada, spatiul beneficiaza de vizibilitate excelenta, atragand un flux constant de clienti si oferind premise solide pentru succesul afacerii.

Exista, de asemenea, posibilitatea de achizitie a intregului imobil, valoarea acestuia fiind de 650.000 Euro.

Pentru mai multe detalii si pentru organizarea unei vizionari, va invitam sa ne contactati!

Regim Inaltime P / S + P + 2

Etaj P

Nr. bai 3

Suprafata comerciala 120.27 mp

Suprafata depozit 0 mp

Recent renovat 1

Disponibila incepand cu 2025-01-13

Judet Bucuresti

Oras/ Sector Sector 4

Zona Cantemir

Gps lat 44.420905

Gps lng 26.104296

Nr. terase 1

Commercial space type Casa/vila

Curent electric

Facilitati pentru persoane cu handicap

Baie privata

Supraveghere 24/7

Receptie

Spatiu de depozitare

Detector de incendiu

Supraveghere video

Detector de gaze

Sistem de alarma

Termoizolatie

Internet Wireless

Internet prin fibra optica

Cablu TV

Geamuri termopan

Parchet

Boxa

Gresie

Telefon

Faianta

Gaz

Incalzire proprie

WC serviciu

Mobilat

Aer conditionat

Bucatarie mobilata

Broker Imobiliar

Alina Rezmerita , Consultant imobiliar Vezi toate proprietatile

0317100200

Restaurant l Vila Interbelica l consolidata

Pret inchiriere
3.000 € /luna

Telefon Consultant imobiliar
0317100200

Cod: REC3001582

Proprietati similare

Bucuresti, Ultracentral, Piata Universitatii

Spatiu comercial 180 mp

P

2.750 EUR/luna

Detalii

Bucuresti, 13 Septembrie

Spatiu comercial 162.4 mp

P

3.240 EUR/luna

Detalii

Bucuresti, Cotroceni

Spatiu comercial 90.2 mp

P

2.700 EUR/luna

Detalii

Bucuresti, Ultracentral, Calea Victoriei

Spatiu comercial 230 mp

P

3.000 EUR/luna

Detalii

Bucuresti, Gara De Nord, Grivita

Spatiu comercial 757 mp

P

3.300 EUR/luna

Detalii

Bucuresti, Ultracentral, Piata Victoriei

Spatiu comercial 140 mp

6

3.190 EUR/luna

Detalii

Bucuresti, Ultracentral, Piata Victoriei

Spatiu comercial 130 mp

4

2.950 EUR/luna

Detalii

Bucuresti, Cotroceni

Spatiu comercial 173.2 mp

P

3.000 EUR/luna

Detalii
Spatii-comerciale inchiriate in Parcul Carol, Bucuresti Spatii-comerciale de inchiriere in Parcul Carol, Bucuresti

Afla primul de cele mai bune oferte
inainte sa ajunga pe piata

Aboneaza-te la newsletter

Aboneaza-te la notificari