Parcul Carol 126 mp 0 mp

Avem placerea de a va oferi spre inchiriere un spatiu comercial, stradal, aflat la parterul unei vile P+1.

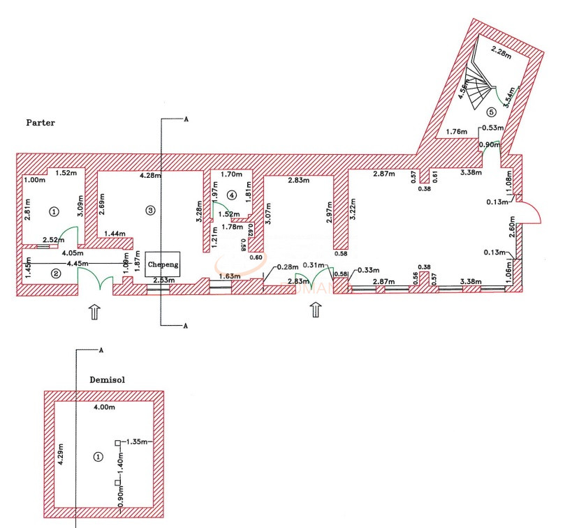
Spatiul este compus dintr-o zona open space, zona de receptie, 5 camere spatioase, 1 toaleta, zone de depozitare, suprafata utila totala fiind de 126 mp.

Se preteaza pentru orice tip de business, inclusiv sediu birouri. Spatiul a fost folosit pana in prezent ca salon de infrumusetare.

Spatiul poate fi inchiriat doar parter sau impreuna cu foisorul aflat la etajul superior.
Pretul spatiului + foisor este de 2130.

Spatiul dispunde 2 intrati stradale.Este dotat cu 2 aere conditionate si are centrala proprie pentru incalzire.

Amplasamentul este de exceptie, la cateva minute fata de Parcul Carol.

Nu detinem informatii despre clasa energetica in care este incadrat imobilul.

Pentru mai multe detalii si vizionari va stau la dispozitie.

Regim Inaltime P / 1

Etaj P

Nr. bai 1

Suprafata comerciala 126 mp

Suprafata depozit 0 mp

Recent renovat 1

Disponibila incepand cu 2021-02-11

Judet Bucuresti

Oras/ Sector Sector 4

Zona Parcul Carol

Gps lat 44.419628

Gps lng 26.093531

Commercial space type Casa/vila

Curent electric

Spatiu de depozitare

Internet Wireless

Baie privata

Sistem de alarma

Geamuri termopan

Parchet

Gresie

Faianta

Gaz

Aer conditionat

Spatiu comercial stradal Parcul Carol

Proprietate inchiriata

Ai o proprietate similara? Vinde-o cu noi.
Vinde apartament

Cod: REC3000133

Proprietati similare

Bucuresti, Dorobanti, Capitale

Spatiu comercial 96.74 mp

M

1.600 EUR/luna

Detalii

Bucuresti, Militari, Grozavesti

Spatiu comercial 115 mp

14

1.495 EUR/luna

Detalii

Bucuresti, Militari, Grozavesti

Spatiu comercial 178.41 mp

3

1.606 EUR/luna

Detalii

Bucuresti, Dorobanti

Spatiu comercial 85 mp

1

1.500 EUR/luna

Detalii

Bucuresti, Colentina

Spatiu comercial 200 mp

P

1.600 EUR/luna

Detalii
Spatii-comerciale inchiriate in Parcul Carol, Bucuresti Spatii-comerciale de inchiriere in Parcul Carol, Bucuresti

Afla primul de cele mai bune oferte
inainte sa ajunga pe piata

Aboneaza-te la newsletter

Aboneaza-te la notificari