Voluntari 212.08 mp 0 mp

SVN Residentialist Pipera va propune spre vanzare un spatiu comercial situat la etajul 1 al unui imobil P+2. Proprietatea este potrivita pentru diverse activitati precum salon de infrumusetare, sala de antrenament, birouri sau alte servicii comerciale. Spatiul dispune de instalatie de gaz proprie si este format din doua unitati separate printr-un perete de rigips, care pot fi achizitionate impreuna sau individual, in functie de nevoile cumparatorului.

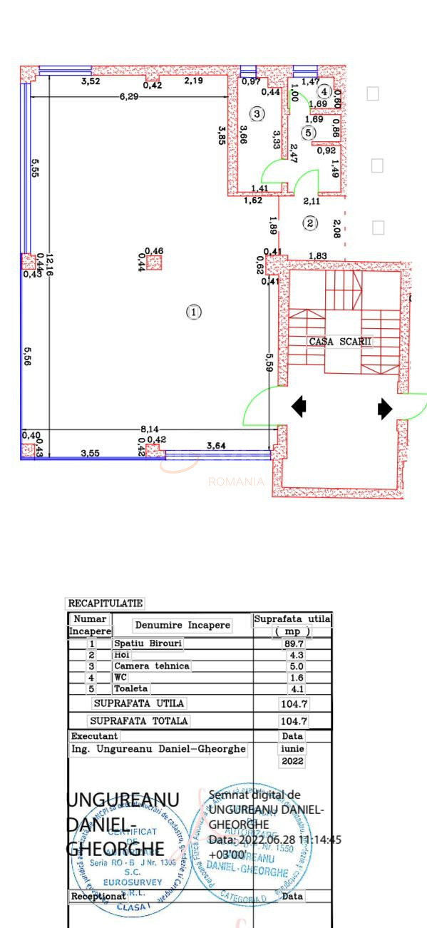
Etajul beneficiaza de un flux redus de persoane, existand doar doua unitati, ceea ce asigura intimitate si un mediu de lucru linistit. Proprietatea dispune si de 4 locuri de parcare dedicate, un avantaj important pentru angajati, clienti sau colaboratori.

Amplasarea este excelenta: imobilul se afla la aproximativ 100 de metri de intrarea pe autostrada Bucuresti–Ploiesti, iar statia de autobuz este situata chiar in fata cladirii, oferind acces facil la mijloacele de transport in comun. De asemenea, cladirea este dotata cu sistem de supraveghere video, asigurand un nivel ridicat de siguranta.

La parterul imobilului functioneaza un Mega Image cu program pana la ora 24:00, iar dupa aceasta ora accesul in cladire se face doar pe baza de chei, moment din care sistemul de alarma se activeaza automat.

Pretul este afisat cu TVA inclus, iar proprietatea permite regim de taxare inversa, oferind flexibilitate pentru persoanele juridice. Este o oportunitate excelenta pentru investitori sau antreprenori care cauta un spatiu versatil, usor accesibil si cu vizibilitate foarte buna.

SVN Residentialist Pipera va asteapta la vizionare.

Regim Inaltime 1 / P + 2

Etaj 1

Nr. bai 4

Suprafata comerciala 212.08 mp

Suprafata depozit 0 mp

Disponibila incepand cu 2025-11-18

Judet Ilfov

Oras/ Sector Est

Zona Voluntari

Gps lat 44.494536

Gps lng 26.145279

Commercial space type Cladire de birouri

Curent electric

Sistem de alarma

Supraveghere video

Spatiu de depozitare

Supraveghere 24/7

Geamuri termopan

Parchet

Gresie

Faianta

Loc parcare exterior

WC serviciu

Aer conditionat

Valoare proprietate (€)

Perioada (ani)

Procent avans (82.500 €)


Suma creditata 467.500

Dobanda 4.9%

Rata lunara 11.558 lei

Broker Imobiliar

Adriana Firica , Consultant imobiliar Vezi toate proprietatile

0317100200

SPATIU COMERCIAL I PIPERA I VOLUNTARI

Pret vanzare + TVA
550.000 €

Telefon Consultant imobiliar
0317100200

Cod: REC3001626
Spatii-comerciale vandute in Est, Ilfov Spatii-comerciale de vanzare in Est, Ilfov

Afla primul de cele mai bune oferte
inainte sa ajunga pe piata

Aboneaza-te la newsletter

Aboneaza-te la notificari