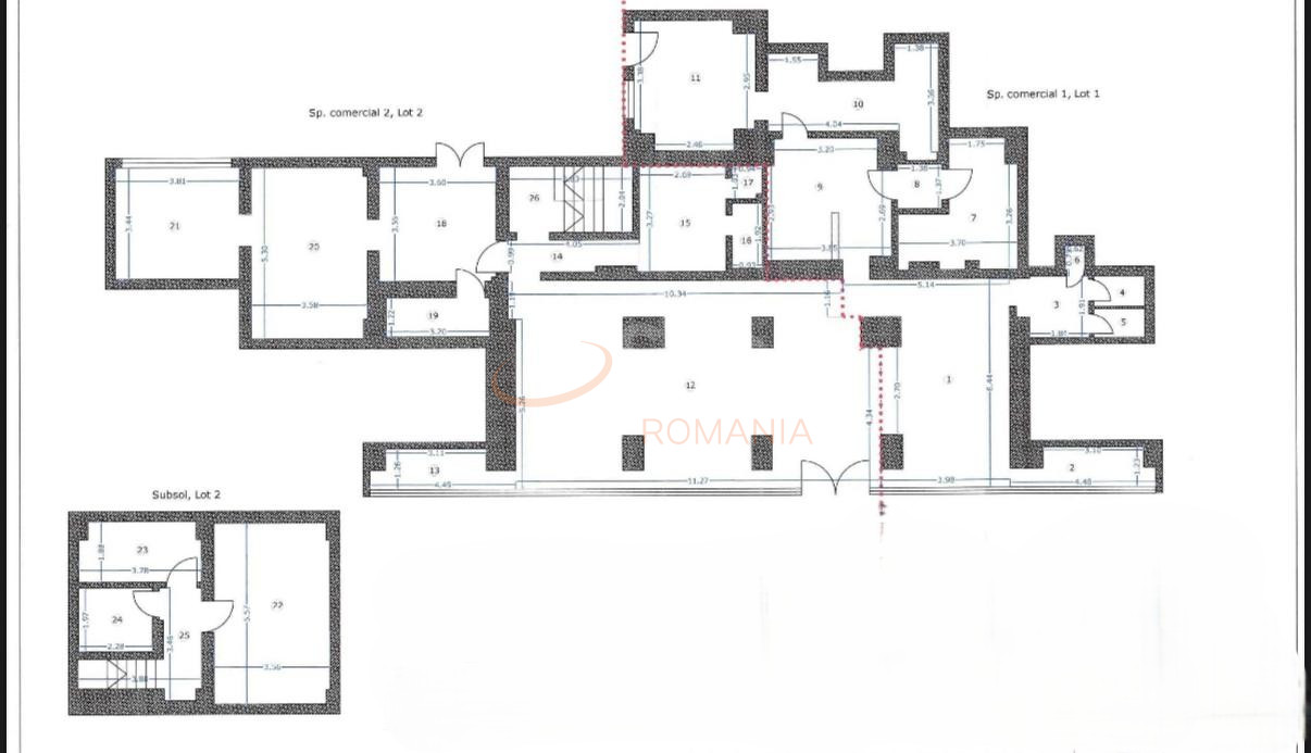
Grivita 272 mp 0 mp

SVN Residentialist Floreasca va propune spre vanzare un spatiu comercial cu o suprafata de 272 mp, situat pe Calea Grivitei, intr-o zona cu trafic intens si excelenta vizibilitate stradala. Proprietatea se afla imediat langa statia de metrou Grivita, oferind acces facil atat pietonal, cat si auto.

In vecinatate se regasesc Spitalul de Chirurgie Plastica, MedLife, unitati de invatamant (scoli si licee), precum si numeroase spatii de birouri si blocuri de locuinte, ceea ce asigura un flux constant de potentiali clienti.

Spatiul este pretabil pentru activitati comerciale diverse – supermarket, farmacie, magazin de proximitate, showroom sau centru de servicii.
Imobilul necesita renovare, oferind insa flexibilitate totala pentru compartimentare si amenajare conform cerintelor specifice ale viitorului chirias sau proprietar.

Detalii principale:

- Suprafata totala: 272 mp

- Acces direct din strada, vitrina generoasa

- Pozitionare excelenta – langa statia de metrou Grivita

In apropiere: Spitalul de Chirurgie Plastica, MedLife, scoli, licee

Trafic pietonal si auto intens

Toate utilitatile disponibile

Necesita renovare

Pretabil pentru: supermarket, farmacie, magazin, showroom, servicii

Pentru mai multe detalii si vizionari nu ezitati sa ne contactati .

Regim Inaltime P / P + 14

Etaj P

Nr. bai 4

Suprafata comerciala 272 mp

Suprafata depozit 0 mp

Deschidere fereastra 23.50

Disponibila incepand cu 2025-10-15

Judet Bucuresti

Oras/ Sector Sector 1

Zona Grivita

Gps lat 44.462958

Gps lng 26.056834

Commercial space type Bloc

Curent electric

Internet prin fibra optica

Internet Wireless

Spatiu de depozitare

WC serviciu

Bloc reabiliat termic

Fara imbunatatiri

Valoare proprietate (€)

Perioada (ani)

Procent avans (108.000 €)


Suma creditata 612.000

Dobanda 4.9%

Rata lunara 15.131 lei

Broker Imobiliar

Alina Rezmerita , Consultant imobiliar Vezi toate proprietatile

0317100200

Spatiu comercial Calea Grivitei l 272 mp

Pret vanzare
720.000 €

Telefon Consultant imobiliar
0317100200

Cod: REC3001575

Proprietati similare

Bucuresti, Cotroceni

Spatiu comercial 337.9 mp

P

760.000 EUR

Detalii

Bucuresti, Pipera

Spatiu comercial 627 mp

10

750.000 EUR

Detalii

Bucuresti, Pantelimon, Industriilor

Spatiu comercial 638 mp

3

780.000 EUR

Detalii
Spatii-comerciale vandute in Gara De Nord, Bucuresti Spatii-comerciale de vanzare in Gara De Nord, Bucuresti

Afla primul de cele mai bune oferte
inainte sa ajunga pe piata

Aboneaza-te la newsletter

Aboneaza-te la notificari