Herastrau 44 mp 0 mp

SVN Residentialist vă propune spre achiziție un spațiu cu randament investițional atractiv, în prezent închiriat cu 1.200 Euro + TVA, reprezentând o oportunitate excelentă pentru investitori.

Separat, se poate achiziționa și locul de parcare, care este de asemenea închiriat în prezent cu 125 Euro + TVA.

Proprietatea beneficiază de o poziționare deosebită, cu vedere către piațeta complexului Win Herăstrău, vizibilă prin suprafața vitrată generoasă.

Spațiul este situat la etajul 1 (menționat în acte ca parter înalt), deasupra cafenelei Utopia. Fiind un parter înalt, accesul se realizează prin recepția principală, deservită de recepționer, fie pe scări, fie cu liftul. Din parcarea subterană există acces direct către spațiu.

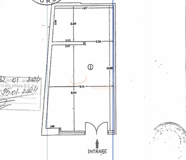
Suprafața utilă este de 44 mp și este compartimentată într-o zonă open space, cu posibilitatea de recompartimentare pentru amenajarea unui birou separat. Încălzirea se realizează prin pardoseală.

Complexul este modern și dispune de spații comune amenajate, ce contribuie la o atmosferă elegantă și primitoare, precum și de locuri de parcare subterane destinate vizitatorilor.

Ansamblul Win Herăstrău este amplasat în Cartierul Francez și se remarcă prin designul său îngrijit, modern și minimalist, fiind alcătuit din aproximativ 300 de apartamente și multiple spații comerciale.

Regim Inaltime 1 / S + P + 5

Etaj 1

Nr. bai 1

Suprafata comerciala 44 mp

Suprafata depozit 0 mp

Disponibila incepand cu 2026-02-22

Judet Bucuresti

Oras/ Sector Sector 1

Zona Herastrau

Gps lat 44.481578

Gps lng 26.089700

Nr. terase 1

Clasa energetica 1

Commercial space type Bloc

Internet Wireless

Facilitati pentru persoane cu handicap

Baie privata

Supraveghere 24/7

Receptie

Spatiu de depozitare

Detector de incendiu

Supraveghere video

Detector de gaze

Lift

Interfon

Curent electric

Cablu TV

Geamuri termopan

Apometre

Gresie

Loc parcare subteran

Faianta

Gaz

Incalzire proprie

WC serviciu

Aer conditionat

Valoare proprietate (€)

Perioada (ani)

Procent avans (33.743 €)


Suma creditata 191.208

Dobanda 4.9%

Rata lunara 4.728 lei

Broker Imobiliar

Oana Dumitrascu , Consultant imobiliar Vezi toate proprietatile

0317100200

Spatiu Comercial I Birou in Win Herastrau I Inchiriat

Pret vanzare + TVA
224.950 €

Telefon Consultant imobiliar
0317100200

Cod: REC3001719

Proprietati similare

Bucuresti, Ultracentral, Cismigiu

Spatiu comercial 76 mp

P

245.000 EUR

Detalii

Bucuresti, 13 Septembrie

Spatiu comercial 125.2 mp

P

215.000 EUR

Detalii

Bucuresti, Drumul Taberei

Spatiu comercial 41 mp

P

219.000 EUR

Detalii
Spatii-comerciale vandute in Herastrau, Bucuresti Spatii-comerciale de vanzare in Herastrau, Bucuresti

Afla primul de cele mai bune oferte
inainte sa ajunga pe piata

Aboneaza-te la newsletter

Aboneaza-te la notificari