Pipera 90.13 mp 0 mp

Va supunem atentiei o oportunitate investitionala intr-una dintre cele mai apreciate zone din nordul capitalei, cu o puternica si densa masa de locutori, Pipera.

Cartierul Pipera este o zona in stil suburban a Bucurestiului, cu o comunitate extraordinara de oameni ce formeaza una dintre cele mai valoroase si populare zone rezidentiale disponibile pe piata imobiliara in acest moment. Situat in partea de nord-est a Bucurestiului, in cartierul Pipera veti gasi multe sedii de birouri, scoli private internationale, complexe rezidentiale moderne si o arhitectura de calitate remarcabila.

Administrativ, zona Pipera face parte din orasul Voluntari, dar datorita apropierii de Bucuresti poate fi considerata parte integranta din acesta, marginita la Nord de Soseaua de Centura si comuna Tunari, la Est de orasul Voluntari, la Vest de DN1, Baneasa Shopping City si Scoala Franceza, iar la Sud de Lacul Tei.

De mentionat sunt, de asemenea, centre comerciale si zone comerciale extinse: Baneasa Shopping City, Promenada Mall, Pipera Plaza, Jolie Ville. Zona beneficiaza de o retea dezvoltata de magazine, cluburi sportive, locuri de joaca si nenumarate optiuni de divertisment pentru familii, lucruri care transforma Pipera int-unul dintre cele mai cautate locuri pentru activitati comerciale!

În ceea ce priveste transportul public, cea mai apropia statie de metrou este statia de metrou Pipera, care face legatura rapid cu centrul Bucurestiului in cateva minute, dar exista si liniile STB.

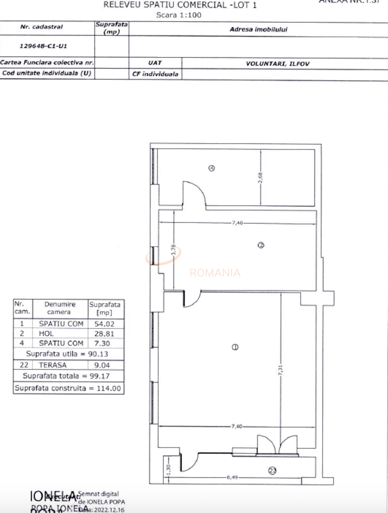
Va prezentam un spatiu comercial situat la parter, cu suprafata de 90 mp la care se adauga si o terasa de 9 mp, inaltime generosa si lumina naturala din belsug.

Chiriasul va beneficia de 2 locuri de parcare.

Compartimentarea acestuia se poate vedea in schita, este format din 3 incaperi.

Spatiul reprezinta atat o oportunitate investionala cat si locatia ideala in vederea desfasurarii activitatii comerciale.

Certificatul energetic va fi disponibil la momentul vanzarii.

Pentru mai multe detalii dar si pentru stabilirea unei vizionari, nu ezitati sa ma contactati!

Regim Inaltime P / P + 8

Etaj P

Nr. bai 1

Suprafata comerciala 90.13 mp

Suprafata depozit 0 mp

Disponibila incepand cu 2023-07-01

Judet Bucuresti

Oras/ Sector Sector 1

Zona Pipera

Gps lat 44.493890

Gps lng 26.128190

Commercial space type Bloc

Curent electric

Lift

Receptie

Internet prin fibra optica

Detector de gaze

Interfon

Supraveghere video

Geamuri termopan

Loc parcare exterior

Spatiu Comercial Pipera

Proprietate inchiriata

Ai o proprietate similara? Vinde-o cu noi.
Vinde apartament

Cod: REC3000819

Proprietati similare

Bucuresti, Baneasa

Spatiu comercial 193 mp

P

15 EUR/luna

Detalii

Bucuresti, Floreasca

Spatiu comercial 350 mp

3

15 EUR/luna

Detalii

Bucuresti, Floreasca

Spatiu comercial 320 mp

2

15 EUR/luna

Detalii

Bucuresti, Dorobanti

Spatiu comercial 334 mp

1

14 EUR/luna

Detalii

Bucuresti, Dacia, Gradina Icoanei

Spatiu comercial 2444 mp

P

16 EUR/luna

Detalii

Bucuresti, Ultracentral, Cismigiu

Spatiu comercial 490 mp

2

15 EUR/luna

Detalii

Bucuresti, Cotroceni

Spatiu comercial 870 mp

P

15 EUR/luna

Detalii
Spatii-comerciale inchiriate in Pipera, Bucuresti Spatii-comerciale de inchiriere in Pipera, Bucuresti

Afla primul de cele mai bune oferte
inainte sa ajunga pe piata

Aboneaza-te la newsletter

Aboneaza-te la notificari