Tineretului 630 mp 100 mp

SVN Romania va propune spre vanzare un spatiu comercial aflat in imediata propriere a Parcului TIneretului si a Parcului Carol.

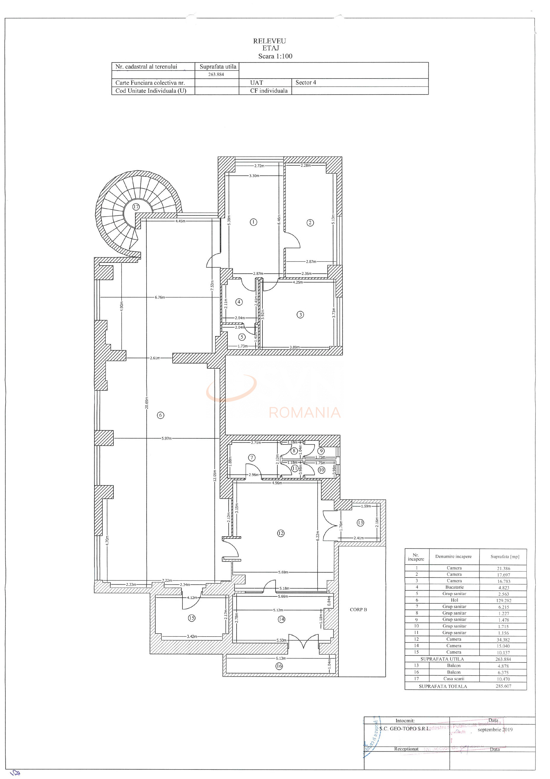
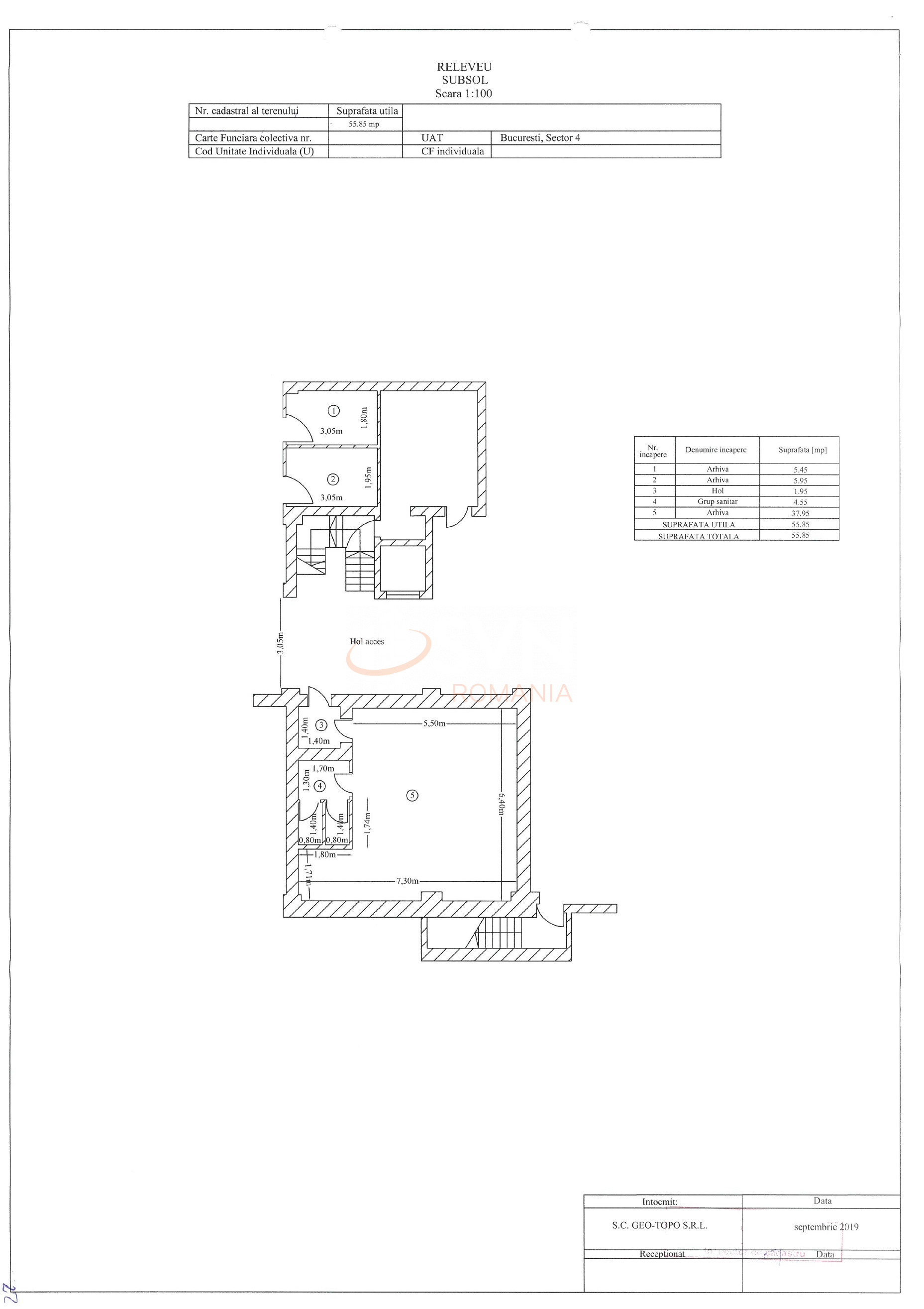
Spatiu face parte dintr-un imobil S+P+10 construit in anul 2001 si este compus compus din teren in cota indiviza de 626 mp, o cladire corp A alcatuita din
subsol, parter si etaj 1 si o cladire corp B, dispusa pe subsol si parter, avand o suprafata construita de 757 mp, din care 630 mp utili.

Cladirea este de tip cadre de beton si caramida, compartimentarile interioare fiind realizate din beton si rigips, iar tamplaria exterioara este metalica. Camerele dispun de zugraveli lavabile, iar pardoselile sunt mixte mocheta si marmura.

Proprietatea se vinde impreuna cu actualul chirias, situat la subsol si parter. Spatiu situat la etaj se poate inchiria ca sediu de firma, fiind pretabil pentru multiple activitati.

Regim Inaltime P / S + P + 10

Etaj P

Nr. bai 10

Suprafata comerciala 630 mp

Suprafata depozit 100 mp

Deschidere fereastra 10.00

Disponibila incepand cu 2022-04-18

Judet Bucuresti

Oras/ Sector Sector 4

Zona Tineretului

Gps lat 44.410608

Gps lng 26.099452

Nr. terase 2

Commercial space type Centru comercial

Curent electric

Internet Wireless

Supraveghere video

Baie privata

Internet prin cablu

Sistem de alarma

Detector de incendiu

Cablu TV

Internet prin fibra optica

Detector de gaze

Spatiu de depozitare

Geamuri termopan

Repartitoare

Parchet

Apometre

Boxa

Gresie

Telefon

Faianta

Gaz

Loc parcare exterior

Incalzire proprie

WC serviciu

Tineretului - spatiu comercial 757 mp

Proprietate vanduta

Ai o proprietate similara? Vinde-o cu noi.
Vinde apartament

Cod: REC3000230

Proprietati similare

Bucuresti, Unirii, Unirii (s3)

Spatiu comercial 137 mp

P

900.000 EUR

Detalii

Bucuresti, Ferdinand, Pache Protopopescu

Spatiu comercial 549.2 mp

P

990.000 EUR

Detalii

Bucuresti, Calea Calarasilor

Spatiu comercial 195 mp

P

900.000 EUR

Detalii

Bucuresti, Ferdinand

Spatiu comercial 297 mp

P

839.000 EUR

Detalii

Bucuresti, Colentina, Bucur Obor

Spatiu comercial 213 mp

P

839.000 EUR

Detalii

Bucuresti, Dorobanti, Piata Dorobanti

Spatiu comercial 350 mp

2

970.000 EUR

Detalii
Spatii-comerciale vandute in Tineretului, Bucuresti Spatii-comerciale de vanzare in Tineretului, Bucuresti

Afla primul de cele mai bune oferte
inainte sa ajunga pe piata

Aboneaza-te la newsletter

Aboneaza-te la notificari