SVN Romania va propune spre inchiriere spatiu de birouri situat in zona Cotroceni, pe strada Zarii, intr-o locatie linistita si bine conectata la principalele artere ale orasului.
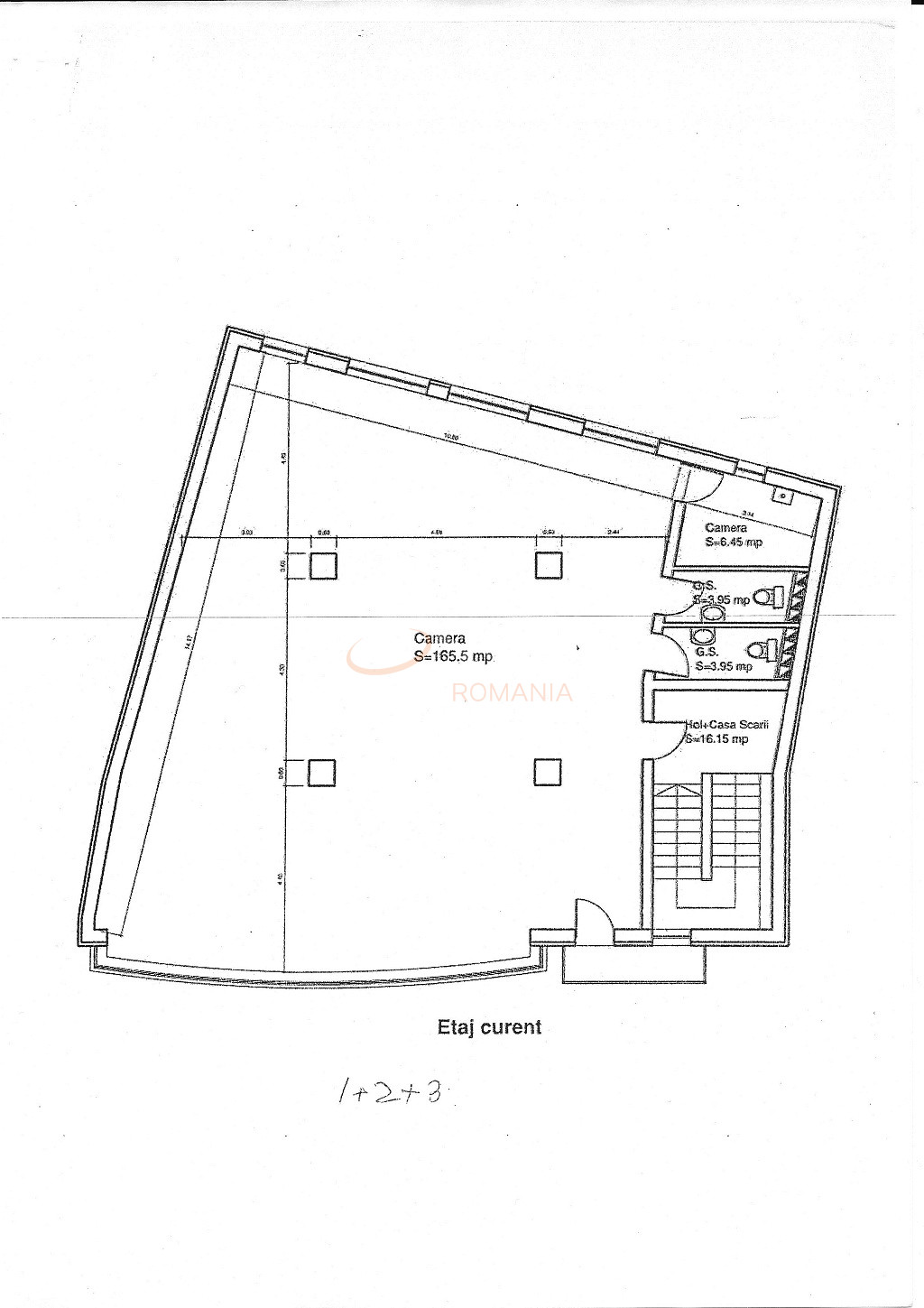
Imobilul are o suprafata totala de 870 mp, distribuita pe parter si 4 etaje, oferind flexibilitate excelenta pentru companii de diferite dimensiuni. Fiecare etaj este complet independent, beneficiind de centrala termica proprie, ceea ce permite control individual al costurilor si al confortului.
Cladirea dispune de locuri de parcare acoperite, un avantaj important in zona, precum si de o curte interioara de aproximativ 70 mp, ideala pentru zona de relaxare sau spatiu comun pentru angajati.
Spatiul este pretabil pentru sediu de firma, IT, consultanta, clinica, firma de avocatura sau alte activitati de birouri, oferind un echilibru excelent intre functionalitate, intimitate si accesibilitate, intr-unul dintre cele mai apreciate cartiere ale Bucurestiului.

Pentru mai multe detalii ne puteti contacta telefonic!

Regim Inaltime P / P + 4

Etaj P

Nr. bai 3

Suprafata comerciala 870 mp

Suprafata depozit 0 mp

Disponibila incepand cu 2015-10-14

Judet Bucuresti

Oras/ Sector Sector 5

Zona Cotroceni

Gps lat 44.437323

Gps lng 26.069317

Commercial space type Cladire de birouri

Curent electric

Baie privata

Supraveghere 24/7

Receptie

Spatiu de depozitare

Detector de incendiu

Supraveghere video

Detector de gaze

Sistem de alarma

Termoizolatie

Interfon

Internet Wireless

Internet prin fibra optica

Geamuri termopan

Repartitoare

Parchet

Apometre

Gresie

Loc parcare subteran

Faianta

Gaz

Loc parcare exterior

Incalzire proprie

WC serviciu

Aer conditionat

Bucatarie mobilata

Valoare proprietate (€)

Perioada (ani)

Procent avans (415.500 €)


Suma creditata 2.354.500

Dobanda 4.9%

Rata lunara 58.210 lei

Broker Imobiliar

Ionut Ilie , Consultant imobiliar Vezi toate proprietatile

0317100200

Spatiu Birouri - Cotroceni - Gradina Botanica

Pret vanzare
2.770.000 €

Telefon Consultant imobiliar
0317100200

Cod: REC3001713

Proprietati similare

Bucuresti, 1 Mai, Titulescu

Spatiu comercial 2937 mp

S

2.900.000 EUR

Detalii

Bucuresti, Ultracentral, Victoriei

Spatiu comercial 1200 mp

5

2.500.000 EUR

Detalii

Bucuresti, Ultracentral, Cismigiu

Spatiu comercial 801.32 mp

P

2.800.000 EUR

Detalii

Bucuresti, Herastrau

Spatiu comercial 466 mp

1

2.495.000 EUR

Detalii

Bucuresti, Militari

Spatiu comercial 5373 mp

2

2.500.000 EUR

Detalii
Spatii-comerciale vandute in Cotroceni, Bucuresti Spatii-comerciale de vanzare in Cotroceni, Bucuresti

Afla primul de cele mai bune oferte
inainte sa ajunga pe piata

Aboneaza-te la newsletter

Aboneaza-te la notificari