Militari 95 mp 0 mp

Va supunem atentiei o locatie ideala pentru un antreprenor gata sa porneasca o afacere de succes, intr-una dintre cele mai cerute zone, cu o puternica si densa masa de locutori, Militari.

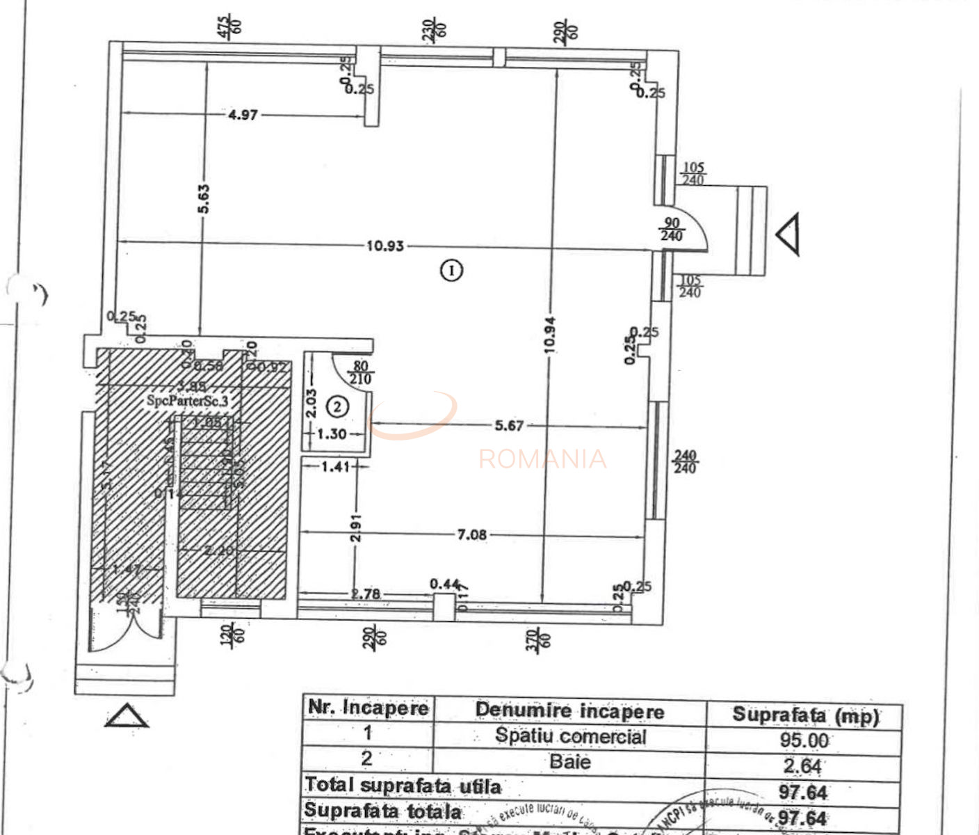
Va prezentam un spatiu comercial situat la parter, cu suprafata de 98 mp, inaltime generosa, lumina naturala si vad comercial.

Spatiul beneficiaza de 3 locuri de parcare, centrala termica proprie, aer conditionat, sistem de alarma.

Este compus din 3 sali spatioase, chicineta si grup sanitar.

Cartierul Militari are avantajul de a beneficia de o retea de transport in comun foarte bine organizata. Pe teritoriul cartierului Militari se afla nu mai putin de 5 statii de metrou: Politehnica, Lujerului, Gorjului, Pacii si Preciziei. De asemenea, cartierul este traversat de linia de metrou usor 41, dar si de troleibuze si autobuze care fac legatura cu alte zone din Bucuresti.

In jur avem sute de apartamente, case si proiecte in constructie, zona fiind in continua dezvoltare.

Spatiul reprezinta atat o oportunitate investionala cat si locatia ideala in vederea desfasurarii activitatii comerciale.

Distanta cu masina fata de metrou:

Preciziei 13
Pacii 10
Lujerului 15

Certificatul energetic va fi disponibil la momentul vanzarii.

Pentru mai multe detalii dar si pentru stabilirea unei vizionari, nu ezitati sa ma contactati!

Regim Inaltime P / P

Etaj P

Nr. bai 1

Suprafata comerciala 95 mp

Suprafata depozit 0 mp

Disponibila incepand cu 2023-10-01

Judet Bucuresti

Oras/ Sector Sector 6

Zona Militari

Gps lat 44.453148

Gps lng 25.984902

Commercial space type Bloc

Interfon

Supraveghere 24/7

Sistem de alarma

Supraveghere video

Loc parcare exterior

Incalzire proprie

WC serviciu

Mobilat

Aer conditionat

Spatiu Comercial Militari Parter cu 3 Locuri de Parcare

Proprietate vanduta

Ai o proprietate similara? Vinde-o cu noi.
Vinde apartament

Cod: REC3000885

Proprietati similare

Bucuresti, Dorobanti

Spatiu comercial 30 mp

D

167.500 EUR

Detalii
Discount

Bucuresti, Tei, Teiul Doamnei

Spatiu comercial 67 mp

P

149.000 EUR

Detalii
Discount

Bucuresti, Tei, Teiul Doamnei

Spatiu comercial 67 mp

P

149.000 EUR

Detalii
Spatii-comerciale vandute in Militari, Bucuresti Spatii-comerciale de vanzare in Militari, Bucuresti

Afla primul de cele mai bune oferte
inainte sa ajunga pe piata

Aboneaza-te la newsletter

Aboneaza-te la notificari