1 Mai 480 mp

Va propunem spre achizitie un teren situat in 1 Mai - Piata Mures. Distanta pana la statia de metrou 1 Mai este de 400 m.

Acesta se vinde cu autorizatie de constructie valabila si are urmatoarele caracteristici:

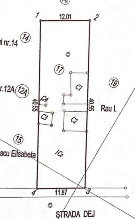
Suprafata teren = 480 mp
Deschidere = 12 m
Adancime = 40 m
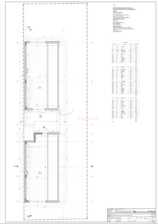
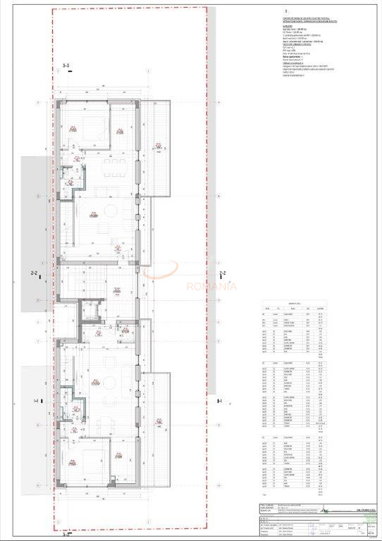
Suprafata construita desfasurata supraterana = 626 mp
Suprafta construita parter = 215 mp

Indicatori Urbanistici:
CUT max = 1,3
POT max = 45%
P + 2E + Pod
H max = 13,75 m

Nr. apartamente = 5 (un apartament la parter, doua la etajul 1 si doua la etajul 2)
Nr. locuri parcare = 6 (supraterane)

Utilitati: apa, canalizare, curent electric si gaze.

Actele proprietatii sunt complete, pregatite pentru vanzare.

Va rugam sa regasiti in albumul foto al acestui anunt schitele terenului precum si planurile imobilului ce urmeaza a fi construit.

Pentru mai multe detalii, va stam la dispozitie cu placere!

Deschidere stradala 12 m

Suprafata 480 mp

Adancime 40

POT 45

CUT 1.30

Regim de inaltime UCArIDIgKyBQb2Q=

Disponibila incepand cu 2024-06-20

Judet Bucuresti

Oras/ Sector Sector 1

Zona 1 Mai

Gps lat 44.471628

Gps lng 26.050065

Street openings 1

Teren cu autorizatie de constructie - 1 Mai - Piata Mures

Proprietate vanduta

Ai o proprietate similara? Vinde-o cu noi.
Vinde apartament

Cod: REL4000986

Proprietati similare

Bucuresti, Floreasca

Teren 343 mp

499.000 EUR

Detalii

Bucuresti, Tei

Teren 403 mp

515.000 EUR

Detalii
Terenuri vandute in 1 Mai, Bucuresti Terenuri de vanzare in 1 Mai, Bucuresti

Afla primul de cele mai bune oferte
inainte sa ajunga pe piata

Aboneaza-te la newsletter

Aboneaza-te la notificari